
Vacsiközben nappali + 3 szobás, önálló ÚJ HÁZ , garázzsal -
Eladó a Vacsiközben, egy új építésű, nappali + 3 szobás családi ház , hangulatos
17 m˛-es terasszal és tágas, 20 m˛-es garázzsal.A vételár tartalmazza a telket
is!Várható átadás: 2026. decemberÉpületszerkezet:- 11 sor Wienerberger Porotherm
30 tégla teherhordó falazat ( 270 cm-es belmagasság)- 45 cm széles, 90 cm mély
sávalap betonvassal kengyelezve- 2 sor magas, 30 cm széles Leier lábazati beton
falazóelem- Wienerberger Porotherm 10 tégla válaszfalSzigetelés:- Austrotherm
AT-H80 EPS homlokzati hőszigetelés 15 cm- Austrotherm TOP P GK XPS lábazati
hőszigetelés 12 cm- Knauf Insulation Supafil fújható üveggyapot födém szigetelés
30 cm- Austrotherm EPS AT-N150 padlószigetelés 10 cmTető:- Leier Granite Classic
Carbon síkcserép- Antracit bádog csatornarendszerKülső-belső nyílászáró,
párkány, árnyékolás:- Gealan Linear külső nyílászáró rendszer (kívül antracit,
belül fehér színben)- Fukotherm IN-22 bejárati ajtó H6/Z 800 tolópajzzsal és
homokfúvott üveggel- Dupla szárnyas teraszajtó aluküszöbbel- Borovi Szcília
(CPL) beltéri ajtó (választható színben), Br.: 5.000 Ft-ig választható
kilinccsel- Kívül műkő ablakpárkány választható Rioletto Beige (mészkő) színben-
Belül műanyag ablakpárkány fehér színbe- Árnyákolástechnika (redőny): Kérhető,
viszont az ár nem tartalmazza!Gépészet + egyéb:- Bosch 6000 prémium levegő-víz
hőszivattyú padlófűtéssel- 2db klíma előkészítésBurkolatok, burkolás és
szaniterek:- Hidegburkolat: Br.: 8.500 Ft/m2-ig- Hidegburkolattal ellátott
helyiségek (padló): Konyha, étkező, háztartási helység, fürdőszoba, WC, kamra,
előtér- Hidegburkolattal ellátott helyiségek (fal 270 cm-ig): Fürdőszoba, WC-
Melegburkolat: Br.: 8.000 Ft/m2-ig- Szaniterek: Br.: 708.000 Ft értékhatárig-
Geberit Basic falba építhető WC szettVillanyszerelés:- Schneider Asfora
elektromos szerelvényrendszer fehér színbenGarázskapu:- Hörmann Renomatic
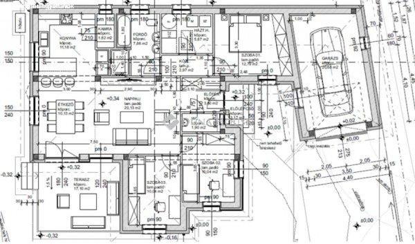
szekcionált garázskapu antracit színbenHelyiséglista:- előtér: 3,6 m2- wc: 1,9
m2- nappali: 20,13m2- étkező: 10,13m2- konyha: 11,18m2- kamra: 1,62m2-
közlekedő: 2,97m2- fürdő: káddal, tusolóval, wc-vel: 7,86m2- házt.hely.: 5,67m2-
szoba 1: 12,79m2- szoba 2: 10,04m2- szoba 3: 10,04m2- fedetlen terasz: 17,1m2-
garázs: 20,68m2Az ingatlan hőszivattyús fűtéssel rendelkezik, ezért jelenleg
nincs szükség gázra. Ugyanakkor a gáz az utcában elérhető, ami egy plusz
lehetőség a jövőre nézve, ha valaki alternatív fűtési megoldásban gondolkodna.Az
ár kulcsrakész állapotban történő átadással értendő, konyhabútor és lámpatestek
nélkül!
17 m˛-es terasszal és tágas, 20 m˛-es garázzsal.A vételár tartalmazza a telket
is!Várható átadás: 2026. decemberÉpületszerkezet:- 11 sor Wienerberger Porotherm
30 tégla teherhordó falazat ( 270 cm-es belmagasság)- 45 cm széles, 90 cm mély
sávalap betonvassal kengyelezve- 2 sor magas, 30 cm széles Leier lábazati beton
falazóelem- Wienerberger Porotherm 10 tégla válaszfalSzigetelés:- Austrotherm
AT-H80 EPS homlokzati hőszigetelés 15 cm- Austrotherm TOP P GK XPS lábazati
hőszigetelés 12 cm- Knauf Insulation Supafil fújható üveggyapot födém szigetelés
30 cm- Austrotherm EPS AT-N150 padlószigetelés 10 cmTető:- Leier Granite Classic
Carbon síkcserép- Antracit bádog csatornarendszerKülső-belső nyílászáró,
párkány, árnyékolás:- Gealan Linear külső nyílászáró rendszer (kívül antracit,
belül fehér színben)- Fukotherm IN-22 bejárati ajtó H6/Z 800 tolópajzzsal és
homokfúvott üveggel- Dupla szárnyas teraszajtó aluküszöbbel- Borovi Szcília
(CPL) beltéri ajtó (választható színben), Br.: 5.000 Ft-ig választható
kilinccsel- Kívül műkő ablakpárkány választható Rioletto Beige (mészkő) színben-
Belül műanyag ablakpárkány fehér színbe- Árnyákolástechnika (redőny): Kérhető,
viszont az ár nem tartalmazza!Gépészet + egyéb:- Bosch 6000 prémium levegő-víz
hőszivattyú padlófűtéssel- 2db klíma előkészítésBurkolatok, burkolás és
szaniterek:- Hidegburkolat: Br.: 8.500 Ft/m2-ig- Hidegburkolattal ellátott
helyiségek (padló): Konyha, étkező, háztartási helység, fürdőszoba, WC, kamra,
előtér- Hidegburkolattal ellátott helyiségek (fal 270 cm-ig): Fürdőszoba, WC-
Melegburkolat: Br.: 8.000 Ft/m2-ig- Szaniterek: Br.: 708.000 Ft értékhatárig-
Geberit Basic falba építhető WC szettVillanyszerelés:- Schneider Asfora
elektromos szerelvényrendszer fehér színbenGarázskapu:- Hörmann Renomatic
szekcionált garázskapu antracit színbenHelyiséglista:- előtér: 3,6 m2- wc: 1,9
m2- nappali: 20,13m2- étkező: 10,13m2- konyha: 11,18m2- kamra: 1,62m2-
közlekedő: 2,97m2- fürdő: káddal, tusolóval, wc-vel: 7,86m2- házt.hely.: 5,67m2-
szoba 1: 12,79m2- szoba 2: 10,04m2- szoba 3: 10,04m2- fedetlen terasz: 17,1m2-
garázs: 20,68m2Az ingatlan hőszivattyús fűtéssel rendelkezik, ezért jelenleg
nincs szükség gázra. Ugyanakkor a gáz az utcában elérhető, ami egy plusz
lehetőség a jövőre nézve, ha valaki alternatív fűtési megoldásban gondolkodna.Az
ár kulcsrakész állapotban történő átadással értendő, konyhabútor és lámpatestek
nélkül!
Részletek...
Adatlap
| Ár: | 153.900.000 Ft |
| Település: | Kecskemét |
| A hirdető: | Ingatlaniroda ajánlatából |
| Értékesítés típusa: | Eladó |
| Használtság: | Új építésű |
| Telek nagysága (m2) : | 520 |
| Épület hasznos területe (m2) : | 97.00 |
| Szobák száma: | 4 |
| Komfort: | Összkomfortos |
| Feladás dátuma: | 2026.04.24 |
| Eddig megtekintették 27 alkalommal | |
A hirdető adatai
Kapcsolat a hirdetővel...
Családi házak rovaton belül a(z) "Vacsiközben nappali + 3 szobás, önálló ÚJ HÁZ , garázzsal - " című hirdetést látja. (fent)




























