Betöltés...

Pomázon a Meselia déli oldalában, csendes környezetben egy s

Pomázon a Meselia déli oldalában, csendes környezetben egy szintes, két
önálló lakással rendelkező családi ház eladó.Az építéssel kapcsolatos
paraméterek:- Tervezett átadás: a szerződést követő egy éven belül -
hőszivattyús fűtés, padlófűtéssel, radiátorokkal- magas minőségű hőszigetelés,
ZÖLD hitelnek megfelelő energetikai besorolás- több rétegű, műanyag nyílászárók-
választható belső burkolatok, szaniterek- riasztó rendszer előkészítés- 30
nm-es, az amerikai konyhás nappalihoz kapcsolódó terasz- durva tereprendezés-
kulcsrakész átadásFinanszírozási lehetőség:- Zöld hitel kompatibilitás- CSOK,
hitel, illeték mentesség, Áfa visszatérítés igényelhető.- Az alaprajz igény
szerint még módosítható.A beruházó a környék elismert építési vállalkozója,
rengeteg referenciamunkával rendelkezik.

Részletek...
Adatlap
Ár: 242.800.000 Ft
Település: Pomáz
A hirdető: Ingatlaniroda ajánlatából
Értékesítés típusa: Eladó
Telek nagysága (m2) : 803
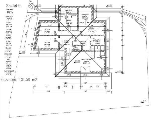
Épület hasznos területe (m2) : 226
Szobák száma: 10
Komfort: Duplakomfortos
Ingatlan állapota: Normál állapotú
Anyaga: Tégla
A hirdető kérése: Ingatlanközvetítő vagyok - keresse fel Irodánkat!
 
Feladás dátuma: 2026.03.02
Eddig megtekintették 0 alkalommal
A hirdető adatai
Kapcsolat a hirdetővel...

Pomázon a Meselia déli oldalában, csendes környezetben egy s Pomázon a Meselia déli oldalában, csendes környezetben egy s Pomázon a Meselia déli oldalában, csendes környezetben egy s Pomázon a Meselia déli oldalában, csendes környezetben egy s Pomázon a Meselia déli oldalában, csendes környezetben egy s
Lehetőségek
Megosztók

Családi házak rovaton belül a(z) "Pomázon a Meselia déli oldalában, csendes környezetben egy s" című hirdetést látja. (fent)



Eladó házak

Eladó házak a családi ház rovaton belül. Olcsó használt vagy újépítésű, illetve újszerű házak között kereshet az ingatlankereső használatával.
Tipp: Családi ház vásárlása előtt érdemes tájékozódni a telek beépíthetőségéről is.