
Eladó ikerház Budapest, X. kerület, Zsombék utca
Megvételre kínálunk, Budapest X. kerületében, Újhegy csendes kertvárosi
részében, egy jó elosztású 3 szintes ikerházat.Az ingatlan a 80-as évek elején,
téglából épült, hasznos alapterülete 171 nm, mely tökéletes életteret biztosít,
egy nagyobb család, vagy akár két generáció számára is.Az ingatlanhoz 526nm,
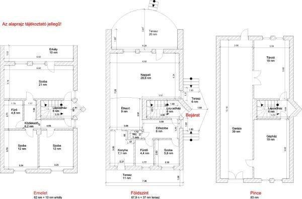
saját telekrész tartozik.Az ingatlan beosztása:Földszint --előszoba:
6nm,-lépcsőház: 6nm,-szoba: 5,8nm,-fürdő: 4,4nm,-wc: 1nm,-konyha: 7,1nm,-étkező:
9nm,-nappali: 28,6nm-------------------------- 67,9 nm.+ fedett
terasz: 20 nm,+ terasz 6 nm,+ terasz 11 nm.Emelet:-lépcsőház: 6nm,-közlekedő:
6,2nm,-fürdő: 4,8nm,-szoba: 12nm,-szoba: 12nm,-szoba:
21nm,----------------------- 62 nm.+erkély: 10nm,Pince:-garázs:
39nm,-gépház: 19nm,-tároló: 19nm,-lépcsőház: 6nm,---------------------
83 nm.2015-ben egy nagyobb felújítás történt:-festés,-a fenti erkélyek
beépítése,-nyílászárók cseréje, (műanyag, redőnyös, szúnyoghálós)-a ház külső
szigetelést, színezést kapott,-gázkazán, villanybojler cseréje,-konyha
felújítása.A hátsó terasz, filagória, tároló, kerítés építése, 8 évvel ezelőtt.A
tárolóban, kézmosó+wc, fali csap került kialakításra.Az ingatlanban, 3 db
hűtő-fűtő klíma működik, melyeket 5 éven belül szereltek fel.Riasztó rendszer
van beépítve.A fűtés gázkazánról működik, radiátoros hőleadással.A beltéri
ajtók, eredeti fából készültek.Az ingatlan, saját mérőórákkal rendelkezik.Az
udvar parkosított, amiben 2db 35 éves diófa, és 1db 20 éves kajszi barack fa ad
nyáron hűsítő árnyékot, és meghatározza a kert hangulatát.Közelben iskolák,
óvodák, bevásárlóközpont, minden egy helyen!Kimondottan jó
tömegközlekedés!Amivel segítjük az Ön ingatlanvásárlását:- ingyenes
hitelügyintézés,- jogi háttér,- földhivatali ügyintézés,- energetikai
tanúsítvány,- a vevő számára az ingatlanközvetítés ingyenes.Irodánk 30 éves
szakmai tapasztalattal áll ügyfelei rendelkezésére!Várom szíves megkeresését!
...TOVÁBBI, TÖBBEZRES INGATLAN KÍNÁLAT: www.gdn-ingatlan.hu - GDN azonosító:
392852
részében, egy jó elosztású 3 szintes ikerházat.Az ingatlan a 80-as évek elején,
téglából épült, hasznos alapterülete 171 nm, mely tökéletes életteret biztosít,
egy nagyobb család, vagy akár két generáció számára is.Az ingatlanhoz 526nm,
saját telekrész tartozik.Az ingatlan beosztása:Földszint --előszoba:
6nm,-lépcsőház: 6nm,-szoba: 5,8nm,-fürdő: 4,4nm,-wc: 1nm,-konyha: 7,1nm,-étkező:
9nm,-nappali: 28,6nm-------------------------- 67,9 nm.+ fedett
terasz: 20 nm,+ terasz 6 nm,+ terasz 11 nm.Emelet:-lépcsőház: 6nm,-közlekedő:
6,2nm,-fürdő: 4,8nm,-szoba: 12nm,-szoba: 12nm,-szoba:
21nm,----------------------- 62 nm.+erkély: 10nm,Pince:-garázs:
39nm,-gépház: 19nm,-tároló: 19nm,-lépcsőház: 6nm,---------------------
83 nm.2015-ben egy nagyobb felújítás történt:-festés,-a fenti erkélyek
beépítése,-nyílászárók cseréje, (műanyag, redőnyös, szúnyoghálós)-a ház külső
szigetelést, színezést kapott,-gázkazán, villanybojler cseréje,-konyha
felújítása.A hátsó terasz, filagória, tároló, kerítés építése, 8 évvel ezelőtt.A
tárolóban, kézmosó+wc, fali csap került kialakításra.Az ingatlanban, 3 db
hűtő-fűtő klíma működik, melyeket 5 éven belül szereltek fel.Riasztó rendszer
van beépítve.A fűtés gázkazánról működik, radiátoros hőleadással.A beltéri
ajtók, eredeti fából készültek.Az ingatlan, saját mérőórákkal rendelkezik.Az
udvar parkosított, amiben 2db 35 éves diófa, és 1db 20 éves kajszi barack fa ad
nyáron hűsítő árnyékot, és meghatározza a kert hangulatát.Közelben iskolák,
óvodák, bevásárlóközpont, minden egy helyen!Kimondottan jó
tömegközlekedés!Amivel segítjük az Ön ingatlanvásárlását:- ingyenes
hitelügyintézés,- jogi háttér,- földhivatali ügyintézés,- energetikai
tanúsítvány,- a vevő számára az ingatlanközvetítés ingyenes.Irodánk 30 éves
szakmai tapasztalattal áll ügyfelei rendelkezésére!Várom szíves megkeresését!
...TOVÁBBI, TÖBBEZRES INGATLAN KÍNÁLAT: www.gdn-ingatlan.hu - GDN azonosító:
392852
Részletek...
Adatlap
| Ár: | 149.500.000 Ft |
| Település: | X. kerület |
| A hirdető: | Ingatlaniroda ajánlatából |
| Értékesítés típusa: | Eladó |
| Használtság: | Használt |
| Utca: | Zsombék utca |
| Telek nagysága (m2) : | 526 |
| Épület hasznos területe (m2) : | 171 |
| Szobák száma: | 5 |
| Fűtés: | Gázfűtéses |
| Ingatlan állapota: | Normál állapotú |
| Anyaga: | Tégla |
| A hirdető kérése: | Ingatlanközvetítő vagyok - keresse fel Irodánkat! |
| Feladás dátuma: | 2026.05.01 |
| Eddig megtekintették 27 alkalommal | |
A hirdető adatai
Kapcsolat a hirdetővel...
Családi házak rovaton belül a(z) "Eladó ikerház Budapest, X. kerület, Zsombék utca" című hirdetést látja. (fent)




























