
Eladó ikerház Üllő, Bozsik József körút
NAGYCSALÁDOSOK FIGYELEM!Üllőn a Sportliget lakóparkban, megvételre kínálok egy
2018-ba épült ikerház felet. Az ingatlan Leiertherm 30N+F kerámia téglából, 10
cm-es homlokzati szigetelőrendszerrel, 10 cm-es YTONG válaszfalakkal, 15 cm-es
mennyezeti paplan szigeteléssel épült, 2 rétegű műanyag nyílászáróval szerelt, 3
külön nyíló szobával, dupla komforttal nagy amerikai konyhás nappalival
rendelkezik. Fűtését, egy CALEO elektromos rendszer adja. 2019-ben SolarEdge
5,4 kWp napelem rendszer lett telepítve, mely az ingatlan teljes elektromos
rendszerét táplálja. Átlagos éves termelés stabilan 4 - 5,2 MWh. A földszinten
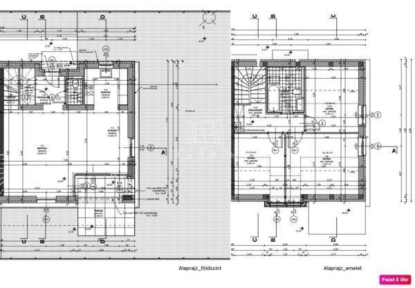
található egy gépészeti helyiség, wc kézmosóval, kényelmes nagy nappali
konyhával, közvetlen kertkapcsolattal. Az emeleten három teljes értékű külön
nyíló szoba és egy kádas fürdőszoba lett kialakítva.A kizárólagos használatú 250
nm-es kert, kényelmes kikapcsolódást nyújt és gyorsan karbantartható. 1
személyautó parkolására van lehetőség.Közlekedés. Budapest belvárosa 35 - 60
perc autóval, Üllő vasútállomás, 17 perc gyalogosan, 4 perc autóval. Amennyiben
hirdetésem felkeltette érdeklődését, várom hívását a hét bármely napján. tp
...TOVÁBBI, TÖBBEZRES INGATLAN KÍNÁLAT: www.gdn-ingatlan.hu - GDN azonosító:
393046
2018-ba épült ikerház felet. Az ingatlan Leiertherm 30N+F kerámia téglából, 10
cm-es homlokzati szigetelőrendszerrel, 10 cm-es YTONG válaszfalakkal, 15 cm-es
mennyezeti paplan szigeteléssel épült, 2 rétegű műanyag nyílászáróval szerelt, 3
külön nyíló szobával, dupla komforttal nagy amerikai konyhás nappalival
rendelkezik. Fűtését, egy CALEO elektromos rendszer adja. 2019-ben SolarEdge
5,4 kWp napelem rendszer lett telepítve, mely az ingatlan teljes elektromos
rendszerét táplálja. Átlagos éves termelés stabilan 4 - 5,2 MWh. A földszinten
található egy gépészeti helyiség, wc kézmosóval, kényelmes nagy nappali
konyhával, közvetlen kertkapcsolattal. Az emeleten három teljes értékű külön
nyíló szoba és egy kádas fürdőszoba lett kialakítva.A kizárólagos használatú 250
nm-es kert, kényelmes kikapcsolódást nyújt és gyorsan karbantartható. 1
személyautó parkolására van lehetőség.Közlekedés. Budapest belvárosa 35 - 60
perc autóval, Üllő vasútállomás, 17 perc gyalogosan, 4 perc autóval. Amennyiben
hirdetésem felkeltette érdeklődését, várom hívását a hét bármely napján. tp
...TOVÁBBI, TÖBBEZRES INGATLAN KÍNÁLAT: www.gdn-ingatlan.hu - GDN azonosító:
393046
Részletek...
Adatlap
| Ár: | 109.000.000 Ft |
| Település: | Üllő |
| A hirdető: | Ingatlaniroda ajánlatából |
| Értékesítés típusa: | Eladó |
| Használtság: | Használt |
| Utca: | Bozsik József körút |
| Telek nagysága (m2) : | 250 |
| Épület hasznos területe (m2) : | 103 |
| Szobák száma: | 4 |
| Fűtés: | Egyéb fűtéses |
| Ingatlan állapota: | Normál állapotú |
| Anyaga: | Tégla |
| A hirdető kérése: | Ingatlanközvetítő vagyok - keresse fel Irodánkat! |
| Feladás dátuma: | 2026.05.01 |
| Eddig megtekintették 31 alkalommal | |
A hirdető adatai
Kapcsolat a hirdetővel...
Családi házak rovaton belül a(z) "Eladó ikerház Üllő, Bozsik József körút" című hirdetést látja. (fent)




























