
Eladó Veresegyház, Veresegyház kertvárosi részén
ELADÓ 131 NM-ES, BELSŐ KÉTSZINTES SORHÁZ SAJÁT KERTTEL ÉS GARÁZZSAL VERESEGYHÁZ
KEDVELT, KERTVÁROSI RÉSZÉN!DÉLKELETI FEKVÉS, PADLÓFŰTÉS, TERASZ, KIVÁLÓ
KÖZLEKEDÉS ? VONAT 5-8 PERC SÉTÁRA, BUDAPEST GYORSAN ELÉRHETŐ! CSENDES
KÖRNYEZET, IDEÁLIS CSALÁDI OTTHON!Megvételre kínálok, Pest megyei Veresegyházon,
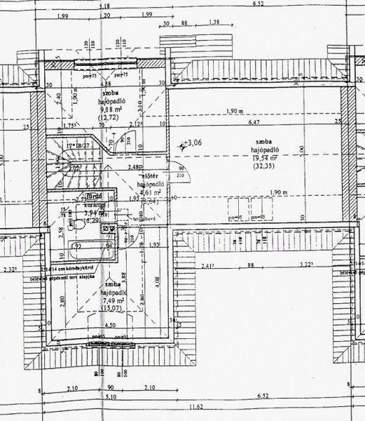
délkeleti fekvésű, nettó 131 nm-es, bruttó 170 nm-es, belső kétszintes, önálló
helyrajzi számmal, 2 + 2 félszobás, jó állapotú, saját garázzsal, és 284 nm-es
önálló telekkel rendelkező sorházat. Az épület 2006-ban épült, beton alapra, 38
cm-es Phorotherm téglából, 7 cm dryvit szigeteléssel, beton födémmel,
betoncserép fedéssel. Épület körbe műanyag thermo nyílászárókat kapott,
elektromos redőnnyel és rovarhálóval ellátva. Fűtésről és melegviz ellátásról
gázkazán gondoskodik, mindkét szinten padlófűtéssel. A felsőszintre vezető
lépcső, korlátja és fa burkolata az ingatlan tartozéka, rendelkezésre is áll,
csak ha az új tulajdonosnak, kell megcsináltatnia. Környezete tiszta rendezett,
szomszédok barátságosak kedvesek.?Közlekedés: ?Az ingatlan egyik legnagyobb
előnye az elhelyezkedése a tömegközlekedés szempontjából:?Vasút:Az Ivacs
megállóhely sétatávolságra (kb. 5-8 perc) található. Innen a
Budapest?Vácrátót?Vác vonalon közvetlen vonatok indulnak a Nyugati pályaudvarra
(kb. 45-50 perc menetidő).?Helyi busz: A veresegyházi helyi járatok segítik a
központ és a többi városrész elérését.?Autó: Budapest az M3-as autópályán vagy
az M2-es úton keresztül is viszonylag gyorsan (forgalomtól függően 30-40 perc)
megközelíthető.?Ellátottság és Környezet:?Bevásárlás: A közelben kisebb
élelmiszerboltok találhatók, de a városközpontban lévő nagy áruházak (Lidl,
SPAR) is 5-10 perces autóúttal elérhetőek.?Oktatás/Egészségügy: Veresegyház
híres a jó iskoláiról (pl. Fabriczius József Általános Iskola) és a modern
Misszió Egészségügyi Központról, melyek a város belsőbb részén
találhatók.?Szabadidő: A közelben vannak az Ivacsi-tavak, ami remek
kikapcsolódási lehetőség, és nincs messze a híres Veresegyházi Medveotthon
sem.INGYENES hitel tanácsadás! CSOK Ügy intézés!BANKFÜGGETLEN hitelcentrumunk
minden elérhető bank és hitelintézet ajánlatát versenyezteti az Ön kedvéért,
ráadásul DÍJMENTESEN.Önnek nincs más dolga, mint elbeszélgetni munkatársunkkal,
aki a hallott információk alapján versenyre hívja a bankokat, hogy Ön hosszú
távon is a legjobb konstrukciót kaphassa. A legjobb ajánlatokból végül Ön
választhatja ki a nyertest.Munkatársaink sokéves szakmai tapasztalattal várják
Önt, előre egyeztetve akár a normál munkaidő után is.Amennyiben hirdetésem
felkeltette érdeklődését, várom hívását, akár hétvégén is! V.I. ...TOVÁBBI,
TÖBBEZRES INGATLAN KÍNÁLAT: www.gdn-ingatlan.hu - GDN azonosító: 393084
KEDVELT, KERTVÁROSI RÉSZÉN!DÉLKELETI FEKVÉS, PADLÓFŰTÉS, TERASZ, KIVÁLÓ
KÖZLEKEDÉS ? VONAT 5-8 PERC SÉTÁRA, BUDAPEST GYORSAN ELÉRHETŐ! CSENDES
KÖRNYEZET, IDEÁLIS CSALÁDI OTTHON!Megvételre kínálok, Pest megyei Veresegyházon,
délkeleti fekvésű, nettó 131 nm-es, bruttó 170 nm-es, belső kétszintes, önálló
helyrajzi számmal, 2 + 2 félszobás, jó állapotú, saját garázzsal, és 284 nm-es
önálló telekkel rendelkező sorházat. Az épület 2006-ban épült, beton alapra, 38
cm-es Phorotherm téglából, 7 cm dryvit szigeteléssel, beton födémmel,
betoncserép fedéssel. Épület körbe műanyag thermo nyílászárókat kapott,
elektromos redőnnyel és rovarhálóval ellátva. Fűtésről és melegviz ellátásról
gázkazán gondoskodik, mindkét szinten padlófűtéssel. A felsőszintre vezető
lépcső, korlátja és fa burkolata az ingatlan tartozéka, rendelkezésre is áll,
csak ha az új tulajdonosnak, kell megcsináltatnia. Környezete tiszta rendezett,
szomszédok barátságosak kedvesek.?Közlekedés: ?Az ingatlan egyik legnagyobb
előnye az elhelyezkedése a tömegközlekedés szempontjából:?Vasút:Az Ivacs
megállóhely sétatávolságra (kb. 5-8 perc) található. Innen a
Budapest?Vácrátót?Vác vonalon közvetlen vonatok indulnak a Nyugati pályaudvarra
(kb. 45-50 perc menetidő).?Helyi busz: A veresegyházi helyi járatok segítik a
központ és a többi városrész elérését.?Autó: Budapest az M3-as autópályán vagy
az M2-es úton keresztül is viszonylag gyorsan (forgalomtól függően 30-40 perc)
megközelíthető.?Ellátottság és Környezet:?Bevásárlás: A közelben kisebb
élelmiszerboltok találhatók, de a városközpontban lévő nagy áruházak (Lidl,
SPAR) is 5-10 perces autóúttal elérhetőek.?Oktatás/Egészségügy: Veresegyház
híres a jó iskoláiról (pl. Fabriczius József Általános Iskola) és a modern
Misszió Egészségügyi Központról, melyek a város belsőbb részén
találhatók.?Szabadidő: A közelben vannak az Ivacsi-tavak, ami remek
kikapcsolódási lehetőség, és nincs messze a híres Veresegyházi Medveotthon
sem.INGYENES hitel tanácsadás! CSOK Ügy intézés!BANKFÜGGETLEN hitelcentrumunk
minden elérhető bank és hitelintézet ajánlatát versenyezteti az Ön kedvéért,
ráadásul DÍJMENTESEN.Önnek nincs más dolga, mint elbeszélgetni munkatársunkkal,
aki a hallott információk alapján versenyre hívja a bankokat, hogy Ön hosszú
távon is a legjobb konstrukciót kaphassa. A legjobb ajánlatokból végül Ön
választhatja ki a nyertest.Munkatársaink sokéves szakmai tapasztalattal várják
Önt, előre egyeztetve akár a normál munkaidő után is.Amennyiben hirdetésem
felkeltette érdeklődését, várom hívását, akár hétvégén is! V.I. ...TOVÁBBI,
TÖBBEZRES INGATLAN KÍNÁLAT: www.gdn-ingatlan.hu - GDN azonosító: 393084
Részletek...
Adatlap
| Ár: | 131.900.000 Ft |
| Település: | Veresegyház |
| A hirdető: | Ingatlaniroda ajánlatából |
| Értékesítés típusa: | Eladó |
| Használtság: | Használt |
| Utca: | Veresegyház kertvárosi részén |
| Telek nagysága (m2) : | 284 |
| Épület hasznos területe (m2) : | 170 |
| Szobák száma: | 2 |
| Félszobák száma: | 2 |
| Fűtés: | Cirkó fűtéses |
| Ingatlan állapota: | Normál állapotú |
| Anyaga: | Tégla |
| A hirdető kérése: | Ingatlanközvetítő vagyok - keresse fel Irodánkat! |
| Feladás dátuma: | 2026.04.01 |
| Eddig megtekintették 17 alkalommal | |
A hirdető adatai
Kapcsolat a hirdetővel...
Családi házak rovaton belül a(z) "Eladó Veresegyház, Veresegyház kertvárosi részén" című hirdetést látja. (fent)




























