
Eladó családi ház Mogyoród, Mogyoród kedvelt részén
ÚJ ÉPÍTÉSŰ, ÖNÁLLÓ CSALÁDI HÁZ ELADÓ MOGYORÓD CSENDES, DOMBOLDALI RÉSZÉN! MODERN
MŰSZAKI TARTALOM, HŐSZIVATTYÚS FŰTÉS, PADLÓFŰTÉS, KLÍMA ÉS GYORS KAPCSOLAT
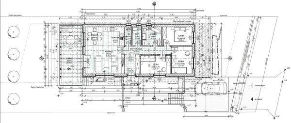
BUDAPESTTEL.Megvételre kínálok Pest vármegyei Mogyoródon 461 nm-es telken, egy
délnyugati fekvésű, nettó 88,17 nm-es, bruttó 113,52 nm-es, 3 szobás + amerikai
konyhával ellátott, új építésű önálló családi házat.Első osztályú anyagokból
épülő, kulcsrakész családi ház, extra hőszigeteléssel és hőszivattyús fűtéssel.
A ház Phorotherm téglából készül, 15 cm homlokzati és 30 cm födémszigeteléssel,
betoncserép tetővel és háromrétegű üvegezésű, színes műanyag
nyílászárókkal.Padlófűtés, fürdőben törölközőszárítós radiátor, valamint
nappaliban hűtő-fűtő klíma kerül beépítésre. A burkolatok, szaniterek és belső
ajtók meghatározott értékhatárig választhatók. A ház riasztó előkészítéssel,
kaputelefonnal, elektromos kiállásokkal, napelem- és autótöltő csatlakozási
lehetőséggel készül. A telekhez kerítés, térkövezett terasz és beálló, valamint
alap tereprendezés tartozik. A vételár nem tartalmazza a lámpatesteket,
függönyöket és a kertépítést. Az ingatlant 2026 III. negyedévében kezdik el
építeni.?Településen belüli elhelyezkedés:?Az ingatlan Mogyoród észak-keleti,
domboldali részén fekszik. Ez a terület az utóbbi években jelentős fejlődésen
ment keresztül, a korábban zártkerti vagy üdülőövezeti besorolású telkek nagy
részét mára modern családi házakkal építették be. A környék csendes,
kertvárosias jellegű, átmenő forgalomtól mentes.?Közlekedési kapcsolatok: ?Autós
közlekedés: Az M3-as autópálya és az M31-es gyorsút csomópontja néhány perc
alatt elérhető, így Budapest központja forgalomtól függően 20-25 perc, a
városhatár pedig 10-15 perc alatt megközelíthető. Gödöllő városa szintén rövid
idő alatt elérhető.?Tömegközlekedés: A településen áthaladó H8-as HÉV vonala
közvetlen összeköttetést biztosít az Örs vezér terével. A legközelebbi állomás
gépjárművel körülbelül 5-6 perc alatt érhető el, ahol P+R parkoló segíti az
ingázókat.?Helyi járatok: A Volánbusz helyközi járatai a település központját
érintik, ahonnan csatlakozás biztosított Budapest vagy Gödöllő
irányába.?Szolgáltatások és intézmények:?A település központjában minden
alapvető szolgáltatás megtalálható:?Oktatás és nevelés: Bölcsőde, óvoda és
általános iskola üzemel a faluban.?Egészségügy: Háziorvosi rendelő és
gyógyszertár biztosított a lakosok számára.?Bevásárlás: A közelben helyi
élelmiszerüzletek és pékség találhatók, míg a nagyobb bevásárlóközpontok (Fót,
Dunakeszi, Gödöllő) autóval 10-15 perces távolságra vannak.?Szabadidő és
környezet:?A környék kiemelkedő természeti adottságokkal rendelkezik, a közeli
dombok kirándulásra és szabadtéri sportolásra alkalmasak. A település közvetlen
közelében található a Hungaroring és az Aqua park, amelyek további
kikapcsolódási lehetőségeket kínálnak.INGYENES hitel tanácsadás! CSOK Ügy
intézés!BANKFÜGGETLEN hitelcentrumunk minden elérhető bank és hitelintézet
ajánlatát versenyezteti az Ön kedvéért, ráadásul DÍJMENTESEN.Önnek nincs más
dolga, mint elbeszélgetni munkatársunkkal, aki a hallott információk alapján
versenyre hívja a bankokat, hogy Ön hosszú távon is a legjobb konstrukciót
kaphassa. A legjobb ajánlatokból végül Ön választhatja ki a
nyertest.Munkatársaink sokéves szakmai tapasztalattal várják Önt, előre
egyeztetve akár a normál munkaidő után is.Amennyiben hirdetésem felkeltette
érdeklődését, várom hívását, akár hétvégén is! V.I. ...TOVÁBBI, TÖBBEZRES
INGATLAN KÍNÁLAT: www.gdn-ingatlan.hu - GDN azonosító: 393335
MŰSZAKI TARTALOM, HŐSZIVATTYÚS FŰTÉS, PADLÓFŰTÉS, KLÍMA ÉS GYORS KAPCSOLAT
BUDAPESTTEL.Megvételre kínálok Pest vármegyei Mogyoródon 461 nm-es telken, egy
délnyugati fekvésű, nettó 88,17 nm-es, bruttó 113,52 nm-es, 3 szobás + amerikai
konyhával ellátott, új építésű önálló családi házat.Első osztályú anyagokból
épülő, kulcsrakész családi ház, extra hőszigeteléssel és hőszivattyús fűtéssel.
A ház Phorotherm téglából készül, 15 cm homlokzati és 30 cm födémszigeteléssel,
betoncserép tetővel és háromrétegű üvegezésű, színes műanyag
nyílászárókkal.Padlófűtés, fürdőben törölközőszárítós radiátor, valamint
nappaliban hűtő-fűtő klíma kerül beépítésre. A burkolatok, szaniterek és belső
ajtók meghatározott értékhatárig választhatók. A ház riasztó előkészítéssel,
kaputelefonnal, elektromos kiállásokkal, napelem- és autótöltő csatlakozási
lehetőséggel készül. A telekhez kerítés, térkövezett terasz és beálló, valamint
alap tereprendezés tartozik. A vételár nem tartalmazza a lámpatesteket,
függönyöket és a kertépítést. Az ingatlant 2026 III. negyedévében kezdik el
építeni.?Településen belüli elhelyezkedés:?Az ingatlan Mogyoród észak-keleti,
domboldali részén fekszik. Ez a terület az utóbbi években jelentős fejlődésen
ment keresztül, a korábban zártkerti vagy üdülőövezeti besorolású telkek nagy
részét mára modern családi házakkal építették be. A környék csendes,
kertvárosias jellegű, átmenő forgalomtól mentes.?Közlekedési kapcsolatok: ?Autós
közlekedés: Az M3-as autópálya és az M31-es gyorsút csomópontja néhány perc
alatt elérhető, így Budapest központja forgalomtól függően 20-25 perc, a
városhatár pedig 10-15 perc alatt megközelíthető. Gödöllő városa szintén rövid
idő alatt elérhető.?Tömegközlekedés: A településen áthaladó H8-as HÉV vonala
közvetlen összeköttetést biztosít az Örs vezér terével. A legközelebbi állomás
gépjárművel körülbelül 5-6 perc alatt érhető el, ahol P+R parkoló segíti az
ingázókat.?Helyi járatok: A Volánbusz helyközi járatai a település központját
érintik, ahonnan csatlakozás biztosított Budapest vagy Gödöllő
irányába.?Szolgáltatások és intézmények:?A település központjában minden
alapvető szolgáltatás megtalálható:?Oktatás és nevelés: Bölcsőde, óvoda és
általános iskola üzemel a faluban.?Egészségügy: Háziorvosi rendelő és
gyógyszertár biztosított a lakosok számára.?Bevásárlás: A közelben helyi
élelmiszerüzletek és pékség találhatók, míg a nagyobb bevásárlóközpontok (Fót,
Dunakeszi, Gödöllő) autóval 10-15 perces távolságra vannak.?Szabadidő és
környezet:?A környék kiemelkedő természeti adottságokkal rendelkezik, a közeli
dombok kirándulásra és szabadtéri sportolásra alkalmasak. A település közvetlen
közelében található a Hungaroring és az Aqua park, amelyek további
kikapcsolódási lehetőségeket kínálnak.INGYENES hitel tanácsadás! CSOK Ügy
intézés!BANKFÜGGETLEN hitelcentrumunk minden elérhető bank és hitelintézet
ajánlatát versenyezteti az Ön kedvéért, ráadásul DÍJMENTESEN.Önnek nincs más
dolga, mint elbeszélgetni munkatársunkkal, aki a hallott információk alapján
versenyre hívja a bankokat, hogy Ön hosszú távon is a legjobb konstrukciót
kaphassa. A legjobb ajánlatokból végül Ön választhatja ki a
nyertest.Munkatársaink sokéves szakmai tapasztalattal várják Önt, előre
egyeztetve akár a normál munkaidő után is.Amennyiben hirdetésem felkeltette
érdeklődését, várom hívását, akár hétvégén is! V.I. ...TOVÁBBI, TÖBBEZRES
INGATLAN KÍNÁLAT: www.gdn-ingatlan.hu - GDN azonosító: 393335
Részletek...
Adatlap
| Ár: | 91.900.000 Ft |
| Település: | Mogyoród |
| A hirdető: | Ingatlaniroda ajánlatából |
| Értékesítés típusa: | Eladó |
| Használtság: | Új építésű |
| Utca: | Mogyoród kedvelt részén |
| Telek nagysága (m2) : | 461 |
| Épület hasznos területe (m2) : | 114 |
| Szobák száma: | 4 |
| Anyaga: | Tégla |
| A hirdető kérése: | Ingatlanközvetítő vagyok - keresse fel Irodánkat! |
| Feladás dátuma: | 2026.03.09 |
| Eddig megtekintették 0 alkalommal | |
A hirdető adatai
Kapcsolat a hirdetővel...
Családi házak rovaton belül a(z) "Eladó családi ház Mogyoród, Mogyoród kedvelt részén" című hirdetést látja. (fent)




























