
Vizsolyban, 4 szobás, 140 m2-es családi ház, 908 m2-es telek
Vizsoly, csendes mellékutcájában, 90-es években, szilikátból és téglából épült,
földszint +emelet kialakítású, 4 szobás, 140 m˛-es családi ház, 908 m˛-es
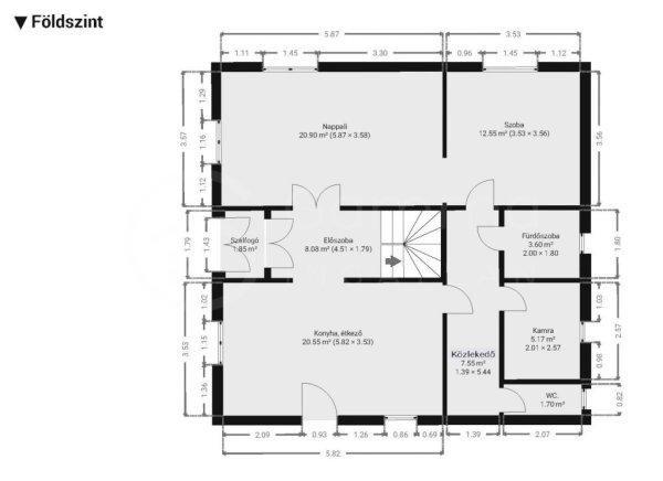
telekkel eladó! Helyiséglista:Földszint- Nappali- Hálószoba- Étkezős konyha-
Fürdőszoba- WC.- Kamra- Közlekedő- Előszoba- SzélfogóEmelet- 2 db szoba-
Fürdőszoba- Tároló- Közlekedő- LoggiaMűszaki leírás:A felépítmény beton sáv
alapra, tégla és szilikát felhasználásával épült a 90-es években. Vízszintes
teherhordó előre gyártott vasbeton gerendás. Tető szerkezet fa, síkpala
héjalással. A teljes alapterület alatt pince található. Fűtése vegyes tüzelésű
néhány hónapos kazán, emellett gázkazánhoz ki van építve a rendszer, hőleadók
radiátorok. Meleg vizet villanybojler állítja elő.Homlokzat 5 cm-es
hőszigeteléssel van ellátva nemes vakolattal.Környezet:Csendes, rendezett
mellékutca.
földszint +emelet kialakítású, 4 szobás, 140 m˛-es családi ház, 908 m˛-es
telekkel eladó! Helyiséglista:Földszint- Nappali- Hálószoba- Étkezős konyha-
Fürdőszoba- WC.- Kamra- Közlekedő- Előszoba- SzélfogóEmelet- 2 db szoba-
Fürdőszoba- Tároló- Közlekedő- LoggiaMűszaki leírás:A felépítmény beton sáv
alapra, tégla és szilikát felhasználásával épült a 90-es években. Vízszintes
teherhordó előre gyártott vasbeton gerendás. Tető szerkezet fa, síkpala
héjalással. A teljes alapterület alatt pince található. Fűtése vegyes tüzelésű
néhány hónapos kazán, emellett gázkazánhoz ki van építve a rendszer, hőleadók
radiátorok. Meleg vizet villanybojler állítja elő.Homlokzat 5 cm-es
hőszigeteléssel van ellátva nemes vakolattal.Környezet:Csendes, rendezett
mellékutca.
Részletek...
Adatlap
| Ár: | 29.500.000 Ft |
| Település: | Vizsoly |
| A hirdető: | Ingatlaniroda ajánlatából |
| Értékesítés típusa: | Eladó |
| Használtság: | Használt |
| Telek nagysága (m2) : | 908 |
| Épület hasznos területe (m2) : | 140.00 |
| Szobák száma: | 4 |
| Fűtés: | Gázfűtéses |
| Ingatlan állapota: | Normál állapotú |
| Feladás dátuma: | 2026.03.09 |
| Eddig megtekintették 0 alkalommal | |
A hirdető adatai
Kapcsolat a hirdetővel...
Családi házak rovaton belül a(z) "Vizsolyban, 4 szobás, 140 m2-es családi ház, 908 m2-es telek" című hirdetést látja. (fent)




























