
Eladó családi ház Budapest, XX. kerület, Pesterzsébet-Szabó
Eladó felújított családi ház Pesterzsébet ? SzabótelepenEladásra kínálunk
Pesterzsébet kedvelt, csendes Szabótelep részén egy felújított családi házat,
amely ideális választás lehet fiatal párok első otthonának vagy kisebb család
számára.Az ingatlan jelenleg osztatlan közös tulajdon, azonban az önálló
albetétesítés és az ügyvédi használati megosztás már folyamatban van, ami a
későbbi tulajdonjogi rendezést biztosítja.A felújítás során elvégzett munkákA
ház az elmúlt időszakban jelentős korszerűsítésen esett át:* 10 cm-es külső
hőszigetelés és nemesvakolat* Új, háromrétegű műanyag nyílászárók* Teljes
villanyvezeték csere* Új szennyvízcsövek* Új tető cseréplemez fedéssel* Új,
modern linóleum burkolatok Fűtés és közművekAz otthon kellemes hőmérsékletéről
gázcirkó fűtés, valamint egy felújított cserépkályha gondoskodik.A melegvizet
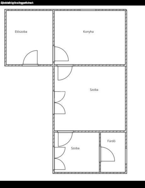
villanybojler biztosítja. Helyiségek elrendezéseA ház praktikus elosztású:*
előszoba nagy beépített szekrénnyel* konyha* 3 m˛-es spájz* tágas első szoba*
abból nyíló második szoba* fürdőkádas fürdőszobaTovábbi lehetőségekA fürdőszoba
jelenleg felújításra vár, azonban a tulajdonos a vételár részeként a vevő
igényei szerint felújítja.Az új konyhabútor beépítése szintén megegyezés tárgyát
képezheti. KörnyékA környék családi házas, a tömegközlekedés kiváló, így a város
többi része is könnyen elérhető.Ez az ingatlan kiváló lehetőség lehet azok
számára, akik egy felújított, azonnal költözhető otthont keresnek, ugyanakkor
még saját ízlésük szerint szeretnék alakítani egyes részleteit.Az alaprajz
tájékoztató jellegű!Amennyiben hitelfelvétel is érdekelné, bankfüggetlen
hitelközpontunk térítés mentes nyújt segítséget ügyfeleink részére! További
információért vagy megtekintésért keressen bizalommal! ...TOVÁBBI, TÖBBEZRES
INGATLAN KÍNÁLAT: www.gdn-ingatlan.hu - GDN azonosító: 393595
Pesterzsébet kedvelt, csendes Szabótelep részén egy felújított családi házat,
amely ideális választás lehet fiatal párok első otthonának vagy kisebb család
számára.Az ingatlan jelenleg osztatlan közös tulajdon, azonban az önálló
albetétesítés és az ügyvédi használati megosztás már folyamatban van, ami a
későbbi tulajdonjogi rendezést biztosítja.A felújítás során elvégzett munkákA
ház az elmúlt időszakban jelentős korszerűsítésen esett át:* 10 cm-es külső
hőszigetelés és nemesvakolat* Új, háromrétegű műanyag nyílászárók* Teljes
villanyvezeték csere* Új szennyvízcsövek* Új tető cseréplemez fedéssel* Új,
modern linóleum burkolatok Fűtés és közművekAz otthon kellemes hőmérsékletéről
gázcirkó fűtés, valamint egy felújított cserépkályha gondoskodik.A melegvizet
villanybojler biztosítja. Helyiségek elrendezéseA ház praktikus elosztású:*
előszoba nagy beépített szekrénnyel* konyha* 3 m˛-es spájz* tágas első szoba*
abból nyíló második szoba* fürdőkádas fürdőszobaTovábbi lehetőségekA fürdőszoba
jelenleg felújításra vár, azonban a tulajdonos a vételár részeként a vevő
igényei szerint felújítja.Az új konyhabútor beépítése szintén megegyezés tárgyát
képezheti. KörnyékA környék családi házas, a tömegközlekedés kiváló, így a város
többi része is könnyen elérhető.Ez az ingatlan kiváló lehetőség lehet azok
számára, akik egy felújított, azonnal költözhető otthont keresnek, ugyanakkor
még saját ízlésük szerint szeretnék alakítani egyes részleteit.Az alaprajz
tájékoztató jellegű!Amennyiben hitelfelvétel is érdekelné, bankfüggetlen
hitelközpontunk térítés mentes nyújt segítséget ügyfeleink részére! További
információért vagy megtekintésért keressen bizalommal! ...TOVÁBBI, TÖBBEZRES
INGATLAN KÍNÁLAT: www.gdn-ingatlan.hu - GDN azonosító: 393595
Részletek...
Adatlap
| Ár: | 56.900.000 Ft |
| Település: | XX. kerület |
| A hirdető: | Ingatlaniroda ajánlatából |
| Értékesítés típusa: | Eladó |
| Használtság: | Használt |
| Utca: | Pesterzsébet-Szabótelep |
| Telek nagysága (m2) : | 160 |
| Épület hasznos területe (m2) : | 62 |
| Szobák száma: | 2 |
| Fűtés: | Cirkó fűtéses |
| Ingatlan állapota: | Felújított |
| Anyaga: | Tégla |
| A hirdető kérése: | Ingatlanközvetítő vagyok - keresse fel Irodánkat! |
| Feladás dátuma: | 2026.03.16 |
| Eddig megtekintették 0 alkalommal | |
A hirdető adatai
Kapcsolat a hirdetővel...
Családi házak rovaton belül a(z) "Eladó családi ház Budapest, XX. kerület, Pesterzsébet-Szabó" című hirdetést látja. (fent)




























