
BEFEKTETŐK FIGYELEM! Két családi ház egy telken Lőrinciben ?
Lőrinciben, forgalmas főút mellett kínálunk megvételre egy különleges
adottságokkal rendelkező ingatlant, amely két különálló családi házból áll egy
735 nm-es telken. Az ingatlan elhelyezkedése és kialakítása miatt ideális
választás befektetőknek, többgenerációs családoknak, illetve azoknak, akik
lakhatásukat saját vállalkozásukkal szeretnék összekapcsolni.A két ingatlan
egyben és külön is megvásárolható, így befektetési szempontból is rugalmas
lehetőséget kínál: akár bérbeadásra, akár üzleti célú hasznosításra is kiváló
választás.Az ingatlan kiváló láthatóságú, jól megközelíthető helyen található,
közvetlen kapcsolattal a négysávos 21-es főúthoz, valamint mindössze néhány perc
autóútra a Hatvani csomóponttól, ami üzleti szempontból is kiemelkedő értéket
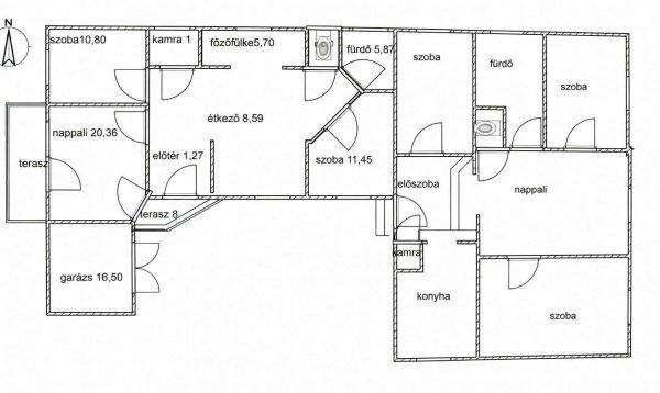
képvisel.1. épület ? 67 nm-es családi ház (2004)A 2004-ben téglából épült, 67
nm-es családi ház elrendezése: 2 szoba, nappali, étkező-konyha, fürdőszoba és
külön WC. Fűtése vízteres kandallóval megoldott, jelenleg gázóra nincs. Az
épület fa nyílászárókkal rendelkezik, a homlokzat külső vakolatot kapott, festés
és igény szerint szigetelés javasolt. Az ingatlanhoz 16,5 nm-es garázs is
tartozik.Irányár: 38,5 millió Ft.2. épület ? 93 nm-es felújított családi házA
telken található egy 93 nm-es, téglából és blokkból épült családi ház, amely
2002-ben teljes körű felújításon esett át. A felújítás során megtörtént a
tetőcsere, a villamoshálózat korszerűsítése, a fürdőszoba felújítása, a
nyílászárók cseréje, a fűtés korszerűsítése, a hideg- és melegburkolatok
cseréje, valamint a külső homlokzat szigetelése és színezése. Elrendezése: 3
szoba, nappali, konyha, előszoba, kamra, fürdőszoba és külön WC. A ház részben
alápincézett, klímával felszerelt, fűtése vegyestüzelésű kazánnal és gázcirkóval
is megoldható, valamint teljes közművel rendelkezik. Az ingatlan részben
bútorozva kerül értékesítésre.Irányár: 54 millió Ft.A két ház közös udvari
bejárattal rendelkezik, és a nagy forgalmú főút melletti elhelyezkedésnek
köszönhetően vállalkozási célra is kiváló lehetőséget kínál. Az egyik épület
könnyen átalakítható üzlethelyiséggé, például cukrászda, kávézó, szépségszalon,
fodrászat, masszázs- vagy egészségügyi rendelő, iroda, bemutatóterem vagy
webshop átvételi pont céljára. További előny, hogy az utcafront felől külön
bejárat is kialakítható, így az üzlet és a lakótér teljesen elkülöníthető.Ez az
ingatlan kiváló befektetési lehetőség, hiszen egyszerre kínál lakhatási,
bérbeadási és üzleti hasznosítási potenciált egy jól látható, forgalmas
elhelyezkedésű telken.
adottságokkal rendelkező ingatlant, amely két különálló családi házból áll egy
735 nm-es telken. Az ingatlan elhelyezkedése és kialakítása miatt ideális
választás befektetőknek, többgenerációs családoknak, illetve azoknak, akik
lakhatásukat saját vállalkozásukkal szeretnék összekapcsolni.A két ingatlan
egyben és külön is megvásárolható, így befektetési szempontból is rugalmas
lehetőséget kínál: akár bérbeadásra, akár üzleti célú hasznosításra is kiváló
választás.Az ingatlan kiváló láthatóságú, jól megközelíthető helyen található,
közvetlen kapcsolattal a négysávos 21-es főúthoz, valamint mindössze néhány perc
autóútra a Hatvani csomóponttól, ami üzleti szempontból is kiemelkedő értéket
képvisel.1. épület ? 67 nm-es családi ház (2004)A 2004-ben téglából épült, 67
nm-es családi ház elrendezése: 2 szoba, nappali, étkező-konyha, fürdőszoba és
külön WC. Fűtése vízteres kandallóval megoldott, jelenleg gázóra nincs. Az
épület fa nyílászárókkal rendelkezik, a homlokzat külső vakolatot kapott, festés
és igény szerint szigetelés javasolt. Az ingatlanhoz 16,5 nm-es garázs is
tartozik.Irányár: 38,5 millió Ft.2. épület ? 93 nm-es felújított családi házA
telken található egy 93 nm-es, téglából és blokkból épült családi ház, amely
2002-ben teljes körű felújításon esett át. A felújítás során megtörtént a
tetőcsere, a villamoshálózat korszerűsítése, a fürdőszoba felújítása, a
nyílászárók cseréje, a fűtés korszerűsítése, a hideg- és melegburkolatok
cseréje, valamint a külső homlokzat szigetelése és színezése. Elrendezése: 3
szoba, nappali, konyha, előszoba, kamra, fürdőszoba és külön WC. A ház részben
alápincézett, klímával felszerelt, fűtése vegyestüzelésű kazánnal és gázcirkóval
is megoldható, valamint teljes közművel rendelkezik. Az ingatlan részben
bútorozva kerül értékesítésre.Irányár: 54 millió Ft.A két ház közös udvari
bejárattal rendelkezik, és a nagy forgalmú főút melletti elhelyezkedésnek
köszönhetően vállalkozási célra is kiváló lehetőséget kínál. Az egyik épület
könnyen átalakítható üzlethelyiséggé, például cukrászda, kávézó, szépségszalon,
fodrászat, masszázs- vagy egészségügyi rendelő, iroda, bemutatóterem vagy
webshop átvételi pont céljára. További előny, hogy az utcafront felől külön
bejárat is kialakítható, így az üzlet és a lakótér teljesen elkülöníthető.Ez az
ingatlan kiváló befektetési lehetőség, hiszen egyszerre kínál lakhatási,
bérbeadási és üzleti hasznosítási potenciált egy jól látható, forgalmas
elhelyezkedésű telken.
Részletek...
Adatlap
| Ár: | 38.500.000 Ft |
| Település: | Lőrinci |
| A hirdető: | Ingatlaniroda ajánlatából |
| Értékesítés típusa: | Eladó |
| Telek nagysága (m2) : | 115 |
| Épület hasznos területe (m2) : | 67 |
| Szobák száma: | 3 |
| Komfort: | Összkomfortos |
| Fűtés: | Egyéb fűtéses |
| Ingatlan állapota: | Normál állapotú |
| Anyaga: | Tégla |
| A hirdető kérése: | Ingatlanközvetítő vagyok - keresse fel Irodánkat! |
| Feladás dátuma: | 2026.05.15 |
| Eddig megtekintették 27 alkalommal | |
A hirdető adatai
Kapcsolat a hirdetővel...
Családi házak rovaton belül a(z) "BEFEKTETŐK FIGYELEM! Két családi ház egy telken Lőrinciben ?" című hirdetést látja. (fent)




























