
Eladó ikerház Százhalombatta, ÚJ ÉPÍTÉSŰ, IKERHÁZI LAKÁSOK!
Százhalombatta családi házas övezetében, Dunafüreden kínálunk megvételre két
lakóegységből álló ikerházat.A kivitelező cég számos százhalombattai
referenciamunkával rendelkezik, aki több éve megbízhatóan, pontos határidőkkel
végzi a kivitelezést ügyfelei legnagyobb megelégedésére.Az építkezés
folyamatosan halad, várható befejezés: 2027 tavasz.Az ikerházi lakások
társasházi alapító okirattal, külön helyrajzi számmal (albetétesítve) és külön
mérőórákkal, saját kertrésszel kerülnek átadásra a leendő tulajdonosok
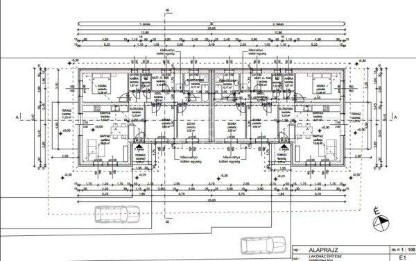
részére.1.lakás:bruttó 107 nm, nettó 80 nm + 11,25 nm terasz + 3,70 nm
tornáctelekterület: 300 nmszobaszám: 2 + 22.lakás:bruttó 107 nm, nettó 80 nm
11,25 nm terasz + 3,70 nm tornáctelekterület: 450 nmszobaszám: 2 + 2Az ár a
befejezett, KULCSRAKÉSZ állapotra vonatkozik!Főbb műszaki paraméterek:- alap:
vasalt, szigetelt beton sávalap- tartófalazat: 30-as Porotherm XTherm okostégla-
válaszfalak: 10-es Ytong- szigetelés: homlokzat 15 cm dryvit, lábazat 10 cm xps-
födém: a szerkezetű, 25 cm fújt cellulóz szigeteléssel- fűtés: Panasonic
hőszivattyú (5 kW), padlófűtés hőleadással- melegvíz: hőszivattyúra kötött 200
literes HMV tartály- nyílászárók: fehér, három rétegű hő-és hangszigetelt,
beépített redőnytokkalA belső ajtók 50.000 Ft/db, a hideg-és meleg burkolatok
4.000 Ft/nm-es árig a vevő által szabadon választhatóak.Az érdeklődők részére
teljes műszaki és fotódokumentáció rendelkezésre áll, valamint már elkészült
referencia házak is megtekinthetőek.Otthon Start, CSOK Plusz és piaci hitel
igénybe vehető, melyben ingatlanirodánk BANKFÜGGETLEN hitelcentruma, DÍJMENTESEN
áll érdeklődőink rendelkezésére.- Egyedi, bankfiókban nem elérhető kamat- és
díjkedvezmények- Hitelképesség vizsgálat- Idő, energia és pénz megtakarítás-
Teljes hivatali ügyintézésNe maradjon le róla!További információkért és
megtekintéssel kapcsolatban várom jelentkezését a hét minden napján.A
hirdetésben szereplő adatok tájékoztató jellegűek, nem minősülnek
ajánlattételnek. ...TOVÁBBI, TÖBBEZRES INGATLAN KÍNÁLAT: www.gdn-ingatlan.hu -
GDN azonosító: 393451
lakóegységből álló ikerházat.A kivitelező cég számos százhalombattai
referenciamunkával rendelkezik, aki több éve megbízhatóan, pontos határidőkkel
végzi a kivitelezést ügyfelei legnagyobb megelégedésére.Az építkezés
folyamatosan halad, várható befejezés: 2027 tavasz.Az ikerházi lakások
társasházi alapító okirattal, külön helyrajzi számmal (albetétesítve) és külön
mérőórákkal, saját kertrésszel kerülnek átadásra a leendő tulajdonosok
részére.1.lakás:bruttó 107 nm, nettó 80 nm + 11,25 nm terasz + 3,70 nm
tornáctelekterület: 300 nmszobaszám: 2 + 22.lakás:bruttó 107 nm, nettó 80 nm
11,25 nm terasz + 3,70 nm tornáctelekterület: 450 nmszobaszám: 2 + 2Az ár a
befejezett, KULCSRAKÉSZ állapotra vonatkozik!Főbb műszaki paraméterek:- alap:
vasalt, szigetelt beton sávalap- tartófalazat: 30-as Porotherm XTherm okostégla-
válaszfalak: 10-es Ytong- szigetelés: homlokzat 15 cm dryvit, lábazat 10 cm xps-
födém: a szerkezetű, 25 cm fújt cellulóz szigeteléssel- fűtés: Panasonic
hőszivattyú (5 kW), padlófűtés hőleadással- melegvíz: hőszivattyúra kötött 200
literes HMV tartály- nyílászárók: fehér, három rétegű hő-és hangszigetelt,
beépített redőnytokkalA belső ajtók 50.000 Ft/db, a hideg-és meleg burkolatok
4.000 Ft/nm-es árig a vevő által szabadon választhatóak.Az érdeklődők részére
teljes műszaki és fotódokumentáció rendelkezésre áll, valamint már elkészült
referencia házak is megtekinthetőek.Otthon Start, CSOK Plusz és piaci hitel
igénybe vehető, melyben ingatlanirodánk BANKFÜGGETLEN hitelcentruma, DÍJMENTESEN
áll érdeklődőink rendelkezésére.- Egyedi, bankfiókban nem elérhető kamat- és
díjkedvezmények- Hitelképesség vizsgálat- Idő, energia és pénz megtakarítás-
Teljes hivatali ügyintézésNe maradjon le róla!További információkért és
megtekintéssel kapcsolatban várom jelentkezését a hét minden napján.A
hirdetésben szereplő adatok tájékoztató jellegűek, nem minősülnek
ajánlattételnek. ...TOVÁBBI, TÖBBEZRES INGATLAN KÍNÁLAT: www.gdn-ingatlan.hu -
GDN azonosító: 393451
Részletek...
Adatlap
| Ár: | 110.000.000 Ft |
| Település: | Százhalombatta |
| A hirdető: | Ingatlaniroda ajánlatából |
| Értékesítés típusa: | Eladó |
| Használtság: | Új építésű |
| Utca: | ÚJ ÉPÍTÉSŰ, IKERHÁZI LAKÁSOK! |
| Telek nagysága (m2) : | 500 |
| Épület hasznos területe (m2) : | 107 |
| Szobák száma: | 2 |
| Félszobák száma: | 2 |
| Anyaga: | Tégla |
| A hirdető kérése: | Ingatlanközvetítő vagyok - keresse fel Irodánkat! |
| Feladás dátuma: | 2026.05.22 |
| Eddig megtekintették 27 alkalommal | |
A hirdető adatai
Kapcsolat a hirdetővel...
Családi házak rovaton belül a(z) "Eladó ikerház Százhalombatta, ÚJ ÉPÍTÉSŰ, IKERHÁZI LAKÁSOK!" című hirdetést látja. (fent)




























