
Modern otthon, nyugodt környezet - Érd
Érd Tusculanum csendes, családias részén új építésű családi ház eladó.A nettó
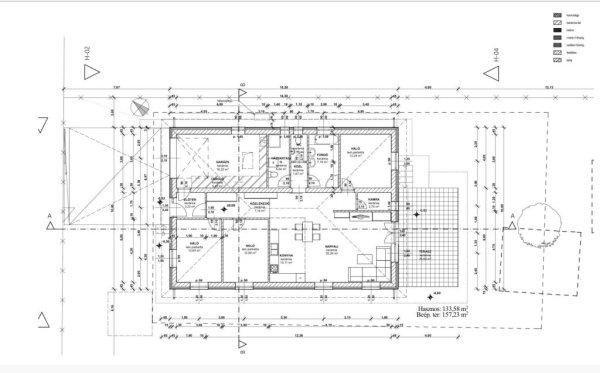
133 m˛-es, praktikus elrendezésű ingatlan nappali + 3 szoba, kamra, háztartási
helyiség, fürdőszoba, 2 külön WC és közlekedő kialakítással épül. A házhoz
tartozik egy 16 m˛-es garázs, valamint egy 5 m˛-es tároló.- 733 m˛ telek- 133 m˛
hasznos lakótér- 16 m˛ garázs - 5 m˛ tároló- Hőszivattyú- Kiváló
elhelyezkedésMűszaki adatok:Az épület 30 cm vastag Mátratherm téglából készül,
10 cm Ytong válaszfalakkal, C16 beton alapozással és vasalt zsalukő lábazattal.
A födém betongerendás rendszerű, 30 cm üveggyapot hőszigeteléssel. A tető fa
szerkezetű, cserépfedéssel, horganyzott csatornával.A nyílászárók 3 rétegű
üvegezésű műanyag ablakok, a belső ajtók MDF fóliázott kivitelben készülnek. A
belső falak glettelve, csiszolva, fehér Héra festéssel kerülnek átadásra.A ház
padlófűtéssel készül, melyet 9 kW-os BOSCH hőszivattyú biztosít, a melegvíz
ellátást 200 literes HMV tartály szolgálja ki.A burkolatok a vételár részét
képezik:hidegburkolatok és laminált padló kb. 7000 Ft/m˛ értékig, a fürdőszoba
falburkolata 2,2 m magasságig készül. A szaniterek és csaptelepek szintén
meghatározott értékhatárig választhatók.A telken elektromos tolókapu,
személybejáró kapu kaputelefonnal, valamint elektromos garázskapu kerül
kialakításra.Az ingatlan jelenleg alapozási fázisban van, a tervezett átadás
2026 július vége.A kivitelező több mint 15 éves tapasztalattal és számos
referenciával rendelkezik, amelyek igény esetén megtekinthetők.Környék:Az
ingatlan csendes, zöldövezeti, családias kertvárosi környezetben helyezkedik el.
A közelben buszmegálló, orvosi rendelő és vasútállomás is megtalálható, az
autópálya pedig néhány perc alatt könnyen elérhető.?Aszfaltos utca, barátságos
környezet, modern műszaki tartalom és megbízható kivitelező ? ideális választás
új otthonának.Amennyiben felkeltettem érdeklődését kérem hívjon bizalommal!
133 m˛-es, praktikus elrendezésű ingatlan nappali + 3 szoba, kamra, háztartási
helyiség, fürdőszoba, 2 külön WC és közlekedő kialakítással épül. A házhoz
tartozik egy 16 m˛-es garázs, valamint egy 5 m˛-es tároló.- 733 m˛ telek- 133 m˛
hasznos lakótér- 16 m˛ garázs - 5 m˛ tároló- Hőszivattyú- Kiváló
elhelyezkedésMűszaki adatok:Az épület 30 cm vastag Mátratherm téglából készül,
10 cm Ytong válaszfalakkal, C16 beton alapozással és vasalt zsalukő lábazattal.
A födém betongerendás rendszerű, 30 cm üveggyapot hőszigeteléssel. A tető fa
szerkezetű, cserépfedéssel, horganyzott csatornával.A nyílászárók 3 rétegű
üvegezésű műanyag ablakok, a belső ajtók MDF fóliázott kivitelben készülnek. A
belső falak glettelve, csiszolva, fehér Héra festéssel kerülnek átadásra.A ház
padlófűtéssel készül, melyet 9 kW-os BOSCH hőszivattyú biztosít, a melegvíz
ellátást 200 literes HMV tartály szolgálja ki.A burkolatok a vételár részét
képezik:hidegburkolatok és laminált padló kb. 7000 Ft/m˛ értékig, a fürdőszoba
falburkolata 2,2 m magasságig készül. A szaniterek és csaptelepek szintén
meghatározott értékhatárig választhatók.A telken elektromos tolókapu,
személybejáró kapu kaputelefonnal, valamint elektromos garázskapu kerül
kialakításra.Az ingatlan jelenleg alapozási fázisban van, a tervezett átadás
2026 július vége.A kivitelező több mint 15 éves tapasztalattal és számos
referenciával rendelkezik, amelyek igény esetén megtekinthetők.Környék:Az
ingatlan csendes, zöldövezeti, családias kertvárosi környezetben helyezkedik el.
A közelben buszmegálló, orvosi rendelő és vasútállomás is megtalálható, az
autópálya pedig néhány perc alatt könnyen elérhető.?Aszfaltos utca, barátságos
környezet, modern műszaki tartalom és megbízható kivitelező ? ideális választás
új otthonának.Amennyiben felkeltettem érdeklődését kérem hívjon bizalommal!
Részletek...
Adatlap
| Ár: | 154.800.000 Ft |
| Település: | Érd |
| A hirdető: | Ingatlaniroda ajánlatából |
| Értékesítés típusa: | Eladó |
| Használtság: | Új építésű |
| Telek nagysága (m2) : | 733 |
| Épület hasznos területe (m2) : | 133.00 |
| Szobák száma: | 4 |
| Feladás dátuma: | 2026.05.22 |
| Eddig megtekintették 28 alkalommal | |
A hirdető adatai
Kapcsolat a hirdetővel...
Családi házak rovaton belül a(z) "Modern otthon, nyugodt környezet - Érd" című hirdetést látja. (fent)




























