
Érden eladó ez a sok lehetőséget rejtő nagy családi ház, aká
Érden eladó ez a sok lehetőséget rejtő nagy családi ház, akár két
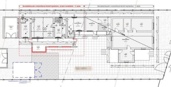
generációnak!Az Érdi Jégcsarnok közelében található, a vasúti megállótól néhány
perc sétára.A ház 200nm.Telek 1000nm.Tégla építésű, cserép fedéssel.Jelenleg két
külön álló lakásból áll.Lke-2 övezeti besorolású.Összközműves.Az utca felőli
lakás kb.1960-as évek végén épült, a hátsó lakás 1980-as években.Az első lakásba
kis fedett teraszon át jutunk, egy nagyon tágas előszobába.Innen egy 33nm-es
nappali nyílik ahol egyszép cserépkályha teszi otthonossá a hűvösebb
napokat.Majd a nappaliból egy szobába, a fürdőszobába és egy konyhába
érkezünk.Az alaprajzhoz képest eltérés van, mert itt ajtón át egy nyári
konyhának kialakított helyiségbe érkezünk.Ennek a lakásnak hátsó fedett terasza
is van.Ez fafödémes.A fűtést gázkazán biztosítja radiátoros hőleadással, a meleg
vizet bojler szolgáltatja.A második lakás amely belső kétszintes, közvetlenül
mellette helyezkedik el.Előszobából nyílik a konyha amely ékezős, az emeleti
feljáró, és egy szép nappali.A nappaliból pedig egy külön álló wc, és egy
fürdőszoba, amely káddal felszerelt.Az emeleten egy kisebb szoba és egy
hálófülkés szoba lett kialakítva.A fűtést kombi cirkó biztosítja, a meleg vízzel
együtt.Ehhez a lakáshoz egy fedett pihenő részt építettek.Akár jakuzzinak, vagy
pihenő szobának, vagy nyári konyhának remekül használható.A pince szintén itt
található, mely 20nm.Ez betonfödémes.A kertben fedett garázs kettő is
épült.Jelenleg az egyiket garázsnak, a másikat tárolónak használják a
tulajdonosok.Gondozott, rendezett a kert, ahol még gyümölcsfák, és szőlő is
gazdagon terem.Környék: a közelben a Érdi Batthyány Sportiskolai Általános
Iskola és Gimnázium, Érd Aréna, Jégcsarnok.Boltok, üzletek a Fehérvári és a
Velencei úton megtalálhatók. Érd vasútállomás kis sétára, a busz pedig 10 percre
található.Jellemzői: - előszoba 2- szoba 5- fürdőszoba 2- konyha 2- nyári konyha
(dolgozó)- wc 2A térképmásolat egyezik a valósággal, HITELEZHETŐ!Összességében
karbantartott családi ház, egy kis modernizálás után tökéletes otthon lehet
belőle!Ha kíváncsi keressen
generációnak!Az Érdi Jégcsarnok közelében található, a vasúti megállótól néhány
perc sétára.A ház 200nm.Telek 1000nm.Tégla építésű, cserép fedéssel.Jelenleg két
külön álló lakásból áll.Lke-2 övezeti besorolású.Összközműves.Az utca felőli
lakás kb.1960-as évek végén épült, a hátsó lakás 1980-as években.Az első lakásba
kis fedett teraszon át jutunk, egy nagyon tágas előszobába.Innen egy 33nm-es
nappali nyílik ahol egyszép cserépkályha teszi otthonossá a hűvösebb
napokat.Majd a nappaliból egy szobába, a fürdőszobába és egy konyhába
érkezünk.Az alaprajzhoz képest eltérés van, mert itt ajtón át egy nyári
konyhának kialakított helyiségbe érkezünk.Ennek a lakásnak hátsó fedett terasza
is van.Ez fafödémes.A fűtést gázkazán biztosítja radiátoros hőleadással, a meleg
vizet bojler szolgáltatja.A második lakás amely belső kétszintes, közvetlenül
mellette helyezkedik el.Előszobából nyílik a konyha amely ékezős, az emeleti
feljáró, és egy szép nappali.A nappaliból pedig egy külön álló wc, és egy
fürdőszoba, amely káddal felszerelt.Az emeleten egy kisebb szoba és egy
hálófülkés szoba lett kialakítva.A fűtést kombi cirkó biztosítja, a meleg vízzel
együtt.Ehhez a lakáshoz egy fedett pihenő részt építettek.Akár jakuzzinak, vagy
pihenő szobának, vagy nyári konyhának remekül használható.A pince szintén itt
található, mely 20nm.Ez betonfödémes.A kertben fedett garázs kettő is
épült.Jelenleg az egyiket garázsnak, a másikat tárolónak használják a
tulajdonosok.Gondozott, rendezett a kert, ahol még gyümölcsfák, és szőlő is
gazdagon terem.Környék: a közelben a Érdi Batthyány Sportiskolai Általános
Iskola és Gimnázium, Érd Aréna, Jégcsarnok.Boltok, üzletek a Fehérvári és a
Velencei úton megtalálhatók. Érd vasútállomás kis sétára, a busz pedig 10 percre
található.Jellemzői: - előszoba 2- szoba 5- fürdőszoba 2- konyha 2- nyári konyha
(dolgozó)- wc 2A térképmásolat egyezik a valósággal, HITELEZHETŐ!Összességében
karbantartott családi ház, egy kis modernizálás után tökéletes otthon lehet
belőle!Ha kíváncsi keressen
Részletek...
Adatlap
| Ár: | 99.000.000 Ft |
| Település: | Érd |
| A hirdető: | Ingatlaniroda ajánlatából |
| Értékesítés típusa: | Eladó |
| Használtság: | Használt |
| Telek nagysága (m2) : | 1000 |
| Épület hasznos területe (m2) : | 200.00 |
| Szobák száma: | 6 |
| Ingatlan állapota: | Normál állapotú |
| Feladás dátuma: | 2026.05.22 |
| Eddig megtekintették 26 alkalommal | |
A hirdető adatai
Kapcsolat a hirdetővel...
Családi házak rovaton belül a(z) "Érden eladó ez a sok lehetőséget rejtő nagy családi ház, aká" című hirdetést látja. (fent)




























