
Megvételre kínálunk a 17. kerület egyik legszebb részén, Rák
Megvételre kínálunk a 17. kerület egyik legszebb részén,
Rákoscsaba-Újtelepen, egy modern, könnyűszerkezetes, garázsos, NAPELEMES,
teraszos, 118 nm-es, 4 vagy 5 szobás, gardróbos, 2 fürdős újépítésű ikerházat.Az
ingatlanok ?AA? energetikai besorolásnak megfelelő paraméterekkel rendelkező
önfenntartó otthonok.Minőségi alapanyagokból, igényes kivitelezés jellemzi a
projektet, ahol a biztonság és a kényelem mellett az energiatakarékosság volt a
fő szempont. A ház átgondolt tervezésének köszönhetően kényelmes, otthonos,
szellős, viszont ugyanakkor bővelkedik a reprezentatív, elegáns elemekkel.A
napelemnek köszönhetően a rezsi költségek minimalizálódnak.A gépjárművekkel az
ingatlanhoz tartozó garázsban, fedett parkolóban vagy térkövezett beállón lehet
biztonságosan parkolni. Az ingatlanhoz 271 nm-es privát telek tartozik Igénybe
vehető lehetséges kedvezmények:CSOK PLUSZ5% Áfa visszatérítésBabaváró
hitelIlleték kedvezmény vagy mentesség. Az új generációs technológiával épülő
házak kiemelkedő és meggyőző tulajdonságai:- a téglafalaknál jobb hőtartással és
hangszigeteléssel rendelkeznek- nincs bepárolgás, penészesedés- a téglaházakkal
megegyező élettartam és szerkezeti garancia- 9 rétegrendű falak- 8 rétegrendű
födém- 7 rétegrendű padlózat- kiemelkedő ár-érték arányAz ?AA? energetikai
besorolásnak megfelelő paraméterekkel rendelkező, önfenntartó otthonok, 118 nm
hasznos területtel, kétféle típusterv alapján épülnek, belső kétszintes, dupla
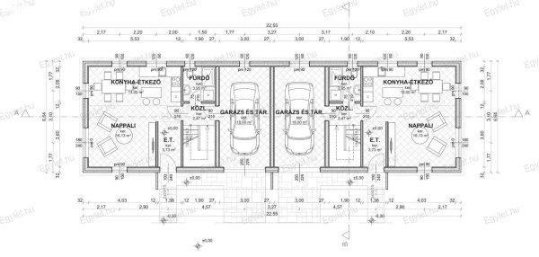
komfortos, 4 illetve 5 szobás kialakítással.Földszinten: konyha, étkező,
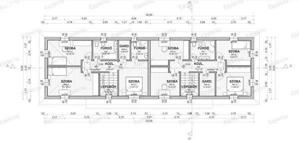
nappali, előszoba, fürdő, beépített lépcsőfeljáró, fűtött garázs.Felső szinten:
3 vagy 4 szoba, 1 vagy 2 fürdőszoba, gardrób.Legfontosabb jellemzői:- a
SolarEdge napelem rendszer kinullázza a villanyszámlát (az általa termelt
energia elegendő a teljes háztartás ellátására és pluszban akár egy elektromos
autó egész éves töltésére)- elektromos Nobo Oslo Glass radiátorok a fűtéshez- a
hűtésről Cascade inverteres okos klíma gondoskodik- automata öntözőrendszer-
automata kapuk és garázskapuk- ARISTON bojler a melegvíz előállítására-
beépített szaniterek- elektromos törölközőszárítós radiátorok a fürdőkben-
prémium kategóriás antracit színű biztonsági bejárati ajtó- riasztó rendszer-
video kaputelefonTető: antracit színű cserepes lemezNyílászárók: Kömmerling
márkájú, minőségi 5 légkamrás, 3 rétegű üvegezéssel ellátott kívülről antracit,
belül fehér műanyag ablakok és erkélyajtók, alumínium kombi redőnyökkelBelső
térben, a lépcső mellett modern üvegkorlát világítással.Elhelyezkedéstől függően
az árak az alábbiak szerint alakulnak:Hátsó lakások: 437 nm telekrésszel,
nappali + 4 szobával Ára: 149.000.000 Ft Az ingatlan biztonságos, nyugodt,
csendes, kertes házas övezetében, Rákoscsaba-Újtelep egyik legszebb részén, a
Naplás-tó természetvédelmi terület szomszédságában található. A környék fejlett
infrastruktúrájának köszönhetően bővelkedik a szociális intézményekben,
bölcsőde, óvoda, általános iskola, orvosi intézmények, bevásárlási lehetőségek,
találhatóak a közelben.Közlekedése kiváló, busszal az Örs vezér tér vagy
vonattal a Keleti pu. rövid idő alatt megközelíthető. Az M0-ás és az M31-es
autópálya öt perc alatt elérhető.Hitel, CSOK igénylésben díjmentes ügyintézéssel
állunk rendelkezésére! Nálunk kiválaszthatja az Ön számára legkedvezőbb
ajánlatot.Várom megtisztelő érdeklődésüket.
Rákoscsaba-Újtelepen, egy modern, könnyűszerkezetes, garázsos, NAPELEMES,
teraszos, 118 nm-es, 4 vagy 5 szobás, gardróbos, 2 fürdős újépítésű ikerházat.Az
ingatlanok ?AA? energetikai besorolásnak megfelelő paraméterekkel rendelkező
önfenntartó otthonok.Minőségi alapanyagokból, igényes kivitelezés jellemzi a
projektet, ahol a biztonság és a kényelem mellett az energiatakarékosság volt a
fő szempont. A ház átgondolt tervezésének köszönhetően kényelmes, otthonos,
szellős, viszont ugyanakkor bővelkedik a reprezentatív, elegáns elemekkel.A
napelemnek köszönhetően a rezsi költségek minimalizálódnak.A gépjárművekkel az
ingatlanhoz tartozó garázsban, fedett parkolóban vagy térkövezett beállón lehet
biztonságosan parkolni. Az ingatlanhoz 271 nm-es privát telek tartozik Igénybe
vehető lehetséges kedvezmények:CSOK PLUSZ5% Áfa visszatérítésBabaváró
hitelIlleték kedvezmény vagy mentesség. Az új generációs technológiával épülő
házak kiemelkedő és meggyőző tulajdonságai:- a téglafalaknál jobb hőtartással és
hangszigeteléssel rendelkeznek- nincs bepárolgás, penészesedés- a téglaházakkal
megegyező élettartam és szerkezeti garancia- 9 rétegrendű falak- 8 rétegrendű
födém- 7 rétegrendű padlózat- kiemelkedő ár-érték arányAz ?AA? energetikai
besorolásnak megfelelő paraméterekkel rendelkező, önfenntartó otthonok, 118 nm
hasznos területtel, kétféle típusterv alapján épülnek, belső kétszintes, dupla
komfortos, 4 illetve 5 szobás kialakítással.Földszinten: konyha, étkező,
nappali, előszoba, fürdő, beépített lépcsőfeljáró, fűtött garázs.Felső szinten:
3 vagy 4 szoba, 1 vagy 2 fürdőszoba, gardrób.Legfontosabb jellemzői:- a
SolarEdge napelem rendszer kinullázza a villanyszámlát (az általa termelt
energia elegendő a teljes háztartás ellátására és pluszban akár egy elektromos
autó egész éves töltésére)- elektromos Nobo Oslo Glass radiátorok a fűtéshez- a
hűtésről Cascade inverteres okos klíma gondoskodik- automata öntözőrendszer-
automata kapuk és garázskapuk- ARISTON bojler a melegvíz előállítására-
beépített szaniterek- elektromos törölközőszárítós radiátorok a fürdőkben-
prémium kategóriás antracit színű biztonsági bejárati ajtó- riasztó rendszer-
video kaputelefonTető: antracit színű cserepes lemezNyílászárók: Kömmerling
márkájú, minőségi 5 légkamrás, 3 rétegű üvegezéssel ellátott kívülről antracit,
belül fehér műanyag ablakok és erkélyajtók, alumínium kombi redőnyökkelBelső
térben, a lépcső mellett modern üvegkorlát világítással.Elhelyezkedéstől függően
az árak az alábbiak szerint alakulnak:Hátsó lakások: 437 nm telekrésszel,
nappali + 4 szobával Ára: 149.000.000 Ft Az ingatlan biztonságos, nyugodt,
csendes, kertes házas övezetében, Rákoscsaba-Újtelep egyik legszebb részén, a
Naplás-tó természetvédelmi terület szomszédságában található. A környék fejlett
infrastruktúrájának köszönhetően bővelkedik a szociális intézményekben,
bölcsőde, óvoda, általános iskola, orvosi intézmények, bevásárlási lehetőségek,
találhatóak a közelben.Közlekedése kiváló, busszal az Örs vezér tér vagy
vonattal a Keleti pu. rövid idő alatt megközelíthető. Az M0-ás és az M31-es
autópálya öt perc alatt elérhető.Hitel, CSOK igénylésben díjmentes ügyintézéssel
állunk rendelkezésére! Nálunk kiválaszthatja az Ön számára legkedvezőbb
ajánlatot.Várom megtisztelő érdeklődésüket.
Részletek...
Adatlap
| Ár: | 134.700.000 Ft |
| A hirdető: | Ingatlaniroda ajánlatából |
| Értékesítés típusa: | Eladó |
| Telek nagysága (m2) : | 271 |
| Épület hasznos területe (m2) : | 118 |
| Szobák száma: | 4 |
| Komfort: | Duplakomfortos |
| Fűtés: | Egyéb fűtéses |
| Ingatlan állapota: | Normál állapotú |
| Anyaga: | Egyéb anyagból készült épület |
| A hirdető kérése: | Ingatlanközvetítő vagyok - keresse fel Irodánkat! |
| Feladás dátuma: | 2026.04.22 |
| Eddig megtekintették 19 alkalommal | |
A hirdető adatai
Kapcsolat a hirdetővel...
Családi házak rovaton belül a(z) "Megvételre kínálunk a 17. kerület egyik legszebb részén, Rák" című hirdetést látja. (fent)




























