
Piliscsaba, 77 m2, 84945000 HUF, 4 szoba [4425_437]
KORSZERŰ ESZTÉTIKUS IKERHÁZFÉL KULCSRAKÉSZENCSODÁS KÖRNYEZET VASÚT 10 PERC
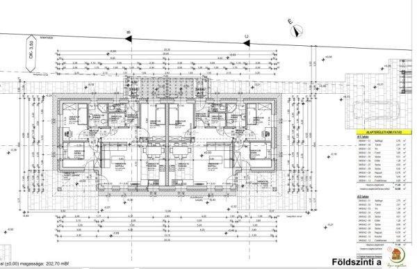
GYALOGPiliscsabán, Klotildliget és Magdolnavölgy között kínálunk 2027-ben
elkészülő földszintes, teraszos, panorámás ikerházfeleket. Minőségi
építőanyagok, igényes kivitelezés.71,43m˛+13m˛ teraszBeosztás: Nappali (20m˛), 3
szoba, konyha, fürdőszoba, WC, tároló, előtér, szélfogó, fedett teraszMűszaki
leírás: Sávalap, 30-as N+F kerámia tégla falazóelem, 25 cm-es hangszigetelő
téglaválaszfal, 15cm-es hőszigetelő vakolatrendszer, fehér színű nemesvakolat,
cserépfedés, minőségi bádogos szerkezet, háromrétegű hőszigetelt bukó-nyíló
ablakok, acélszerkezetes biztonsági bejárati ajtó. Hőszivattyú padlófűtéssel,
radiátoros hőleadással.A kaputelefon, riasztó, elektromos tűzhely, kábel tv,
klímaberendezés és lámpatest csatlakozások kiépítését, a kapcsolókat és a
konnektorokat az ár tartalmazza. Az ár nem tartalmazza a napelemért megfizetendő
1.200.000 Ft-ot és a kerítés költségét. Hideg és meleg burkolatok, szaniterek,
belső ajtók, belső helyiségek diszperzites festésének színe az építkezés
ütemétől függően egyeztethetők. ITT ÉPÜLŐ TOVÁBBI CSALÁDI ÉS IKERHÁZAK EGYEDI
IGÉNYEK ALAPJÁN MÉG LEKÖTHETŐK. További részletekért hívjon bizalommal. ÉLVEZZE
A KÉNYELMET ÉS A TERMÉSZET KÖZELSÉGÉT EZEN A GYÖNYÖRŰ AGGLOMERÁCIÓS
TELEPÜLÉSEN!HEXI INGATLAN - OTTHON A PILISBENHajas Gabriella
GYALOGPiliscsabán, Klotildliget és Magdolnavölgy között kínálunk 2027-ben
elkészülő földszintes, teraszos, panorámás ikerházfeleket. Minőségi
építőanyagok, igényes kivitelezés.71,43m˛+13m˛ teraszBeosztás: Nappali (20m˛), 3
szoba, konyha, fürdőszoba, WC, tároló, előtér, szélfogó, fedett teraszMűszaki
leírás: Sávalap, 30-as N+F kerámia tégla falazóelem, 25 cm-es hangszigetelő
téglaválaszfal, 15cm-es hőszigetelő vakolatrendszer, fehér színű nemesvakolat,
cserépfedés, minőségi bádogos szerkezet, háromrétegű hőszigetelt bukó-nyíló
ablakok, acélszerkezetes biztonsági bejárati ajtó. Hőszivattyú padlófűtéssel,
radiátoros hőleadással.A kaputelefon, riasztó, elektromos tűzhely, kábel tv,
klímaberendezés és lámpatest csatlakozások kiépítését, a kapcsolókat és a
konnektorokat az ár tartalmazza. Az ár nem tartalmazza a napelemért megfizetendő
1.200.000 Ft-ot és a kerítés költségét. Hideg és meleg burkolatok, szaniterek,
belső ajtók, belső helyiségek diszperzites festésének színe az építkezés
ütemétől függően egyeztethetők. ITT ÉPÜLŐ TOVÁBBI CSALÁDI ÉS IKERHÁZAK EGYEDI
IGÉNYEK ALAPJÁN MÉG LEKÖTHETŐK. További részletekért hívjon bizalommal. ÉLVEZZE
A KÉNYELMET ÉS A TERMÉSZET KÖZELSÉGÉT EZEN A GYÖNYÖRŰ AGGLOMERÁCIÓS
TELEPÜLÉSEN!HEXI INGATLAN - OTTHON A PILISBENHajas Gabriella
Részletek...
Adatlap
| Ár: | 84.945.000 Ft |
| Település: | Piliscsaba |
| A hirdető: | Ingatlaniroda ajánlatából |
| Értékesítés típusa: | Eladó |
| Utca: | KORSZERŰ ESZTÉTIKUS IKERHÁZFÉL KULCSRAKÉSZEN |
| Telek nagysága (m2) : | 600 |
| Épület hasznos területe (m2) : | 77 |
| Szobák száma: | 4 |
| Anyaga: | Egyéb anyagból készült épület |
| A hirdető kérése: | Ingatlanközvetítő vagyok - keresse fel Irodánkat! |
| Feladás dátuma: | 2026.03.30 |
| Eddig megtekintették 0 alkalommal | |
A hirdető adatai
Kapcsolat a hirdetővel...
Családi házak rovaton belül a(z) "Piliscsaba, 77 m2, 84945000 HUF, 4 szoba [4425_437]" című hirdetést látja. (fent)
















![Piliscsaba, 78 m2, 84500000 HUF, 4 szoba [4425_432] Piliscsaba, 78 m2, 84500000 HUF, 4 szoba [4425_432]](/hirdetesek/ads_new_xml2/15/158568/thmb_piliscsaba-78-m2-8_01771200278.jpg)
![Piliscsaba, 98 m2, 84900000 HUF, 4 szoba [4425_74] Piliscsaba, 98 m2, 84900000 HUF, 4 szoba [4425_74]](/hirdetesek/ads_new_xml2/13/133247/thmb_piliscsaba-98-m2-7_01748460202.jpg)
![Piliscsaba, 184 m2, 195000000 HUF, 5 szoba [4425_414] Piliscsaba, 184 m2, 195000000 HUF, 5 szoba [4425_414]](/hirdetesek/ads_new_xml2/14/146193/thmb_piliscsaba-184-m2_01749427447.jpg)
![Piliscsaba, 440 m2, 269000000 HUF, 9 szoba [4425_405] Piliscsaba, 440 m2, 269000000 HUF, 9 szoba [4425_405]](/hirdetesek/ads_new_xml2/14/143715/thmb_piliscsaba-458-m2_01748381222.jpg)
![Piliscsaba, 92 m2, 118125000 HUF, 5 szoba [4425_438] Piliscsaba, 92 m2, 118125000 HUF, 5 szoba [4425_438]](/hirdetesek/ads_new_xml2/16/160547/thmb_piliscsaba-92-m2-1_01774828985.jpg)
![Piliscsaba, 77 m2, 84945000 HUF, 4 szoba [4425_437] Piliscsaba, 77 m2, 84945000 HUF, 4 szoba [4425_437]](/hirdetesek/ads_new_xml2/16/160546/thmb_piliscsaba-77-m2-8_01774828985.jpg)
![Piliscsaba, 77 m2, 84945000 HUF, 4 szoba [4425_437] Piliscsaba, 77 m2, 84945000 HUF, 4 szoba [4425_437]](/hirdetesek/ads_new_xml2/16/160546/thmb_piliscsaba-77-m2-8_11774828985.jpg)
![Piliscsaba, 77 m2, 84945000 HUF, 4 szoba [4425_437] Piliscsaba, 77 m2, 84945000 HUF, 4 szoba [4425_437]](/hirdetesek/ads_new_xml2/16/160546/thmb_piliscsaba-77-m2-8_21774828985.jpg)
![Piliscsaba, 77 m2, 84945000 HUF, 4 szoba [4425_437] Piliscsaba, 77 m2, 84945000 HUF, 4 szoba [4425_437]](/hirdetesek/ads_new_xml2/16/160546/thmb_piliscsaba-77-m2-8_31774828985.jpg)
![Piliscsaba, 77 m2, 84945000 HUF, 4 szoba [4425_437] Piliscsaba, 77 m2, 84945000 HUF, 4 szoba [4425_437]](/hirdetesek/ads_new_xml2/16/160546/thmb_piliscsaba-77-m2-8_41774828985.jpg)


