
Eladó családi ház Szeged, Vinkler László út
Eladó kulcsrakész családi ház Szegeden, a Liliom lakóparkban BYD mellett!A
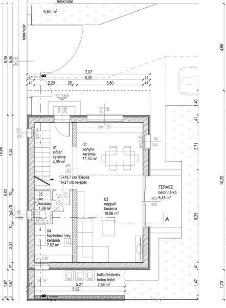
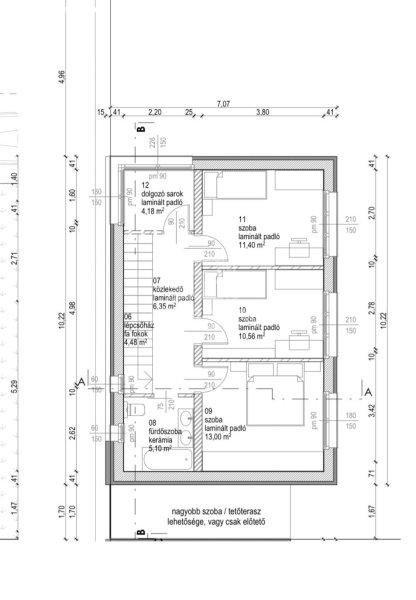
modern elosztású ingatlan amerikai konyhás nappalival, 3 szobával, 2
fürdőszobával, dolgozósarokkal és külön háztartási helyiséggel rendelkezik 100
nm2-en.A ház kulcsrakész állapotban kerül átadásra: választható burkolatokkal,
festett falakkal, szaniterekkel, beltéri ajtókkal és komplett elektromos
szereléssel. Az épület korszerű háromrétegű nyílászárókkal, levegő?víz
hőszivattyús padlófűtéssel, klíma előkészítéssel, valamint modern gépészeti és
elektromos rendszerrel készül.A jól átgondolt elrendezésnek köszönhetően a ház
tágas, világos és jól kihasználható tereket biztosít az egész család
számáraTovábbi információért és megtekintésért keressen bizalommal! ...TOVÁBBI,
TÖBBEZRES INGATLAN KÍNÁLAT: www.gdn-ingatlan.hu - GDN azonosító: 394292
modern elosztású ingatlan amerikai konyhás nappalival, 3 szobával, 2
fürdőszobával, dolgozósarokkal és külön háztartási helyiséggel rendelkezik 100
nm2-en.A ház kulcsrakész állapotban kerül átadásra: választható burkolatokkal,
festett falakkal, szaniterekkel, beltéri ajtókkal és komplett elektromos
szereléssel. Az épület korszerű háromrétegű nyílászárókkal, levegő?víz
hőszivattyús padlófűtéssel, klíma előkészítéssel, valamint modern gépészeti és
elektromos rendszerrel készül.A jól átgondolt elrendezésnek köszönhetően a ház
tágas, világos és jól kihasználható tereket biztosít az egész család
számáraTovábbi információért és megtekintésért keressen bizalommal! ...TOVÁBBI,
TÖBBEZRES INGATLAN KÍNÁLAT: www.gdn-ingatlan.hu - GDN azonosító: 394292
Részletek...
Adatlap
| Ár: | 113.990.000 Ft |
| Település: | Szeged |
| A hirdető: | Ingatlaniroda ajánlatából |
| Értékesítés típusa: | Eladó |
| Használtság: | Új építésű |
| Utca: | Vinkler László út |
| Telek nagysága (m2) : | 265 |
| Épület hasznos területe (m2) : | 265 |
| Szobák száma: | 4 |
| Anyaga: | Tégla |
| A hirdető kérése: | Ingatlanközvetítő vagyok - keresse fel Irodánkat! |
| Feladás dátuma: | 2026.05.06 |
| Eddig megtekintették 21 alkalommal | |
A hirdető adatai
Kapcsolat a hirdetővel...
Családi házak rovaton belül a(z) "Eladó családi ház Szeged, Vinkler László út" című hirdetést látja. (fent)




























