
Eladó családi ház Berkenye, csendes, panorámás részen
Berkenye csendes, PANORÁMÁS részén eladó 1651 nm-es telken, 2026-ban épült,
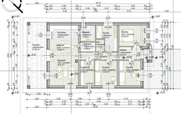
nettó 114 nm-es (+28 nm-es fedett terasz) családi ház!Műszaki
jellemzői:-szerkezete 30-as Porotherm tégla + 15 cm-es grafitos szigetelés- tető
Terrán beton cserép fedésű- 3 rétegű üvegezéssel műanyag nyílászárók- látszó
fagerendás fafödém, rajta 30 cm-es kőzetgyapot- a fűtés ECO PV hőszivattyúval
(energiahatékony-környezettudatos) megoldott, padlófűtéssel - a nappaliban
épített kémény található, mely lehetőséget biztosít a későbbiekben cserépkályha
vagy kandalló beüzemelésére,- elektromos hálózat 3 x 25 Amperes, "okosórás"-
napelemes rendszer kiállása kiépítésre kerül-épület szellőztetését egy
hővisszanyerős szellőztetési rendszer biztosítja igény esetén- H tarifás
klímának kiállás a nappaliban és a szobákban.Ami még választható:-
hidegburkolatok 8500 ft/nm melegburkolatok 6500 ft/nm árig (efelett
feláras)-szaniterek, csaptelepek, - igény szerint fürdőkádas vagy zuhanyzós
fürdő is kialakítható- beltéri ajtók tokkal, kilinccsel 50.000 ft-ig (efelett
feláras)- a kerítés, kapu, térkövezés, autónak fedett beálló kialakítása szintén
feláras.Az ingatlan jelenleg 60%-os készültségi fokban van, a teljes
kivitelezésre további 3 hónap szükséges.A kivitelező referencia munkákkal is
rendelkezik a ház közelében, igény esetén megtekinthetőek.Kinek ajánlom? Aki egy
közkedvelt településen, jó laköközösségben élne, egy új, igényesen kivitelezett
családi házban. Aki értékeli a hatalmas telket, és a ház természetközeli
elhelyezkedését. A közelben túraútvonalak tömkelege, és számtalan látványosság
várja az odaköltözőket. Pl. Hársas-tó, Nógrád vára, nógrádi vadaspark, nőtincsi
Szent István tó, Gyadai tanösvény, Csóványosi-kilátóSétatávolságra található a
331-es busz (Vác és Rétság között közlekedik) megállója és az S750-es Vác és
Diósjenő között közlekedő vonat állomása. A vásárlást INGYENES hitel
tanácsadással, előminősítéssel segítjük. CSOK Plusz- Otthon Start ügyintézés! 16
pénzintézet lehetőségeit vázolja ügyintézőnk, és versenyezteti is őket, hogy Ön
a legkedvezőbb ajánlatot kapja. ...TOVÁBBI, TÖBBEZRES INGATLAN KÍNÁLAT:
www.gdn-ingatlan.hu - GDN azonosító: 394388
nettó 114 nm-es (+28 nm-es fedett terasz) családi ház!Műszaki
jellemzői:-szerkezete 30-as Porotherm tégla + 15 cm-es grafitos szigetelés- tető
Terrán beton cserép fedésű- 3 rétegű üvegezéssel műanyag nyílászárók- látszó
fagerendás fafödém, rajta 30 cm-es kőzetgyapot- a fűtés ECO PV hőszivattyúval
(energiahatékony-környezettudatos) megoldott, padlófűtéssel - a nappaliban
épített kémény található, mely lehetőséget biztosít a későbbiekben cserépkályha
vagy kandalló beüzemelésére,- elektromos hálózat 3 x 25 Amperes, "okosórás"-
napelemes rendszer kiállása kiépítésre kerül-épület szellőztetését egy
hővisszanyerős szellőztetési rendszer biztosítja igény esetén- H tarifás
klímának kiállás a nappaliban és a szobákban.Ami még választható:-
hidegburkolatok 8500 ft/nm melegburkolatok 6500 ft/nm árig (efelett
feláras)-szaniterek, csaptelepek, - igény szerint fürdőkádas vagy zuhanyzós
fürdő is kialakítható- beltéri ajtók tokkal, kilinccsel 50.000 ft-ig (efelett
feláras)- a kerítés, kapu, térkövezés, autónak fedett beálló kialakítása szintén
feláras.Az ingatlan jelenleg 60%-os készültségi fokban van, a teljes
kivitelezésre további 3 hónap szükséges.A kivitelező referencia munkákkal is
rendelkezik a ház közelében, igény esetén megtekinthetőek.Kinek ajánlom? Aki egy
közkedvelt településen, jó laköközösségben élne, egy új, igényesen kivitelezett
családi házban. Aki értékeli a hatalmas telket, és a ház természetközeli
elhelyezkedését. A közelben túraútvonalak tömkelege, és számtalan látványosság
várja az odaköltözőket. Pl. Hársas-tó, Nógrád vára, nógrádi vadaspark, nőtincsi
Szent István tó, Gyadai tanösvény, Csóványosi-kilátóSétatávolságra található a
331-es busz (Vác és Rétság között közlekedik) megállója és az S750-es Vác és
Diósjenő között közlekedő vonat állomása. A vásárlást INGYENES hitel
tanácsadással, előminősítéssel segítjük. CSOK Plusz- Otthon Start ügyintézés! 16
pénzintézet lehetőségeit vázolja ügyintézőnk, és versenyezteti is őket, hogy Ön
a legkedvezőbb ajánlatot kapja. ...TOVÁBBI, TÖBBEZRES INGATLAN KÍNÁLAT:
www.gdn-ingatlan.hu - GDN azonosító: 394388
Részletek...
Adatlap
| Ár: | 121.500.000 Ft |
| Település: | Berkenye |
| A hirdető: | Ingatlaniroda ajánlatából |
| Értékesítés típusa: | Eladó |
| Használtság: | Új építésű |
| Utca: | csendes, panorámás részen |
| Telek nagysága (m2) : | 1651 |
| Épület hasznos területe (m2) : | 142 |
| Szobák száma: | 3 |
| Félszobák száma: | 2 |
| Anyaga: | Tégla |
| A hirdető kérése: | Ingatlanközvetítő vagyok - keresse fel Irodánkat! |
| Feladás dátuma: | 2026.05.06 |
| Eddig megtekintették 19 alkalommal | |
A hirdető adatai
Kapcsolat a hirdetővel...
Családi házak rovaton belül a(z) "Eladó családi ház Berkenye, csendes, panorámás részen" című hirdetést látja. (fent)




























