
Eladó 74m2-es Családi ház, Fonyód
A City Cartel Ingatlaniroda eladásra kínál Fonyód újparcellázású részén
egy modern elrendezésű, személyre szabható új építésű családi házat! Fonyód
egyik dinamikusan fejlődő, csendes és rendezett környezetében kínálunk
megvételre egy 74 m˛ alapterületű, modern kialakítású családi házat, amely
egy 302 m˛-es telken helyezkedik el. Az ingatlan ideális választás lehet akár
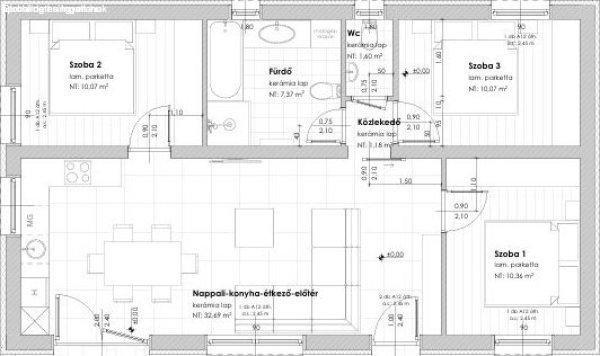
állandó otthonnak, akár balatoni nyaralónak. Helyiségek:- nappali - étkező -
konyha- 3 külön nyíló hálószoba- fürdőszoba káddal és zuhanyzóval- külön WC-
terasz Műszaki tartalom:Az ingatlan korszerű műszaki megoldásokkal és minőségi
anyagok felhasználásával épül:- 30 cm-es téglafalazat- 10 cm grafitos homlokzati
hőszigetelés- 25 cm mennyezeti hőszigetelés- energiatakarékos hűtés-fűtés
rendszer hőszivattyúval- Ariston villanybojler Elhelyezkedés:Fonyód
újparcellázású része csendes, nyugodt környezetet biztosít, miközben a Balaton,
a városközpont és a mindennapi élethez szükséges szolgáltatások is könnyen
elérhetők. Várható átadás: 2027 I. negyedév. Ne hagyja ki ezt a páratlan
lehetőséget Fonyódon! További információért keressen bizalommal a hét bármely
napján! Irodáink: 8600 Siófok, Fő tér 6. (Sió Pláza -1. szint) 8640 Fonyód, Ady
Endre u. 5. (Balaton Áruház földszint) 8638 Balatonlelle, Rákóczi út
276. Kövess minket Facebook-on is: @citycartelbalaton!
egy modern elrendezésű, személyre szabható új építésű családi házat! Fonyód
egyik dinamikusan fejlődő, csendes és rendezett környezetében kínálunk
megvételre egy 74 m˛ alapterületű, modern kialakítású családi házat, amely
egy 302 m˛-es telken helyezkedik el. Az ingatlan ideális választás lehet akár
állandó otthonnak, akár balatoni nyaralónak. Helyiségek:- nappali - étkező -
konyha- 3 külön nyíló hálószoba- fürdőszoba káddal és zuhanyzóval- külön WC-
terasz Műszaki tartalom:Az ingatlan korszerű műszaki megoldásokkal és minőségi
anyagok felhasználásával épül:- 30 cm-es téglafalazat- 10 cm grafitos homlokzati
hőszigetelés- 25 cm mennyezeti hőszigetelés- energiatakarékos hűtés-fűtés
rendszer hőszivattyúval- Ariston villanybojler Elhelyezkedés:Fonyód
újparcellázású része csendes, nyugodt környezetet biztosít, miközben a Balaton,
a városközpont és a mindennapi élethez szükséges szolgáltatások is könnyen
elérhetők. Várható átadás: 2027 I. negyedév. Ne hagyja ki ezt a páratlan
lehetőséget Fonyódon! További információért keressen bizalommal a hét bármely
napján! Irodáink: 8600 Siófok, Fő tér 6. (Sió Pláza -1. szint) 8640 Fonyód, Ady
Endre u. 5. (Balaton Áruház földszint) 8638 Balatonlelle, Rákóczi út
276. Kövess minket Facebook-on is: @citycartelbalaton!
Részletek...
Adatlap
| Ár: | 66.900.000 Ft |
| Település: | Fonyód |
| A hirdető: | Ingatlaniroda ajánlatából |
| Értékesítés típusa: | Eladó |
| Telek nagysága (m2) : | 302 |
| Épület hasznos területe (m2) : | 74 |
| Szobák száma: | 4 |
| Komfort: | Összkomfortos |
| Ingatlan állapota: | Normál állapotú |
| Anyaga: | Tégla |
| A hirdető kérése: | Ingatlanközvetítő vagyok - keresse fel Irodánkat! |
| Feladás dátuma: | 2026.05.06 |
| Eddig megtekintették 18 alkalommal | |
A hirdető adatai
Kapcsolat a hirdetővel...
Családi házak rovaton belül a(z) "Eladó 74m2-es Családi ház, Fonyód" című hirdetést látja. (fent)



























