
Eladó ikerház Budapest, X. kerület, Maglódi út
Modern, kétszintes ikerház eladó Budapest X. kerületében, Újhegy csendes,
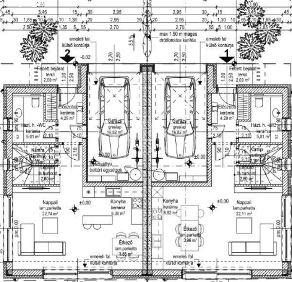
kertvárosi részén. Az új építésű ingatlan nettó 122 m˛ alapterületű, 16,8 m˛-es
garázzsal, saját kerttel és terasszal rendelkezik.Az átgondolt elrendezésnek
köszönhetően nappali?étkező?konyha egy légtérben, 3 külön nyíló hálószoba, 2
fürdőszoba, külön WC, háztartási helyiség és kamra biztosít kényelmes életteret
családok számára. A világos nappali közvetlen kertkapcsolattal rendelkezik, nagy
üvegfelületekkel.A műszaki tartalom korszerű és energiatakarékos: hőszivattyús
rendszer, padlófűtés, mennyezeti hűtés-fűtés az emeleten, 3 rétegű nyílászárók,
15 cm szigetelés.A környék infrastruktúrája kiváló: a közelben óvodák, iskolák,
bevásárlási lehetőségek, parkok, valamint gyors eljutás a belvárosba.A belső
kialakítás a vevő igényei szerint alakítható.Teljes műszaki tervdokumentáció
elérhető!Várható átadás: 2026. III. negyedév.Hitel és támogatások igényelhetők,
díjmentes ügyintézéssel.Amennyiben felkeltettem érdeklődését, keressen
bizalommal!ID: 394090 ...TOVÁBBI, TÖBBEZRES INGATLAN KÍNÁLAT:
www.gdn-ingatlan.hu - GDN azonosító: 394090
kertvárosi részén. Az új építésű ingatlan nettó 122 m˛ alapterületű, 16,8 m˛-es
garázzsal, saját kerttel és terasszal rendelkezik.Az átgondolt elrendezésnek
köszönhetően nappali?étkező?konyha egy légtérben, 3 külön nyíló hálószoba, 2
fürdőszoba, külön WC, háztartási helyiség és kamra biztosít kényelmes életteret
családok számára. A világos nappali közvetlen kertkapcsolattal rendelkezik, nagy
üvegfelületekkel.A műszaki tartalom korszerű és energiatakarékos: hőszivattyús
rendszer, padlófűtés, mennyezeti hűtés-fűtés az emeleten, 3 rétegű nyílászárók,
15 cm szigetelés.A környék infrastruktúrája kiváló: a közelben óvodák, iskolák,
bevásárlási lehetőségek, parkok, valamint gyors eljutás a belvárosba.A belső
kialakítás a vevő igényei szerint alakítható.Teljes műszaki tervdokumentáció
elérhető!Várható átadás: 2026. III. negyedév.Hitel és támogatások igényelhetők,
díjmentes ügyintézéssel.Amennyiben felkeltettem érdeklődését, keressen
bizalommal!ID: 394090 ...TOVÁBBI, TÖBBEZRES INGATLAN KÍNÁLAT:
www.gdn-ingatlan.hu - GDN azonosító: 394090
Részletek...
Adatlap
| Ár: | 129.900.000 Ft |
| Település: | X. kerület |
| A hirdető: | Ingatlaniroda ajánlatából |
| Értékesítés típusa: | Eladó |
| Utca: | Maglódi út |
| Telek nagysága (m2) : | 231 |
| Épület hasznos területe (m2) : | 122 |
| Szobák száma: | 4 |
| Anyaga: | Tégla |
| A hirdető kérése: | Ingatlanközvetítő vagyok - keresse fel Irodánkat! |
| Feladás dátuma: | 2026.04.20 |
| Eddig megtekintették 10 alkalommal | |
A hirdető adatai
Kapcsolat a hirdetővel...
Családi házak rovaton belül a(z) "Eladó ikerház Budapest, X. kerület, Maglódi út" című hirdetést látja. (fent)




























