
Eladó családi ház Budapest, X. kerület, Szőlőtelep utca
Eladó családi ház Budapest X. kerületében, a Panka közben, csendes, kertvárosi
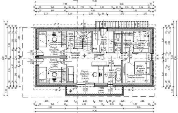
környezetben, magas műszaki tartalommal.A nettó 145 m2 alapterületű otthonhoz
22,75 m2 garázs tartozik. Önálló 409 m2-es telek!Az ingatlan korszerű, időtálló
szerkezetekkel épül: fő falazata 30 cm vastag POROTHERM 30 N+F téglából készül,
a homlokzaton 15 cm vastag grafitos hőszigeteléssel. A lábazati részen XPS, míg
a vasbeton szerkezetek külső oldalán kiegészítő EPS hőszigetelés biztosítja a
kiváló energiahatékonyságot. A belső válaszfalak 10 cm vastag kerámia
falazóelemekből épülnek.A tető Terrán Zenit Max cserépfedést kap elegáns Moon
szürke színben. A nyílászárók korszerű, háromrétegű hőszigetelt üvegezésű, fenyő
színű műanyag szerkezetek, többpontos biztonsági bejárati ajtóval.A burkolatok
igényes kialakításúak: a hálószobákban laminált parketta, míg a vizes
helyiségekben kerámia járólap és csempe készül. A külső terek is rendezettek, a
gépkocsi beálló és a járdák térkő burkolatot kapnak.A gépészet modern és
energiatakarékos: levegő?levegő rendszerű hőszivattyú biztosítja a mennyezeti
hűtés-fűtést, amelyet a nappali szinten padlófűtés egészít ki a maximális
komfort érdekében.Ez az ingatlan ideális választás mindazok számára, akik
minőségi kivitelezésű, alacsony fenntartású, modern otthont keresnek a főváros
egyik nyugodt részén.ID: ...TOVÁBBI, TÖBBEZRES INGATLAN KÍNÁLAT:
www.gdn-ingatlan.hu - GDN azonosító: 394706
környezetben, magas műszaki tartalommal.A nettó 145 m2 alapterületű otthonhoz
22,75 m2 garázs tartozik. Önálló 409 m2-es telek!Az ingatlan korszerű, időtálló
szerkezetekkel épül: fő falazata 30 cm vastag POROTHERM 30 N+F téglából készül,
a homlokzaton 15 cm vastag grafitos hőszigeteléssel. A lábazati részen XPS, míg
a vasbeton szerkezetek külső oldalán kiegészítő EPS hőszigetelés biztosítja a
kiváló energiahatékonyságot. A belső válaszfalak 10 cm vastag kerámia
falazóelemekből épülnek.A tető Terrán Zenit Max cserépfedést kap elegáns Moon
szürke színben. A nyílászárók korszerű, háromrétegű hőszigetelt üvegezésű, fenyő
színű műanyag szerkezetek, többpontos biztonsági bejárati ajtóval.A burkolatok
igényes kialakításúak: a hálószobákban laminált parketta, míg a vizes
helyiségekben kerámia járólap és csempe készül. A külső terek is rendezettek, a
gépkocsi beálló és a járdák térkő burkolatot kapnak.A gépészet modern és
energiatakarékos: levegő?levegő rendszerű hőszivattyú biztosítja a mennyezeti
hűtés-fűtést, amelyet a nappali szinten padlófűtés egészít ki a maximális
komfort érdekében.Ez az ingatlan ideális választás mindazok számára, akik
minőségi kivitelezésű, alacsony fenntartású, modern otthont keresnek a főváros
egyik nyugodt részén.ID: ...TOVÁBBI, TÖBBEZRES INGATLAN KÍNÁLAT:
www.gdn-ingatlan.hu - GDN azonosító: 394706
Részletek...
Adatlap
| Ár: | 195.000.000 Ft |
| Település: | X. kerület |
| A hirdető: | Ingatlaniroda ajánlatából |
| Értékesítés típusa: | Eladó |
| Használtság: | Új építésű |
| Utca: | Szőlőtelep utca |
| Telek nagysága (m2) : | 409 |
| Épület hasznos területe (m2) : | 178 |
| Szobák száma: | 5 |
| Anyaga: | Tégla |
| A hirdető kérése: | Ingatlanközvetítő vagyok - keresse fel Irodánkat! |
| Feladás dátuma: | 2026.04.20 |
| Eddig megtekintették 12 alkalommal | |
A hirdető adatai
Kapcsolat a hirdetővel...
Családi házak rovaton belül a(z) "Eladó családi ház Budapest, X. kerület, Szőlőtelep utca" című hirdetést látja. (fent)




























