
Eladó családi ház Bag, Petőfi tér
Eladásra kínálok Budapesttől 30 perc autóútra, az M3autópálya mentén fekvő Bag
település rendezett, központi részén, egy 1970-es években épült, 1990-es évek
végén felújított tégla szerkezetű, cserép fedésű
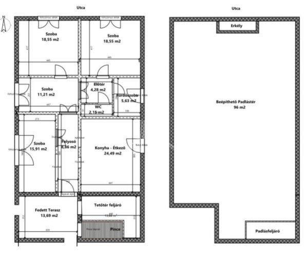
családiházat.Felosztása:-pince-földszint: 25 nm nagyságú konyha, amely kiválóan
alkalmas amerikai konyha kialakítására. 4 hálószoba, egy fürdőszoba, különálló
wc, és egy előtér. A fedett terasz 14 nm nagyságú.-tetőtér: beépítetlen, azonban
az erkély kialakítva, így a lehetőség adott, hogy további 96 nm nagyságú
lakóteret alakítson ki az új tulajdonos!Különálló garázs az udvarban!További
melléképület, amely nyári konyhaként funkócionál.Rendezett udvar.Rövid időn
belül költözhető!Hívjon bizalommal, tekintsük meg együtt! ...TOVÁBBI, TÖBBEZRES
INGATLAN KÍNÁLAT: www.gdn-ingatlan.hu - GDN azonosító: 394961
település rendezett, központi részén, egy 1970-es években épült, 1990-es évek
végén felújított tégla szerkezetű, cserép fedésű
családiházat.Felosztása:-pince-földszint: 25 nm nagyságú konyha, amely kiválóan
alkalmas amerikai konyha kialakítására. 4 hálószoba, egy fürdőszoba, különálló
wc, és egy előtér. A fedett terasz 14 nm nagyságú.-tetőtér: beépítetlen, azonban
az erkély kialakítva, így a lehetőség adott, hogy további 96 nm nagyságú
lakóteret alakítson ki az új tulajdonos!Különálló garázs az udvarban!További
melléképület, amely nyári konyhaként funkócionál.Rendezett udvar.Rövid időn
belül költözhető!Hívjon bizalommal, tekintsük meg együtt! ...TOVÁBBI, TÖBBEZRES
INGATLAN KÍNÁLAT: www.gdn-ingatlan.hu - GDN azonosító: 394961
Részletek...
Adatlap
| Ár: | 75.890.000 Ft |
| Település: | Bag |
| A hirdető: | Ingatlaniroda ajánlatából |
| Értékesítés típusa: | Eladó |
| Használtság: | Használt |
| Utca: | Petőfi tér |
| Telek nagysága (m2) : | 680 |
| Épület hasznos területe (m2) : | 132 |
| Szobák száma: | 4 |
| Fűtés: | Cirkó fűtéses |
| Ingatlan állapota: | Normál állapotú |
| Anyaga: | Tégla |
| A hirdető kérése: | Ingatlanközvetítő vagyok - keresse fel Irodánkat! |
| Feladás dátuma: | 2026.04.20 |
| Eddig megtekintették 13 alkalommal | |
A hirdető adatai
Kapcsolat a hirdetővel...
Családi házak rovaton belül a(z) "Eladó családi ház Bag, Petőfi tér" című hirdetést látja. (fent)




























