
Téglás legújabb Lakóparkjában, 2027. májusi átadással, földs
Téglás legújabb Lakóparkjában, 2027. májusi átadással, földszintes, 150 m2-es,
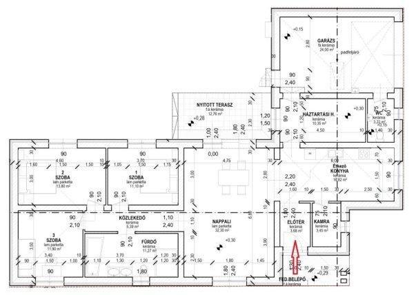
amerikai konyhás nappali+ 3 szobás, HŐSZIVATTYÚS új építésű ÖNÁLLÓ CSALÁDI HÁZ,
magas műszaki tartalommal, 670 m2-es telken eladó!Jellemzői:- Porotherm 30 N+F
tégla falazat- 15 cm Austrotherm AT-H80 hőszigetelés a homlokzati falakon- A
tetőtérben 45 cm vastagságú Austrotherm At-N100 EPS hőszigetelés- 12 cm
Austrotherm AT- N150, lépésálló aljzatszigetelés- Fűtése hőszivattyú-
Padlófűtés- Hő- és hangszigetelt, 3 rétegű, 7 légkamrás, REHAU műanyag
nyílászárók- Választható burkolatok: Kerámia burkolat 5000 Ft/m2-ig, laminált
parketta 5000 Ft/m2-ig a vételárban- Fürdőszoba kádas és zuhanyzós megoldással-
50 m2-es amerikai konyhás nappali- 13 m2-es terasz- Szobák méretei: 11,10 m2,
13,8 m2, 11,9 m2- 2 wc- 10,35 m2-es háztartási helyiség- 670 m2-es telek- 24
m2-es garázs- Térkövezés- Elektromos kapu- Kerítés szintén a vételárban-
Tömegközlekedés kiváló- Várható befejezés: 2027. májusStart Otthon, Babaváró,
CSOK Plusz, illetékmentesség igénybe vehető!Irányár: 99,9 M Ft
amerikai konyhás nappali+ 3 szobás, HŐSZIVATTYÚS új építésű ÖNÁLLÓ CSALÁDI HÁZ,
magas műszaki tartalommal, 670 m2-es telken eladó!Jellemzői:- Porotherm 30 N+F
tégla falazat- 15 cm Austrotherm AT-H80 hőszigetelés a homlokzati falakon- A
tetőtérben 45 cm vastagságú Austrotherm At-N100 EPS hőszigetelés- 12 cm
Austrotherm AT- N150, lépésálló aljzatszigetelés- Fűtése hőszivattyú-
Padlófűtés- Hő- és hangszigetelt, 3 rétegű, 7 légkamrás, REHAU műanyag
nyílászárók- Választható burkolatok: Kerámia burkolat 5000 Ft/m2-ig, laminált
parketta 5000 Ft/m2-ig a vételárban- Fürdőszoba kádas és zuhanyzós megoldással-
50 m2-es amerikai konyhás nappali- 13 m2-es terasz- Szobák méretei: 11,10 m2,
13,8 m2, 11,9 m2- 2 wc- 10,35 m2-es háztartási helyiség- 670 m2-es telek- 24
m2-es garázs- Térkövezés- Elektromos kapu- Kerítés szintén a vételárban-
Tömegközlekedés kiváló- Várható befejezés: 2027. májusStart Otthon, Babaváró,
CSOK Plusz, illetékmentesség igénybe vehető!Irányár: 99,9 M Ft
Részletek...
Adatlap
| Ár: | 99.900.000 Ft |
| Település: | Téglás |
| A hirdető: | Ingatlaniroda ajánlatából |
| Értékesítés típusa: | Eladó |
| Használtság: | Újszerű |
| Épület hasznos területe (m2) : | 150.00 |
| Szobák száma: | 4 |
| Feladás dátuma: | 2026.04.27 |
| Eddig megtekintették 12 alkalommal | |
A hirdető adatai
Kapcsolat a hirdetővel...
Családi házak rovaton belül a(z) "Téglás legújabb Lakóparkjában, 2027. májusi átadással, földs" című hirdetést látja. (fent)

























