
Eladó Ház, Hajdúsámson 92.000.000 Ft
Modern Mediterrán Elegancia Debrecen Kapujában! ? Új Építésű, Földszintes
Ikerház EladóSzeretne a város zajától karnyújtásnyira, mégis nyugodt, kertvárosi
környezetben élni? Eladó Debrecentől mindössze 7 km-re egy prémium műszaki
tartalommal rendelkező, mediterrán stílusú, 105 nm-es, földszintes ikerház,
saját 500 nm-es telekrésszel!Főbb jellemzők és műszaki tartalom:? Energetika:
"A" kategóriás besorolás ? alacsony fenntartási költségek!? Szerkezet: 30 cm-es
tégla falazat + 15 cm homlokzati szigetelés, beton tetőcserép.? Nyílászárók: 3
rétegű, színezett, hőszigetelt műanyag ablakok elektromos redőny
előkészítéssel.? Fűtés & Hűtés: Kondenzációs gázkazán padlófűtéssel és
radiátor előkészítéssel.A maximális komfortról 4 darab klíma gondoskodik
(nappali + 3 szoba).? Extra energia: 3 fázis és H-tarifás mérőóra
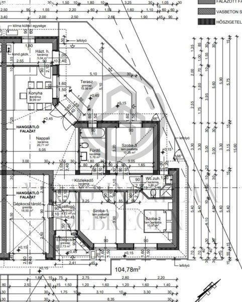
kiépítve! ? Elrendezés és Kényelem (104,78 m˛ lakótér):Az ingatlan tervezésekor
a tágas terek és a funkcionalitás volt a fő szempont:? Amerikai konyhás nappali
(30,7 m˛): A családi élet központja, közvetlen teraszkapcsolattal.? 3 különnyíló
hálószoba: Ideális családok számára.? Dupla komfort: Két fürdőszoba/WC a reggeli
készülődés megkönnyítésére.? Garázs (16,5 m˛): Automata külső és belső kapuval
felszerelve.? Tárolás: Külön háztartási helyiség segít a rendszerezésben. Kert
és Kültér:? 20 nm-es intim terasz: Tökéletes helyszín a nyári esti
beszélgetésekhez.? Telek: 500 nm-es, teljesen körbekerített saját
udvar.? Biztonság: Riasztó- és kamera-előkészítés az árban! Válassza ki saját
stílusát! A burkolatok a vevő igénye szerint választhatók, így az új otthona
pontosan olyan lesz, amilyennek megálmodta!Finanszírozás és Átadás- Várható
átadás: 2026. december 31. (Kulcsrakész állapot).- Támogatások: Az ingatlan
banki finanszírozással, CSOK Plusz és kedvezményes hitelek igénybevételével is
megvásárolható. Segítek a teljes körű ügyintézésben!Irányár: 92 M FT Alkuképes
áron.Ne maradjon le a lehetőségről! A műszaki tartalommal és a részletekkel
kapcsolatban hívjon bizalommal: További ajánlataim: Hivatalos értékbecslés és
energetikai tanúsítvány elkészítését is vállalom rövid határidővel!
Ikerház EladóSzeretne a város zajától karnyújtásnyira, mégis nyugodt, kertvárosi
környezetben élni? Eladó Debrecentől mindössze 7 km-re egy prémium műszaki
tartalommal rendelkező, mediterrán stílusú, 105 nm-es, földszintes ikerház,
saját 500 nm-es telekrésszel!Főbb jellemzők és műszaki tartalom:? Energetika:
"A" kategóriás besorolás ? alacsony fenntartási költségek!? Szerkezet: 30 cm-es
tégla falazat + 15 cm homlokzati szigetelés, beton tetőcserép.? Nyílászárók: 3
rétegű, színezett, hőszigetelt műanyag ablakok elektromos redőny
előkészítéssel.? Fűtés & Hűtés: Kondenzációs gázkazán padlófűtéssel és
radiátor előkészítéssel.A maximális komfortról 4 darab klíma gondoskodik
(nappali + 3 szoba).? Extra energia: 3 fázis és H-tarifás mérőóra
kiépítve! ? Elrendezés és Kényelem (104,78 m˛ lakótér):Az ingatlan tervezésekor
a tágas terek és a funkcionalitás volt a fő szempont:? Amerikai konyhás nappali
(30,7 m˛): A családi élet központja, közvetlen teraszkapcsolattal.? 3 különnyíló
hálószoba: Ideális családok számára.? Dupla komfort: Két fürdőszoba/WC a reggeli
készülődés megkönnyítésére.? Garázs (16,5 m˛): Automata külső és belső kapuval
felszerelve.? Tárolás: Külön háztartási helyiség segít a rendszerezésben. Kert
és Kültér:? 20 nm-es intim terasz: Tökéletes helyszín a nyári esti
beszélgetésekhez.? Telek: 500 nm-es, teljesen körbekerített saját
udvar.? Biztonság: Riasztó- és kamera-előkészítés az árban! Válassza ki saját
stílusát! A burkolatok a vevő igénye szerint választhatók, így az új otthona
pontosan olyan lesz, amilyennek megálmodta!Finanszírozás és Átadás- Várható
átadás: 2026. december 31. (Kulcsrakész állapot).- Támogatások: Az ingatlan
banki finanszírozással, CSOK Plusz és kedvezményes hitelek igénybevételével is
megvásárolható. Segítek a teljes körű ügyintézésben!Irányár: 92 M FT Alkuképes
áron.Ne maradjon le a lehetőségről! A műszaki tartalommal és a részletekkel
kapcsolatban hívjon bizalommal: További ajánlataim: Hivatalos értékbecslés és
energetikai tanúsítvány elkészítését is vállalom rövid határidővel!
Részletek...
Adatlap
| Ár: | 92.000.000 Ft |
| Település: | Hajdúsámson |
| A hirdető: | Ingatlaniroda ajánlatából |
| Értékesítés típusa: | Eladó |
| Használtság: | Új építésű |
| Telek nagysága (m2) : | 500 |
| Épület hasznos területe (m2) : | 105.00 |
| Szobák száma: | 4 |
| Fűtés: | Házközponti fűtéses (egyedi méréssel) |
| Feladás dátuma: | 2026.04.27 |
| Eddig megtekintették 10 alkalommal | |
A hirdető adatai
Kapcsolat a hirdetővel...
Családi házak rovaton belül a(z) "Eladó Ház, Hajdúsámson 92.000.000 Ft" című hirdetést látja. (fent)




























