
Épülő, energiahatékony ikerházak autóbeállóval Újszászon
A CasaNetWork Ingatlanhálózat kínálatában eladó épülő ikerházak Újszászon! Az
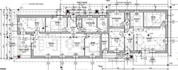
ingatlan hirdetési azonosítója: 174602305A hirdetett lakás: A. lakás: fűtött
lakótér: 98+11,13 nm teraszA ház modern technológiával, kiváló minőségű,
minősített anyagokból készül: - falazata könnyűszerkezetes, fa szerkezetű. 15
cm-es fal, 15 cm hőszigeteléssel. Belső válaszfalak 10 cm vastagságúak. Így
falazat kiváló hőszigetelő képességekkel rendelkezik, így télen-nyáron komfortos
hőmérsékletet biztosít. A nyílászárók hő- és hangszigetelő műanyag ablakok,
amelyek fokozzák az energiahatékonyságot, és kellemes belső klímát teremtenek.Az
ikerházakhoz saját kertrész és autóbeálló tartozik.A fűtésről hőszivattyús fűtés
gondoskodik padlófűtéssel. A nyári hőséget lakásonként 1 db inverteres
klímaberendezés teszi elviselhetővé.Ez az otthon minden műszaki és kényelmi
igényt kielégít, amit a modern családi élet megkövetel.Főbb jellemzők:Tágas
belső tér: 2 szoba, nappali-konyha, fürdőszoba+Wc, külön WC, háztartási
helyiség, előtér és terasz.Minőségi burkolatok: Laminált parketta
melegburkolatként, választható mintázattal. Hidegburkolat: padlólap, legfeljebb
6.000 Ft/m˛ értékben.Modern nyílászárók: Műanyag ablakok hő- és hangszigetelő, 3
rétegű üvegezéssel, erkélyajtók ? a lakás szellőztetése a tulajdonos
feladata.Felszerelt fürdő és konyha: Kád vagy tusoló, kézmosó a fürdőben,
wcKorszerű fűtési rendszer: hőszivattyús fűtés, padlófűtés és radiátoros fűtés
kombinációja.Klíma: Inverteres klímaberendezés a kellemes nyári
hőmérsékletért.Biztonságos bejárat: többpontos zárral ellátott biztonsági
ajtó.Energetikai besorolása: A++Műszaki adatok:Válaszfalak: 10 cm-es
falazat Tető: Azzurro betoncserépKözművek: Gáz, víz, villany, csatornaVárható
átadás: 2026 év végeAz ingatlan műszaki tervei alapján hirdetjük meg. Kérjük,
vegye figyelembe, hogy a használatbavételi engedély kiadását követően kisebb
m˛-eltérések előfordulhatnak.Amennyiben a CasaNetWork Cegléd által
kínált, 174602305 azonosítószámú ikerház, vagy bármely más ingatlan felkeltette
érdeklődését, keressen bizalommal a megadott telefonszámon!Felhívjuk figyelmét,
hogy a hirdetésben szereplő adatok a megbízótól származnak, azok pontosságáért
felelősséget nem vállalunk.Ügyfeleink részére díjmentes, bankfüggetlen
hitelügyintézést biztosítunk! A 3%-os lakáshitelek elérhetőek! CasaNetWork ?
Ingatlanban otthon vagyunk.
ingatlan hirdetési azonosítója: 174602305A hirdetett lakás: A. lakás: fűtött
lakótér: 98+11,13 nm teraszA ház modern technológiával, kiváló minőségű,
minősített anyagokból készül: - falazata könnyűszerkezetes, fa szerkezetű. 15
cm-es fal, 15 cm hőszigeteléssel. Belső válaszfalak 10 cm vastagságúak. Így
falazat kiváló hőszigetelő képességekkel rendelkezik, így télen-nyáron komfortos
hőmérsékletet biztosít. A nyílászárók hő- és hangszigetelő műanyag ablakok,
amelyek fokozzák az energiahatékonyságot, és kellemes belső klímát teremtenek.Az
ikerházakhoz saját kertrész és autóbeálló tartozik.A fűtésről hőszivattyús fűtés
gondoskodik padlófűtéssel. A nyári hőséget lakásonként 1 db inverteres
klímaberendezés teszi elviselhetővé.Ez az otthon minden műszaki és kényelmi
igényt kielégít, amit a modern családi élet megkövetel.Főbb jellemzők:Tágas
belső tér: 2 szoba, nappali-konyha, fürdőszoba+Wc, külön WC, háztartási
helyiség, előtér és terasz.Minőségi burkolatok: Laminált parketta
melegburkolatként, választható mintázattal. Hidegburkolat: padlólap, legfeljebb
6.000 Ft/m˛ értékben.Modern nyílászárók: Műanyag ablakok hő- és hangszigetelő, 3
rétegű üvegezéssel, erkélyajtók ? a lakás szellőztetése a tulajdonos
feladata.Felszerelt fürdő és konyha: Kád vagy tusoló, kézmosó a fürdőben,
wcKorszerű fűtési rendszer: hőszivattyús fűtés, padlófűtés és radiátoros fűtés
kombinációja.Klíma: Inverteres klímaberendezés a kellemes nyári
hőmérsékletért.Biztonságos bejárat: többpontos zárral ellátott biztonsági
ajtó.Energetikai besorolása: A++Műszaki adatok:Válaszfalak: 10 cm-es
falazat Tető: Azzurro betoncserépKözművek: Gáz, víz, villany, csatornaVárható
átadás: 2026 év végeAz ingatlan műszaki tervei alapján hirdetjük meg. Kérjük,
vegye figyelembe, hogy a használatbavételi engedély kiadását követően kisebb
m˛-eltérések előfordulhatnak.Amennyiben a CasaNetWork Cegléd által
kínált, 174602305 azonosítószámú ikerház, vagy bármely más ingatlan felkeltette
érdeklődését, keressen bizalommal a megadott telefonszámon!Felhívjuk figyelmét,
hogy a hirdetésben szereplő adatok a megbízótól származnak, azok pontosságáért
felelősséget nem vállalunk.Ügyfeleink részére díjmentes, bankfüggetlen
hitelügyintézést biztosítunk! A 3%-os lakáshitelek elérhetőek! CasaNetWork ?
Ingatlanban otthon vagyunk.
Részletek...
Adatlap
| Ár: | 69.990.000 Ft |
| Település: | Újszász |
| A hirdető: | Ingatlaniroda ajánlatából |
| Értékesítés típusa: | Eladó |
| Használtság: | Új építésű |
| Telek nagysága (m2) : | 300 |
| Épület hasznos területe (m2) : | 100.00 |
| Szobák száma: | 4 |
| Feladás dátuma: | 2026.04.27 |
| Eddig megtekintették 9 alkalommal | |
A hirdető adatai
Kapcsolat a hirdetővel...
Családi házak rovaton belül a(z) "Épülő, energiahatékony ikerházak autóbeállóval Újszászon" című hirdetést látja. (fent)




























