
Eladó családi ház Kóka, Major utca
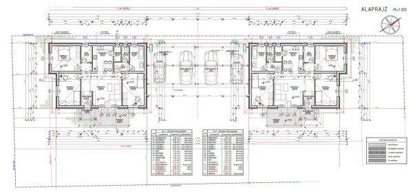
Kókán a Major utca 13. szám alatt, nettó 95,14 m2-es három szoba + amerikai
konyhás nappalival rendelkező, energiahatékony ikerházfelek eladók, számos
referenciával rendelkező kivitelezőtől!A hirdetési képek között egy korábbi, már
értékesített referencia ingatlan is szerepel.Az utcafronti ingatlan 455 m2-es, a
hátsó ingatlan 760 m2-es telkerésszel fog rendelkezni.Az ingatlanok csak a
fedett kocsibeállókkal érintkeznek.A tartószerkezeti falak Porotherm P30N+F
téglából, betonkoszorúval, fa födémes tetőszerkezettel készülnek. A lábazat 10
cm polisztirol lépésálló, a homlokzatok 15cm-es EPS, a vízszintes födém 25 cm
ásványgyapot szigeteléssel lesz ellátva.Három rétegű üvegekkel szerelt, hat
légkamrás műanyag thermo nyílászárók kerülnek beépítésre.A minimális
energiaigényt a megfelelő szigetelésen kívül a megújuló energiát használó
gépészet is biztosítja. A fűtést levegő-víz hőszivattyús rendszer fogja
végezni.Burkolatok , szaniterek, belső ajtók, csaptelepek választhatóak a
következő értékhatárig:-Hidegburkolat: 3000 Ft.-/m2-Melegburkolat: 3000
Ft.-/m2-Beltéri ajtók: 30.000.Ft.-/db-Fürdőkád: 40.000.- Ft.--Csaptelepek:
15000.- Ft.-/dbMagasabb árú választás is lehetséges, a különbség
finanszírozásával.A kivitelező korábban Sülysápon épített, már birtokbaadott
ingatlanjait komoly érdeklődés esetén szívesen megmutatjuk referenciaként.Csok
plusz, Otthon Start igényelhető!Tervezett átadás 2026 második negyedéveÉrdeklődő
ügyfeleinknek a tervdokumetációt és a műszaki tartalmat készséggel rendelkezésre
bocsájtjuk.INGYENES hitel tanácsadás, CSOK Plusz ügyintézés!BANKFÜGGETLEN
hitelcentrumunk az összes elérhető bank és hitelintézet ajánlatát versenyezteti
az Ön kedvéért, ráadásul DÍJMENTESEN.- Egyedi, bankfiókban nem elérhető kamat-
és díjkedvezmények- Hitelképesség vizsgálat- Idő, energia és pénz megtakarítás-
Teljes hivatali ügyintézésAmennyiben hirdetésem felkeltette az érdeklődését vagy
egyéb információra van szüksége hívjon bizalommal! ...TOVÁBBI, TÖBBEZRES
INGATLAN KÍNÁLAT: www.gdn-ingatlan.hu - GDN azonosító: 386783
konyhás nappalival rendelkező, energiahatékony ikerházfelek eladók, számos
referenciával rendelkező kivitelezőtől!A hirdetési képek között egy korábbi, már
értékesített referencia ingatlan is szerepel.Az utcafronti ingatlan 455 m2-es, a
hátsó ingatlan 760 m2-es telkerésszel fog rendelkezni.Az ingatlanok csak a
fedett kocsibeállókkal érintkeznek.A tartószerkezeti falak Porotherm P30N+F
téglából, betonkoszorúval, fa födémes tetőszerkezettel készülnek. A lábazat 10
cm polisztirol lépésálló, a homlokzatok 15cm-es EPS, a vízszintes födém 25 cm
ásványgyapot szigeteléssel lesz ellátva.Három rétegű üvegekkel szerelt, hat
légkamrás műanyag thermo nyílászárók kerülnek beépítésre.A minimális
energiaigényt a megfelelő szigetelésen kívül a megújuló energiát használó
gépészet is biztosítja. A fűtést levegő-víz hőszivattyús rendszer fogja
végezni.Burkolatok , szaniterek, belső ajtók, csaptelepek választhatóak a
következő értékhatárig:-Hidegburkolat: 3000 Ft.-/m2-Melegburkolat: 3000
Ft.-/m2-Beltéri ajtók: 30.000.Ft.-/db-Fürdőkád: 40.000.- Ft.--Csaptelepek:
15000.- Ft.-/dbMagasabb árú választás is lehetséges, a különbség
finanszírozásával.A kivitelező korábban Sülysápon épített, már birtokbaadott
ingatlanjait komoly érdeklődés esetén szívesen megmutatjuk referenciaként.Csok
plusz, Otthon Start igényelhető!Tervezett átadás 2026 második negyedéveÉrdeklődő
ügyfeleinknek a tervdokumetációt és a műszaki tartalmat készséggel rendelkezésre
bocsájtjuk.INGYENES hitel tanácsadás, CSOK Plusz ügyintézés!BANKFÜGGETLEN
hitelcentrumunk az összes elérhető bank és hitelintézet ajánlatát versenyezteti
az Ön kedvéért, ráadásul DÍJMENTESEN.- Egyedi, bankfiókban nem elérhető kamat-
és díjkedvezmények- Hitelképesség vizsgálat- Idő, energia és pénz megtakarítás-
Teljes hivatali ügyintézésAmennyiben hirdetésem felkeltette az érdeklődését vagy
egyéb információra van szüksége hívjon bizalommal! ...TOVÁBBI, TÖBBEZRES
INGATLAN KÍNÁLAT: www.gdn-ingatlan.hu - GDN azonosító: 386783
Részletek...
Adatlap
| Ár: | 59.900.000 Ft |
| Település: | Kóka |
| A hirdető: | Ingatlaniroda ajánlatából |
| Értékesítés típusa: | Eladó |
| Használtság: | Új építésű |
| Utca: | Major utca |
| Telek nagysága (m2) : | 760 |
| Épület hasznos területe (m2) : | 95 |
| Szobák száma: | 4 |
| Anyaga: | Tégla |
| A hirdető kérése: | Ingatlanközvetítő vagyok - keresse fel Irodánkat! |
| Feladás dátuma: | 2025.10.29 |
| Eddig megtekintették 10 alkalommal | |
A hirdető adatai
Kapcsolat a hirdetővel...
Családi házak rovaton belül a(z) "Eladó családi ház Kóka, Major utca" című hirdetést látja. (fent)




























