
Eladó családi ház Budapest, XVIII. kerület, Kerékvágás út
Budapest XVIII. kerület, Almáskert ? Új építésű, földszintes családi ház
eladó!Csendes mellékutcában, széles telekre tervezett családi házak közül most a
hátsó, önálló ház eladó!A telek kialakítása különleges: bal oldalán egy saját,
leválasztott úton (4.5x70m) közelíthető meg, amelyről elöl egy ikerház két
lakása nyílik, az út végén pedig a teljesen különálló, önálló családi ház
található, nagyobb kerttel és még több intimitással.(Még választhat: az első
vagy a középső ikerfél, illetve a különálló ház is rendelkezésre áll!)Az
ingatlan 167m˛ hasznos alapterületű, modern, földszintes kialakítással: amerikai
konyhás nappali, 4 hálószoba, 2 fürdőszoba, háztartási helyiség, terasz és
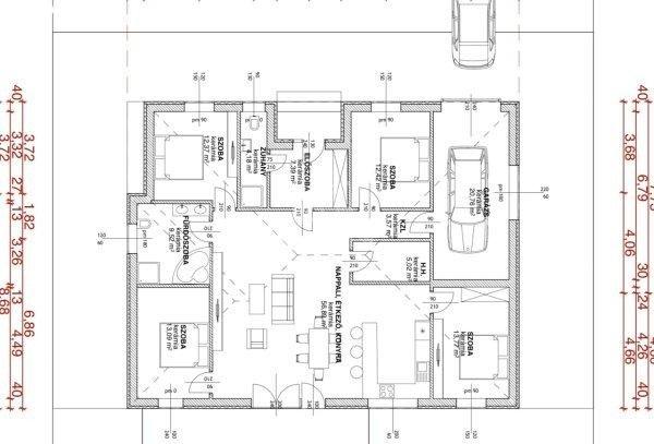
saját, 660 m˛-es kert tartozik hozzá.Helyiségek: ? Szoba: 12,37 m˛ ? Szoba:
13,09 m˛ ? Szoba: 12,42 m˛ ? Szoba: 13,77 m˛ ? Konyha?étkező?nappali: 57
m˛ ? Kádas fürdő: 9,52 m˛ ? Zuhanyzós fürdő: 4,2 m˛ ? Háztartási helyiség: 5
m˛ ? Előszoba: 7,39 m˛ ? Garázs: 20,76 m˛Műszaki tartalom (részlet): ? 30-as
Leier falazat, 10 cm grafitos szigeteléssel, lábazat 15 cm XPS
szigeteléssel ? Válaszfalak: 10 cm-es Leier tégla ? Födém: 20 cm kőzetgyapot
szigeteléssel ? Hőszivattyú + padlófűtés az egész házban ? 3 rétegű külső
nyílászárók ? Elektromos kapu, napelem-előkészítés, komplett kamerarendszer
riasztóvalExtrák: ? Választható: nappaliba 3,5 kW klíma, vagy kiállás minden
szobába ? Melegburkolat: 5.000 Ft/m˛ (filc alátéttel,
szegéllyel) ? Hidegburkolat: 5.000 Ft/m˛ (fugával, váltókkal) ? Beltéri ajtók,
szaniterek választhatók készültségi foktól függően ? Plusz extrák és egyedi
igények egyeztetés alapján kérhetőkA kivitelezőről:Megbízható, tapasztalt cég,
számos referenciamunkával a környéken, amelyek személyesen is megtekinthetők. A
minőségi kivitelezés és a korrekt együttműködés garantált.Jogilag: osztatlan
közös, ügyvédi megosztással.Támogatások: az ingatlan az összes jelenleg futó
támogatásra jogosult.Finanszírozás: 30% önerővel lefoglalható.Átadás: várhatóan
2026. III. negyedév.Ügyvédi háttér és független hitelszakértő biztosított!Hívjon
bizalommal a hét bármelyik napján további információért! ...TOVÁBBI, TÖBBEZRES
INGATLAN KÍNÁLAT: www.gdn-ingatlan.hu - GDN azonosító: 387746
eladó!Csendes mellékutcában, széles telekre tervezett családi házak közül most a
hátsó, önálló ház eladó!A telek kialakítása különleges: bal oldalán egy saját,
leválasztott úton (4.5x70m) közelíthető meg, amelyről elöl egy ikerház két
lakása nyílik, az út végén pedig a teljesen különálló, önálló családi ház
található, nagyobb kerttel és még több intimitással.(Még választhat: az első
vagy a középső ikerfél, illetve a különálló ház is rendelkezésre áll!)Az
ingatlan 167m˛ hasznos alapterületű, modern, földszintes kialakítással: amerikai
konyhás nappali, 4 hálószoba, 2 fürdőszoba, háztartási helyiség, terasz és
saját, 660 m˛-es kert tartozik hozzá.Helyiségek: ? Szoba: 12,37 m˛ ? Szoba:
13,09 m˛ ? Szoba: 12,42 m˛ ? Szoba: 13,77 m˛ ? Konyha?étkező?nappali: 57
m˛ ? Kádas fürdő: 9,52 m˛ ? Zuhanyzós fürdő: 4,2 m˛ ? Háztartási helyiség: 5
m˛ ? Előszoba: 7,39 m˛ ? Garázs: 20,76 m˛Műszaki tartalom (részlet): ? 30-as
Leier falazat, 10 cm grafitos szigeteléssel, lábazat 15 cm XPS
szigeteléssel ? Válaszfalak: 10 cm-es Leier tégla ? Födém: 20 cm kőzetgyapot
szigeteléssel ? Hőszivattyú + padlófűtés az egész házban ? 3 rétegű külső
nyílászárók ? Elektromos kapu, napelem-előkészítés, komplett kamerarendszer
riasztóvalExtrák: ? Választható: nappaliba 3,5 kW klíma, vagy kiállás minden
szobába ? Melegburkolat: 5.000 Ft/m˛ (filc alátéttel,
szegéllyel) ? Hidegburkolat: 5.000 Ft/m˛ (fugával, váltókkal) ? Beltéri ajtók,
szaniterek választhatók készültségi foktól függően ? Plusz extrák és egyedi
igények egyeztetés alapján kérhetőkA kivitelezőről:Megbízható, tapasztalt cég,
számos referenciamunkával a környéken, amelyek személyesen is megtekinthetők. A
minőségi kivitelezés és a korrekt együttműködés garantált.Jogilag: osztatlan
közös, ügyvédi megosztással.Támogatások: az ingatlan az összes jelenleg futó
támogatásra jogosult.Finanszírozás: 30% önerővel lefoglalható.Átadás: várhatóan
2026. III. negyedév.Ügyvédi háttér és független hitelszakértő biztosított!Hívjon
bizalommal a hét bármelyik napján további információért! ...TOVÁBBI, TÖBBEZRES
INGATLAN KÍNÁLAT: www.gdn-ingatlan.hu - GDN azonosító: 387746
Részletek...
Adatlap
| Ár: | 159.900.000 Ft |
| Település: | XVIII. kerület |
| A hirdető: | Ingatlaniroda ajánlatából |
| Értékesítés típusa: | Eladó |
| Használtság: | Új építésű |
| Utca: | Kerékvágás út |
| Telek nagysága (m2) : | 660 |
| Épület hasznos területe (m2) : | 167 |
| Szobák száma: | 5 |
| Anyaga: | Tégla |
| A hirdető kérése: | Ingatlanközvetítő vagyok - keresse fel Irodánkat! |
| Feladás dátuma: | 2026.04.27 |
| Eddig megtekintették 66 alkalommal | |
A hirdető adatai
Kapcsolat a hirdetővel...
Családi házak rovaton belül a(z) "Eladó családi ház Budapest, XVIII. kerület, Kerékvágás út" című hirdetést látja. (fent)




























