
Eladó Új építésű Családi házak Balatonfenyvesen!
Balatonfenyves közkedvelt részén a Balatontól 1300 méterre egy új,
könnyűszerkezetes lakóházakból álló projekt várja a leendő tulajdonosokat!Az 3
lakóegységes lakóparkban három különálló ház kerül felépítésre.A lakóházak
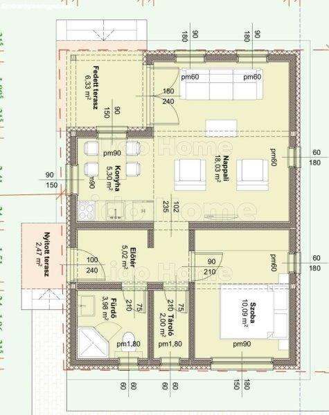
helyiségkiosztása: nappali, konyha, hálószoba, fürdőszoba, előtér, kettő terasz,
tároló.Az ingatlanok főbb műszaki jellemzői:-hőszigetelt 3 rétegű redőnnyel
felszerelt műanyag nyílászárók,-10 cm homlokzat szigetelés,-Klímás
hűtés-fűtés,-Beton (Bramac vagy Terrán) vagy Kerámia cserépfedés,Minden
egységhez saját kert tartozik, amely a nyári hónapokban ideális helyet biztosít
kinti tevékenységekre, sütögetésre.Minden családi házhoz egy-egy parkoló
tartozik melynek ára az irányárban benne van.A lakóházak egymástól 3D-s
kerítéssel kerülnek elszeparálásra.A hirdetett ingatlan tulajdoni lap szerint 61
m2 önálló Családi ház melyhez 170 m2 saját kert tartozik.Az ingatlan kulcsra
kész átadása legkésőbb 2026. végére várható.Fizetési ütemezésről, részletesebb
műszaki tartalomról, az ingatlannal kapcsolatos egyéb kérdésekről személyesen,
telefonon vagy dokumentációs anyag küldésével tudom tájékoztatni.A kivitelezés
velem rugalmasan megtekinthető.Amennyiben a LIDO HOME BALATONBOGLÁR által kínált
családi ház, vagy bármely a kínálatunkban található ingatlan felkeltette
érdeklődését hívjon bizalommal.LIDO HOME - Ingatlanok egy életen át!
könnyűszerkezetes lakóházakból álló projekt várja a leendő tulajdonosokat!Az 3
lakóegységes lakóparkban három különálló ház kerül felépítésre.A lakóházak
helyiségkiosztása: nappali, konyha, hálószoba, fürdőszoba, előtér, kettő terasz,
tároló.Az ingatlanok főbb műszaki jellemzői:-hőszigetelt 3 rétegű redőnnyel
felszerelt műanyag nyílászárók,-10 cm homlokzat szigetelés,-Klímás
hűtés-fűtés,-Beton (Bramac vagy Terrán) vagy Kerámia cserépfedés,Minden
egységhez saját kert tartozik, amely a nyári hónapokban ideális helyet biztosít
kinti tevékenységekre, sütögetésre.Minden családi házhoz egy-egy parkoló
tartozik melynek ára az irányárban benne van.A lakóházak egymástól 3D-s
kerítéssel kerülnek elszeparálásra.A hirdetett ingatlan tulajdoni lap szerint 61
m2 önálló Családi ház melyhez 170 m2 saját kert tartozik.Az ingatlan kulcsra
kész átadása legkésőbb 2026. végére várható.Fizetési ütemezésről, részletesebb
műszaki tartalomról, az ingatlannal kapcsolatos egyéb kérdésekről személyesen,
telefonon vagy dokumentációs anyag küldésével tudom tájékoztatni.A kivitelezés
velem rugalmasan megtekinthető.Amennyiben a LIDO HOME BALATONBOGLÁR által kínált
családi ház, vagy bármely a kínálatunkban található ingatlan felkeltette
érdeklődését hívjon bizalommal.LIDO HOME - Ingatlanok egy életen át!
Részletek...
Adatlap
| Ár: | 54.990.000 Ft |
| Település: | Balatonfenyves |
| A hirdető: | Ingatlaniroda ajánlatából |
| Értékesítés típusa: | Eladó |
| Használtság: | Új építésű |
| Telek nagysága (m2) : | 148 |
| Épület hasznos területe (m2) : | 61.00 |
| Szobák száma: | 2 |
| Feladás dátuma: | 2026.04.27 |
| Eddig megtekintették 68 alkalommal | |
A hirdető adatai
Kapcsolat a hirdetővel...
Családi házak rovaton belül a(z) "Eladó Új építésű Családi házak Balatonfenyvesen!" című hirdetést látja. (fent)




























