
Eladó új építésű napelemes lakóházak Balatonfenyvesen!
Új építésű ikerházak Balatonfenyvesen!Eladó Balatonfenyves kedvelt részén
,nyugodt környezetben, modern kialakítású. napelemekkel felszerelt, új építésű
ikerházfél saját 117 m2 telekkel.Az ingatlanhoz saját kert tartozik, amely a
nyári hónapokban ideális helyet biztosít kinti tevékenységekre, sütögetésre.A
lakáshoz egy parkoló kerül kialakításra, melynek ára a hirdetett árban benne
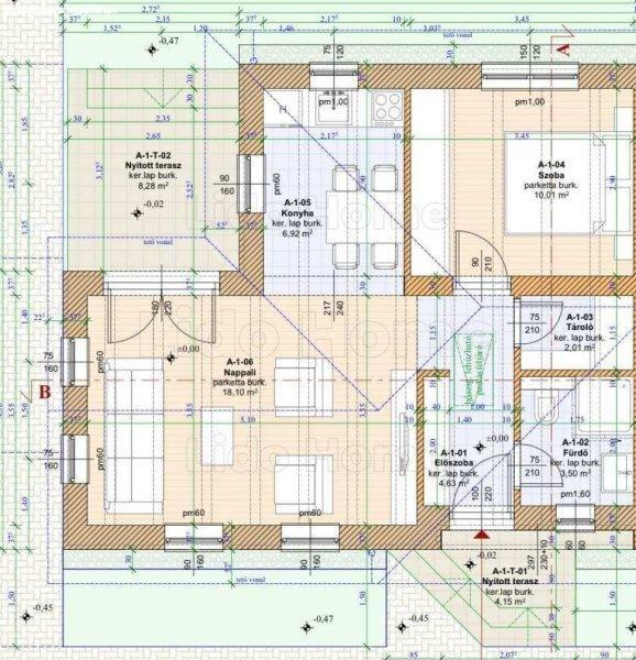
van.A lakást praktikus belső elrendezés jelemzi: -tágas ,világos nappali, szoba,
fürdőszoba, konyha, tároló, előszoba, nyugati tájolású terasz
helyiségkiosztású.Műszaki jellemzők:-Ytong téglából épül.-Fedése betoncserép.-3
rétegű műanyag nyílászárók redőnnyel, szúnyoghálóval ellátva.-Megújuló energia!
- A korszerű napelemrendszernek köszönhetően a ház fenntartási költségei
rendkívül alacsonyak.A hírdetett lakás tulajdoni lapon 61 m2 melyhez 117 m2
saját elszeparált telek tartozik.Fizetési ütemezésről, részletesebb műszaki
tartalomról, az ingatlannal kapcsolatos egyéb kérdésekről személyesen, telefonon
vagy dokumentációs anyag küldésével tudom tájékoztatni.A kivitelezés velem
rugalmasan megtekinthető.Amennyiben a LIDO HOME BALATONBOGLÁR által kínált
ikerház, vagy bármely a kínálatunkban található ingatlan felkeltette
érdeklődését hívjon bizalommal.LIDO HOME - Ingatlanok egy életen át!
,nyugodt környezetben, modern kialakítású. napelemekkel felszerelt, új építésű
ikerházfél saját 117 m2 telekkel.Az ingatlanhoz saját kert tartozik, amely a
nyári hónapokban ideális helyet biztosít kinti tevékenységekre, sütögetésre.A
lakáshoz egy parkoló kerül kialakításra, melynek ára a hirdetett árban benne
van.A lakást praktikus belső elrendezés jelemzi: -tágas ,világos nappali, szoba,
fürdőszoba, konyha, tároló, előszoba, nyugati tájolású terasz
helyiségkiosztású.Műszaki jellemzők:-Ytong téglából épül.-Fedése betoncserép.-3
rétegű műanyag nyílászárók redőnnyel, szúnyoghálóval ellátva.-Megújuló energia!
- A korszerű napelemrendszernek köszönhetően a ház fenntartási költségei
rendkívül alacsonyak.A hírdetett lakás tulajdoni lapon 61 m2 melyhez 117 m2
saját elszeparált telek tartozik.Fizetési ütemezésről, részletesebb műszaki
tartalomról, az ingatlannal kapcsolatos egyéb kérdésekről személyesen, telefonon
vagy dokumentációs anyag küldésével tudom tájékoztatni.A kivitelezés velem
rugalmasan megtekinthető.Amennyiben a LIDO HOME BALATONBOGLÁR által kínált
ikerház, vagy bármely a kínálatunkban található ingatlan felkeltette
érdeklődését hívjon bizalommal.LIDO HOME - Ingatlanok egy életen át!
Részletek...
Adatlap
| Ár: | 63.000.000 Ft |
| Település: | Balatonfenyves |
| A hirdető: | Ingatlaniroda ajánlatából |
| Értékesítés típusa: | Eladó |
| Használtság: | Új építésű |
| Telek nagysága (m2) : | 117 |
| Épület hasznos területe (m2) : | 61.00 |
| Szobák száma: | 2 |
| Feladás dátuma: | 2026.05.04 |
| Eddig megtekintették 66 alkalommal | |
A hirdető adatai
Kapcsolat a hirdetővel...
Családi házak rovaton belül a(z) "Eladó új építésű napelemes lakóházak Balatonfenyvesen!" című hirdetést látja. (fent)




























