
Eladó családi ház Nyíregyháza, Gólyahír lakópark 1
Eladó Nyíregyháza Nyírszőlős részén a Gólyahír lakóparkban 2025-ben épülő új
amerikai stílusú A++ besorolású 4 szobás kertes családi ház. (T/1)Ára:
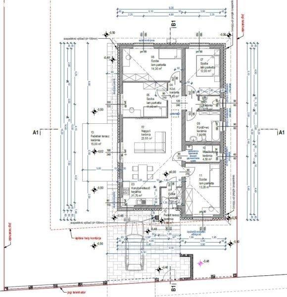
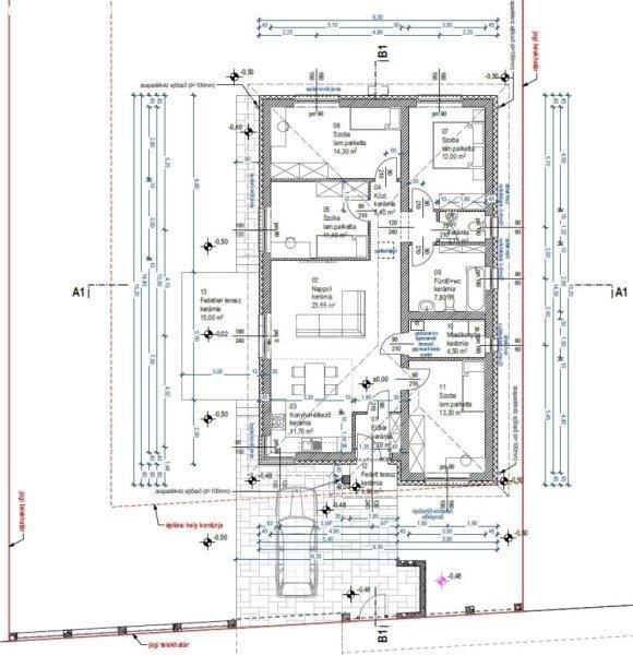
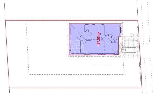
89.000.000 Ft.Az ingatlan alap méretei:- a telek mérete: 781nm,- a ház
alapterülete: 137nm.Az épület hasznos alapterülete 108,7nm melyben található:- 4
szoba,- amerikai konyhás nappali,- fürdőszoba + WC,- mosókonyha,- WC,-
közlekedő,- előtér,- fedett terasz.Az új építésű családi ház várhatóan 8 hónapon
belül kerül átadásra, mely korszerű hő takarékos építészeti megoldásokat
alkalmazva készül el. A falazata 30-as téglából épül, mely 15 cm-es EPS
homlokzati hőszigetelést kap. A födém szerkezete 15 cm-es ásványszálas
hőszigetelésű lesz, így az egész épület energetikai szempontból A++ kategóriájú.
Az amerikai stílusú kombinált sátortető cseréppel lesz fedve. Az épületben áram,
víz, gáz és csatorna szintén bekötésre kerül. Az épület padlófűtéssel,
radiátoros fűtéssel vagy kérés esetén a kettő kombinációjával készül el, mely
gáz cirkó kazánról fog működni. Ezen kívül még 2 db hűtő-fűtő klíma is
rendelkezésre fog állni. A melegvíz ellátásról szintén a gáz cirkó kazán
gondoskodik.Az ingatlan ideális választás lehet mindazok számára, akik új
építésű, modern energiatakarékos otthont keresnek nyugodt kertvárosi
környezetben.Fontos!Az ingatlan per és tehermentes, 3 gyerekes CSOK Plusz is
igénybe vehető!Figyelem!Minőségi kivitelezés és választható belső burkolatok,
szaniterek.2025-ös energetikai szabványoknak megfelelő modern megoldások.A belső
elrendezés igény szerint módosítható.Ha felkeltette érdeklődését, hívja
irodánkat bizalommal!Ha hitelre van szüksége éljen ingyenes, személyre szabott
hitel ügyintézési szolgáltatásunkkal is. ...TOVÁBBI, TÖBBEZRES INGATLAN KÍNÁLAT:
www.gdn-ingatlan.hu - GDN azonosító: 388007
amerikai stílusú A++ besorolású 4 szobás kertes családi ház. (T/1)Ára:
89.000.000 Ft.Az ingatlan alap méretei:- a telek mérete: 781nm,- a ház
alapterülete: 137nm.Az épület hasznos alapterülete 108,7nm melyben található:- 4
szoba,- amerikai konyhás nappali,- fürdőszoba + WC,- mosókonyha,- WC,-
közlekedő,- előtér,- fedett terasz.Az új építésű családi ház várhatóan 8 hónapon
belül kerül átadásra, mely korszerű hő takarékos építészeti megoldásokat
alkalmazva készül el. A falazata 30-as téglából épül, mely 15 cm-es EPS
homlokzati hőszigetelést kap. A födém szerkezete 15 cm-es ásványszálas
hőszigetelésű lesz, így az egész épület energetikai szempontból A++ kategóriájú.
Az amerikai stílusú kombinált sátortető cseréppel lesz fedve. Az épületben áram,
víz, gáz és csatorna szintén bekötésre kerül. Az épület padlófűtéssel,
radiátoros fűtéssel vagy kérés esetén a kettő kombinációjával készül el, mely
gáz cirkó kazánról fog működni. Ezen kívül még 2 db hűtő-fűtő klíma is
rendelkezésre fog állni. A melegvíz ellátásról szintén a gáz cirkó kazán
gondoskodik.Az ingatlan ideális választás lehet mindazok számára, akik új
építésű, modern energiatakarékos otthont keresnek nyugodt kertvárosi
környezetben.Fontos!Az ingatlan per és tehermentes, 3 gyerekes CSOK Plusz is
igénybe vehető!Figyelem!Minőségi kivitelezés és választható belső burkolatok,
szaniterek.2025-ös energetikai szabványoknak megfelelő modern megoldások.A belső
elrendezés igény szerint módosítható.Ha felkeltette érdeklődését, hívja
irodánkat bizalommal!Ha hitelre van szüksége éljen ingyenes, személyre szabott
hitel ügyintézési szolgáltatásunkkal is. ...TOVÁBBI, TÖBBEZRES INGATLAN KÍNÁLAT:
www.gdn-ingatlan.hu - GDN azonosító: 388007
Részletek...
Adatlap
| Ár: | 89.000.000 Ft |
| Település: | Nyíregyháza |
| A hirdető: | Ingatlaniroda ajánlatából |
| Értékesítés típusa: | Eladó |
| Használtság: | Új építésű |
| Utca: | Gólyahír lakópark 1 |
| Telek nagysága (m2) : | 781 |
| Épület hasznos területe (m2) : | 137 |
| Szobák száma: | 4 |
| Fűtés: | Cirkó fűtéses |
| Anyaga: | Tégla |
| A hirdető kérése: | Ingatlanközvetítő vagyok - keresse fel Irodánkat! |
| Feladás dátuma: | 2026.05.04 |
| Eddig megtekintették 65 alkalommal | |
A hirdető adatai
Kapcsolat a hirdetővel...
Családi házak rovaton belül a(z) "Eladó családi ház Nyíregyháza, Gólyahír lakópark 1" című hirdetést látja. (fent)




























