
Eladó családi ház Székesfehérvár, Öreghegyen új építés
Új építés, Otthon Start Program fix 3% hitel igényelhető!H-004627. Öreghegy,
frekventált, kedvelt részén, összközműves építési telken, családiházas
környezetben, eladó egy 2025-ben épülő egyszintes, igényes, egyedi kivitelezésű
124 m2 hasznos (br.140m2 ), alapterületű, nappali + 3 szobás , 823m2 privát
telekterülettel rendelkező családi ház, garázzsal, terasszal.Energiahatékony
ingatlan, saját 823m2 telekterület, garázzsal.A ház kiváló elhelyezkedésének
köszönhetően a belváros, illetve az M7 autópálya pár perc távolságra található,
mindemellett az elkerülőút közelsége miatt a város többi része is könnyen
megközelíthető. Az ingatlan környezetében bevásárlási lehetőség, egyéb üzletek
és számos szolgáltatás megtalálható.A ház acélvázas könnyűszerkezet, szigetelt,
tágas, világos, körbe napozott, minőségi anyagokból készült. A burkolatokat
tekintve a szobákban magas minőségű laminált padló, a nappaliban a közlekedőben,
valamint a konyhában és a vizes helyiségekben jó minőségű járólap található. A
nyílászárók 3 rétegű műanyagból készülnek, hőszigetelt üvegezéssel, rajtuk
redőny előkészítéssel. A házban klíma kiépítésre kerül.. A terasz, kényelmes
pihenést biztosít. Az utcai kapu elektromosan lesz nyitható. A telek adottságai
miatt ( úgynevezett ? nyeles? telek) a ház, és a kert terület teljesen intim
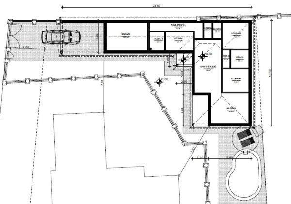
nyugalmat biztosít.Elosztását tekintve:Földszint: előtér, nappali-konyha-étkező
(45m2), kamra, 2 fürdőszoba, 3 hálószoba, háztartási helyiség, tágas
garázs,Fontosabb paraméterek:? 2025-ben épül, acélvázas könnyűszerkezet+ 15 cm
szigetelés, nemesvakolat? 823m2 saját telekterület? Nappali + 3 hálószoba +
háztartási helyiség +2 fürdő + kamra +garázs+ terasz.? Padlófűtés ,
hőszivattyú? klíma az árban? 1 szint, akadálymentesített bejutás? 3-4 autónak
beállási lehetőség (garázs +fedett gépkocsi beálló)Eladási irányár: 102 700 000
.-FtA ház a kényelmes otthont biztosít a lakók számára, mind a belső lakrészben,
mind a kert, udvar, illetve a terasz területén Vásárláshoz kedvező kamatozású
hitel illetve ( Otthon Start Program fix 3 % , CSOK Plusz, Jelzáloghitel,
Babaváró, Piaci hitel??)igénylésében segítünk.Ha felkeltette érdeklődését,
hívjon bizalommal, (hétvégén is) éljen ingyenes, személyre szabott
hitelügyintézés szolgáltatásunkkal. Segítünk továbbá adásvételhez szükséges
ügyvédi közreműködésben, energetikai tanúsítvány, valamint értékbecslés
elkészítésében.For English information please send a message. ...TOVÁBBI,
TÖBBEZRES INGATLAN KÍNÁLAT: www.gdn-ingatlan.hu - GDN azonosító: 388232
frekventált, kedvelt részén, összközműves építési telken, családiházas
környezetben, eladó egy 2025-ben épülő egyszintes, igényes, egyedi kivitelezésű
124 m2 hasznos (br.140m2 ), alapterületű, nappali + 3 szobás , 823m2 privát
telekterülettel rendelkező családi ház, garázzsal, terasszal.Energiahatékony
ingatlan, saját 823m2 telekterület, garázzsal.A ház kiváló elhelyezkedésének
köszönhetően a belváros, illetve az M7 autópálya pár perc távolságra található,
mindemellett az elkerülőút közelsége miatt a város többi része is könnyen
megközelíthető. Az ingatlan környezetében bevásárlási lehetőség, egyéb üzletek
és számos szolgáltatás megtalálható.A ház acélvázas könnyűszerkezet, szigetelt,
tágas, világos, körbe napozott, minőségi anyagokból készült. A burkolatokat
tekintve a szobákban magas minőségű laminált padló, a nappaliban a közlekedőben,
valamint a konyhában és a vizes helyiségekben jó minőségű járólap található. A
nyílászárók 3 rétegű műanyagból készülnek, hőszigetelt üvegezéssel, rajtuk
redőny előkészítéssel. A házban klíma kiépítésre kerül.. A terasz, kényelmes
pihenést biztosít. Az utcai kapu elektromosan lesz nyitható. A telek adottságai
miatt ( úgynevezett ? nyeles? telek) a ház, és a kert terület teljesen intim
nyugalmat biztosít.Elosztását tekintve:Földszint: előtér, nappali-konyha-étkező
(45m2), kamra, 2 fürdőszoba, 3 hálószoba, háztartási helyiség, tágas
garázs,Fontosabb paraméterek:? 2025-ben épül, acélvázas könnyűszerkezet+ 15 cm
szigetelés, nemesvakolat? 823m2 saját telekterület? Nappali + 3 hálószoba +
háztartási helyiség +2 fürdő + kamra +garázs+ terasz.? Padlófűtés ,
hőszivattyú? klíma az árban? 1 szint, akadálymentesített bejutás? 3-4 autónak
beállási lehetőség (garázs +fedett gépkocsi beálló)Eladási irányár: 102 700 000
.-FtA ház a kényelmes otthont biztosít a lakók számára, mind a belső lakrészben,
mind a kert, udvar, illetve a terasz területén Vásárláshoz kedvező kamatozású
hitel illetve ( Otthon Start Program fix 3 % , CSOK Plusz, Jelzáloghitel,
Babaváró, Piaci hitel??)igénylésében segítünk.Ha felkeltette érdeklődését,
hívjon bizalommal, (hétvégén is) éljen ingyenes, személyre szabott
hitelügyintézés szolgáltatásunkkal. Segítünk továbbá adásvételhez szükséges
ügyvédi közreműködésben, energetikai tanúsítvány, valamint értékbecslés
elkészítésében.For English information please send a message. ...TOVÁBBI,
TÖBBEZRES INGATLAN KÍNÁLAT: www.gdn-ingatlan.hu - GDN azonosító: 388232
Részletek...
Adatlap
| Ár: | 102.700.000 Ft |
| Település: | Székesfehérvár |
| A hirdető: | Ingatlaniroda ajánlatából |
| Értékesítés típusa: | Eladó |
| Használtság: | Új építésű |
| Utca: | Öreghegyen új építés |
| Telek nagysága (m2) : | 823 |
| Épület hasznos területe (m2) : | 140 |
| Szobák száma: | 4 |
| Anyaga: | Egyéb anyagból készült épület |
| A hirdető kérése: | Ingatlanközvetítő vagyok - keresse fel Irodánkat! |
| Feladás dátuma: | 2025.10.13 |
| Eddig megtekintették 7 alkalommal | |
A hirdető adatai
Kapcsolat a hirdetővel...
Családi házak rovaton belül a(z) "Eladó családi ház Székesfehérvár, Öreghegyen új építés" című hirdetést látja. (fent)




























