
Eladó családi ház Gárdony, Gárdony központi részén
EGYEDI AJÁNLAT GÁRDONY CSENDES, KÖZPONTI RÉSZÉN 3 GENERÁCIÓS CSALÁDI
HÁZ!Gárdonyban, csendes, aszfaltozott mellékutcában, mégis frekventált helyen,
765 nm-es telken, összesen bruttó 282 nm-es, 3 GENERÁCIÓS, 4+4 fél szobás,
közepes állapotú, gáz kazán fűtéses, fa thermo nyílászárós, klímával felszerelt,
Dél - Keleti fekvésű, NAGY TERASZOS, rugalmasan birtokba vehető családi ház
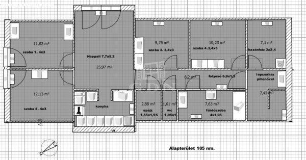
eladó.Az alsó szinten 2 lakrész található, a kisebbik egy szoba, konyhából áll,
a nagyobbik 2 szoba, konyha, fürdőszoba, előszoba, kamra, közlekedő, terasz
elrendezésű. Továbbá a közvetlenül a nagyobbik lakrész mellett található egy
üzlethelyiség, mely jelen állapotában konditeremként funkcionál. Az emeletre egy
elkülönülő belső lépcsőházból juthatunk fel, amely amerikai konyhás nappali + 4
hálószobából, fürdőszobából, külön wc-ből, közlekedőből, spejzból és kazánházból
áll.A kert rendezett, a locsolás ásott kútról megoldott.Az zárt udvaron több
személygépkocsi beállására van lehetőség, továbbá egy két állásos könnyű
szerkezetes garázs és számos tároló (60 nm) is itt kapott helyet, ipari áram 380
V rendelkezésre áll.A környék ellátottsága, infrasturktúrája kiváló, a közelben
bevásárlási lehetőségek (LIDL, SPAR, ALDI), buszmegálló, gyógyszertár, általános
iskola, óvoda séta távolságra található, a vasútállomás és a Velencei tó (600 m)
is percek alatt elérhető.Érdemes megnézni, bővebb információért hívjon
bizalommal akár hétvégén is!L.DINGYENES hiteltanácsadás! CSOK
ügyintézés!BANKFÜGGETLEN hitelcentrumunk minden elérhető bank és hitelintézet
ajánlatát versenyezteti az Ön kedvéért, ráadásul DÍJMENTESEN.Önnek nincs más
dolga, mint elbeszélgetni munkatársunkkal, aki a hallott információk alapján
versenyre hívja a bankokat, hogy Ön hosszú távon is a legjobb konstrukciót
kaphassa. A legjobb ajánlatokból végül Ön választhatja ki a
nyertest.Munkatársaink sokéves szakmai tapasztalattal várják Önt, előre
egyeztetve akár a normál munkaidő után is. ...TOVÁBBI, TÖBBEZRES INGATLAN
KÍNÁLAT: www.gdn-ingatlan.hu - GDN azonosító: 382750
HÁZ!Gárdonyban, csendes, aszfaltozott mellékutcában, mégis frekventált helyen,
765 nm-es telken, összesen bruttó 282 nm-es, 3 GENERÁCIÓS, 4+4 fél szobás,
közepes állapotú, gáz kazán fűtéses, fa thermo nyílászárós, klímával felszerelt,
Dél - Keleti fekvésű, NAGY TERASZOS, rugalmasan birtokba vehető családi ház
eladó.Az alsó szinten 2 lakrész található, a kisebbik egy szoba, konyhából áll,
a nagyobbik 2 szoba, konyha, fürdőszoba, előszoba, kamra, közlekedő, terasz
elrendezésű. Továbbá a közvetlenül a nagyobbik lakrész mellett található egy
üzlethelyiség, mely jelen állapotában konditeremként funkcionál. Az emeletre egy
elkülönülő belső lépcsőházból juthatunk fel, amely amerikai konyhás nappali + 4
hálószobából, fürdőszobából, külön wc-ből, közlekedőből, spejzból és kazánházból
áll.A kert rendezett, a locsolás ásott kútról megoldott.Az zárt udvaron több
személygépkocsi beállására van lehetőség, továbbá egy két állásos könnyű
szerkezetes garázs és számos tároló (60 nm) is itt kapott helyet, ipari áram 380
V rendelkezésre áll.A környék ellátottsága, infrasturktúrája kiváló, a közelben
bevásárlási lehetőségek (LIDL, SPAR, ALDI), buszmegálló, gyógyszertár, általános
iskola, óvoda séta távolságra található, a vasútállomás és a Velencei tó (600 m)
is percek alatt elérhető.Érdemes megnézni, bővebb információért hívjon
bizalommal akár hétvégén is!L.DINGYENES hiteltanácsadás! CSOK
ügyintézés!BANKFÜGGETLEN hitelcentrumunk minden elérhető bank és hitelintézet
ajánlatát versenyezteti az Ön kedvéért, ráadásul DÍJMENTESEN.Önnek nincs más
dolga, mint elbeszélgetni munkatársunkkal, aki a hallott információk alapján
versenyre hívja a bankokat, hogy Ön hosszú távon is a legjobb konstrukciót
kaphassa. A legjobb ajánlatokból végül Ön választhatja ki a
nyertest.Munkatársaink sokéves szakmai tapasztalattal várják Önt, előre
egyeztetve akár a normál munkaidő után is. ...TOVÁBBI, TÖBBEZRES INGATLAN
KÍNÁLAT: www.gdn-ingatlan.hu - GDN azonosító: 382750
Részletek...
Adatlap
| Ár: | 74.990.000 Ft |
| Település: | Gárdony |
| A hirdető: | Ingatlaniroda ajánlatából |
| Értékesítés típusa: | Eladó |
| Használtság: | Használt |
| Utca: | Gárdony központi részén |
| Telek nagysága (m2) : | 765 |
| Épület hasznos területe (m2) : | 282 |
| Szobák száma: | 4 |
| Félszobák száma: | 4 |
| Fűtés: | Cirkó fűtéses |
| Ingatlan állapota: | Normál állapotú |
| Anyaga: | Tégla |
| A hirdető kérése: | Ingatlanközvetítő vagyok - keresse fel Irodánkat! |
| Feladás dátuma: | 2025.10.13 |
| Eddig megtekintették 7 alkalommal | |
A hirdető adatai
Kapcsolat a hirdetővel...
Családi házak rovaton belül a(z) "Eladó családi ház Gárdony, Gárdony központi részén" című hirdetést látja. (fent)




























