
Eladó 139 nm-es Új építésű Ikerház Pákozd
Pákozdon új építésű ikerházak eladók. Budai úton kerül megépítésre két darab
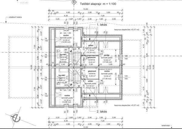
egymás melletti ikerház, kizárólagos használatú 750 nm-es telekrésszel.A
földszint lakható alapterülete 62 nm melyben egy előszoba, amerikai konyha
étkező nappali, 1 hálószoba, fürdő, Wc, spájz,+ egy 36 nm-es terasz és + egy 30
nm-es autóbeállási lehetőség kerül megépítésreEmelet: hasznos alapterülete: 44
nm (bruttó 57 nm), 2 hálószoba, fürdő, Wc, előtér kerül kialakításra.A két
ingatlan dupla falszerkezettel, téglából, betonfödémmel, tégla válaszfalakkal
adják át, hőszivattyús fűtés rendszerrel, klíma hűtéssel. A külső falszerkezeten
15 cm szigetelést tesznek.A vevők választhatnak burkolatot, csempét, (a nagy
lapok letétele feláras!) világos falszínt, szanitereket, belső
válaszfalajtókat.Az ingatlanok konyhaszekrény, beépített szekrények nélkül
kulcsrakészen kerülnek átadásra.Kivitelezőnek több referencia munkája is vanA
házak várható átadása jövő év eleje. A házak falai, belsőválaszfalai (kivéve
tetőtér) már állnak megtekintés, bejárás lehetséges. A burkolatok még
választhatóak.Csok+, zöldhitel felvehető.
egymás melletti ikerház, kizárólagos használatú 750 nm-es telekrésszel.A
földszint lakható alapterülete 62 nm melyben egy előszoba, amerikai konyha
étkező nappali, 1 hálószoba, fürdő, Wc, spájz,+ egy 36 nm-es terasz és + egy 30
nm-es autóbeállási lehetőség kerül megépítésreEmelet: hasznos alapterülete: 44
nm (bruttó 57 nm), 2 hálószoba, fürdő, Wc, előtér kerül kialakításra.A két
ingatlan dupla falszerkezettel, téglából, betonfödémmel, tégla válaszfalakkal
adják át, hőszivattyús fűtés rendszerrel, klíma hűtéssel. A külső falszerkezeten
15 cm szigetelést tesznek.A vevők választhatnak burkolatot, csempét, (a nagy
lapok letétele feláras!) világos falszínt, szanitereket, belső
válaszfalajtókat.Az ingatlanok konyhaszekrény, beépített szekrények nélkül
kulcsrakészen kerülnek átadásra.Kivitelezőnek több referencia munkája is vanA
házak várható átadása jövő év eleje. A házak falai, belsőválaszfalai (kivéve
tetőtér) már állnak megtekintés, bejárás lehetséges. A burkolatok még
választhatóak.Csok+, zöldhitel felvehető.
Részletek...
Adatlap
| Ár: | 129.630.000 Ft |
| Település: | Pákozd |
| A hirdető: | Ingatlaniroda ajánlatából |
| Értékesítés típusa: | Eladó |
| Használtság: | Új építésű |
| Telek nagysága (m2) : | 750 |
| Épület hasznos területe (m2) : | 139 |
| Szobák száma: | 4 |
| Feladás dátuma: | 2025.12.17 |
| Eddig megtekintették 16 alkalommal | |
A hirdető adatai
Kapcsolat a hirdetővel...
Családi házak rovaton belül a(z) "Eladó 139 nm-es Új építésű Ikerház Pákozd" című hirdetést látja. (fent)




























