
Eladó családi ház Budapest, X. kerület, Mádi utca
Nemzetközi lehetőség Budapesten ? Prémium villa üzleti és befektetési célra az
Óhegy városrészbenBudapesten, a X. kerület zöldövezeti, kertvárosias részén,
Óhegyen kínálunk megvételre egy teljes körűen, prémium minőségben felújított,
azonnal használatba vehető, két szintes nagypolgári villát.A 729 m˛-es,
gondozott saroktelken elhelyezkedő ingatlan nemcsak elegáns otthonként, hanem
nemzetközi vállalkozás, cégközpont, képviseleti iroda vagy
egészségügyi/szolgáltató központ számára is ideális választás.Ez az ingatlan
tökéletes belépési pont lehet egy Magyarországon vagy az Európai Unióban
terjeszkedő külföldi vállalkozás számára.Kiemelt üzleti előnyökKét teljesen
külön bejárattal rendelkező szint ? önálló funkcióra kialakítvaMozgáskorlátozott
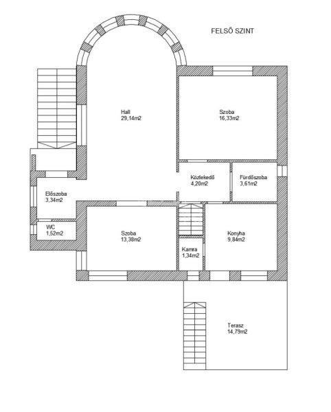
lépcsőlift ? akadálymentesített működés5 szoba, 2 konyha, 2 fürdőszoba, tágas
hall és reprezentatív fogadóterekModern gépészet, friss prémium felújítás729
m˛-es saroktelek, több gépkocsi beállási lehetőséggelMotoros kapu, intim hátsó
kert, külön tárolóhelyiségAzonnal birtokba vehető, újszerű állapotIdeális
választás lehet:? Nemzetközi vállalat budapesti központjának? Kínai / ázsiai
kereskedelmi képviseletnek? Oktatási vagy kulturális központnak?
Magánklinikának, rendelőnek? Prémium szolgáltató vállalkozásnak? Két különálló
lakásos befektetésnek? Többgenerációs családi rezidenciánakInspiráló lehetőségAz
ingatlan ritka kombinációja az eleganciának, a funkcionalitásnak és az üzleti
potenciálnak.Reprezentatív megjelenése bizalmat és stabilitást sugall ? ami
különösen fontos nemzetközi partnerekkel dolgozó vállalkozások számára.A
csendes, mégis jól megközelíthető környezet ideális egy olyan vállalkozás
számára, amely értékeli a nyugodt munkakörnyezetet, ugyanakkor fontos számára a
budapesti üzleti kapcsolatok könnyű elérhetősége.Ez nem csupán egy ingatlan.Ez
egy stratégiai lehetőség egy stabil európai jelenlét kiépítésére.Ha szeretnéd,
készítek hozzá:professzionális angol nyelvű üzleti verziótrövidebb, kifejezetten
befektetői célú hirdetési változatotvagy egy kifejezetten kínai célcsoport
számára optimalizált, kulturálisan hangolt szöveget is ...TOVÁBBI, TÖBBEZRES
INGATLAN KÍNÁLAT: www.gdn-ingatlan.hu - GDN azonosító: 389758
Óhegy városrészbenBudapesten, a X. kerület zöldövezeti, kertvárosias részén,
Óhegyen kínálunk megvételre egy teljes körűen, prémium minőségben felújított,
azonnal használatba vehető, két szintes nagypolgári villát.A 729 m˛-es,
gondozott saroktelken elhelyezkedő ingatlan nemcsak elegáns otthonként, hanem
nemzetközi vállalkozás, cégközpont, képviseleti iroda vagy
egészségügyi/szolgáltató központ számára is ideális választás.Ez az ingatlan
tökéletes belépési pont lehet egy Magyarországon vagy az Európai Unióban
terjeszkedő külföldi vállalkozás számára.Kiemelt üzleti előnyökKét teljesen
külön bejárattal rendelkező szint ? önálló funkcióra kialakítvaMozgáskorlátozott
lépcsőlift ? akadálymentesített működés5 szoba, 2 konyha, 2 fürdőszoba, tágas
hall és reprezentatív fogadóterekModern gépészet, friss prémium felújítás729
m˛-es saroktelek, több gépkocsi beállási lehetőséggelMotoros kapu, intim hátsó
kert, külön tárolóhelyiségAzonnal birtokba vehető, újszerű állapotIdeális
választás lehet:? Nemzetközi vállalat budapesti központjának? Kínai / ázsiai
kereskedelmi képviseletnek? Oktatási vagy kulturális központnak?
Magánklinikának, rendelőnek? Prémium szolgáltató vállalkozásnak? Két különálló
lakásos befektetésnek? Többgenerációs családi rezidenciánakInspiráló lehetőségAz
ingatlan ritka kombinációja az eleganciának, a funkcionalitásnak és az üzleti
potenciálnak.Reprezentatív megjelenése bizalmat és stabilitást sugall ? ami
különösen fontos nemzetközi partnerekkel dolgozó vállalkozások számára.A
csendes, mégis jól megközelíthető környezet ideális egy olyan vállalkozás
számára, amely értékeli a nyugodt munkakörnyezetet, ugyanakkor fontos számára a
budapesti üzleti kapcsolatok könnyű elérhetősége.Ez nem csupán egy ingatlan.Ez
egy stratégiai lehetőség egy stabil európai jelenlét kiépítésére.Ha szeretnéd,
készítek hozzá:professzionális angol nyelvű üzleti verziótrövidebb, kifejezetten
befektetői célú hirdetési változatotvagy egy kifejezetten kínai célcsoport
számára optimalizált, kulturálisan hangolt szöveget is ...TOVÁBBI, TÖBBEZRES
INGATLAN KÍNÁLAT: www.gdn-ingatlan.hu - GDN azonosító: 389758
Részletek...
Adatlap
| Ár: | 265.000.000 Ft |
| Település: | X. kerület |
| A hirdető: | Ingatlaniroda ajánlatából |
| Értékesítés típusa: | Eladó |
| Használtság: | Használt |
| Utca: | Mádi utca |
| Telek nagysága (m2) : | 729 |
| Épület hasznos területe (m2) : | 197 |
| Szobák száma: | 7 |
| Fűtés: | Cirkó fűtéses |
| Ingatlan állapota: | Felújított |
| Anyaga: | Tégla |
| A hirdető kérése: | Ingatlanközvetítő vagyok - keresse fel Irodánkat! |
| Feladás dátuma: | 2026.02.22 |
| Eddig megtekintették 32 alkalommal | |
A hirdető adatai
Kapcsolat a hirdetővel...
Családi házak rovaton belül a(z) "Eladó családi ház Budapest, X. kerület, Mádi utca" című hirdetést látja. (fent)




























