
Eladó családi ház Csór, Iszkaszőlőhegy
Új építésű családi otthon lenyűgöző örökpanorámával Csór,
Iszkaszőlőhegyen!Vh-004670 Csór, Iszkaszőlőhegy egyik legszebb részén,
aszfaltozott úton könnyen megközelíthető, örökpanorámás telken ÚJÉPÍTÉSŰ, önálló
családi ház ELADÓ, mely kulcsrakész állapotban várja új tulajdonosát.A 2026-ben
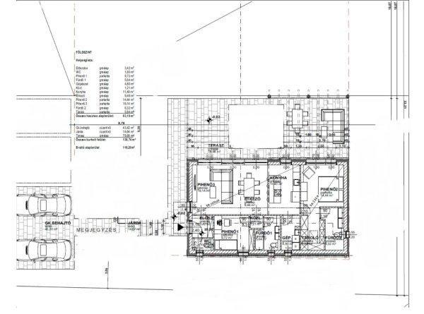
épülő ingatlan 93 négyzetméter hasznos alapterülettel rendelkezik, mely ideális
elrendezést biztosít: egy körbe napozott amerikai konyha-nappali mellett két
tágas hálószoba, két különálló fürdőszoba, előszoba és háztartási helyiség
került kialakításra. A belső tér rugalmasan alakítható, így igény szerint akár
nappali + 3 szobás elrendezés is megvalósítható. Az életteret jelentősen
kiterjeszti a házhoz kapcsolódó 79 négyzetméteres terasz.Korszerű Műszaki
MegoldásokAz otthon energiahatékonyságát a modern műszaki tartalom garantálja. A
falazat Ytong téglából, a válaszfalak gipszkartonból készülnek, 15 centiméter
vastag homlokzati hőszigeteléssel ellátva. A szeglemezes födém,-tető
szerkezetben 30 centiméter vastag, fújt cellulóz szigetelés kerül, melyet Terrán
cserép tetőfedés fog zárni. A nyílászárók műanyagból készülnek, 5 kamrás,
háromrétegű hőszigetelt üvegezéssel.A fűtésrendszer 11 kilowattos hőszivattyúval
megoldott padlófűtést fog biztosítani. A villamos hálózat 3x25A kapacitású, és
lehetőség van H-tarifás óra igénylésére. A jövőre gondolva kialakításra kerül az
elektromos autó töltő előkészítése, továbbá a ház alkalmas napelem- és
napkollektor rendszer telepítésére is.KözművekA közműellátás a villany
rendelkezésre állásával biztosított. Az ivóvíz fúrt kút és időszakosan
feltöltendő víztároló segítségével megoldott, míg a szennyvízelvezetést egy 35
köbméteres derítő szolgálja.ÁrazásAz eladási ár magában foglalja a megadott
listából választható hideg-meleg burkolatokat, az alapszereléseket, valamint a
tereprendezést is. Az ingatlan a szerződéskötéstől számítva 6-9 hónapon belül
kulcsrakész állapotban birtokba vehető.Kulcsrakész eladási irányár: 75 M FtA
HIRDETÉSBEN SZEREPLŐ FÉNYKÉPEK EGY MÁR FELÉPÜLT HÁZRÓL KÉSZÜLTEK, REFERENCIAKÉNT
SZOLGÁLNAK. A FÉNYKÉPEKEN LÁTHATÓ KERÍTÉST-TÁMFALAT AZ ÁR NEM TARTALMAZZA. Ha
felkeltette érdeklődését, hívjon bizalommal, (hétvégén is) éljen ingyenes,
személyre szabott hitelügyintézés szolgáltatásunkkal. Segítünk továbbá
adásvételhez szükséges ügyvédi közreműködésben, energetikai tanúsítvány,
valamint értékbecslés elkészítésében.For English information please send a
message. ...TOVÁBBI, TÖBBEZRES INGATLAN KÍNÁLAT: www.gdn-ingatlan.hu - GDN
azonosító: 389928
Iszkaszőlőhegyen!Vh-004670 Csór, Iszkaszőlőhegy egyik legszebb részén,
aszfaltozott úton könnyen megközelíthető, örökpanorámás telken ÚJÉPÍTÉSŰ, önálló
családi ház ELADÓ, mely kulcsrakész állapotban várja új tulajdonosát.A 2026-ben
épülő ingatlan 93 négyzetméter hasznos alapterülettel rendelkezik, mely ideális
elrendezést biztosít: egy körbe napozott amerikai konyha-nappali mellett két
tágas hálószoba, két különálló fürdőszoba, előszoba és háztartási helyiség
került kialakításra. A belső tér rugalmasan alakítható, így igény szerint akár
nappali + 3 szobás elrendezés is megvalósítható. Az életteret jelentősen
kiterjeszti a házhoz kapcsolódó 79 négyzetméteres terasz.Korszerű Műszaki
MegoldásokAz otthon energiahatékonyságát a modern műszaki tartalom garantálja. A
falazat Ytong téglából, a válaszfalak gipszkartonból készülnek, 15 centiméter
vastag homlokzati hőszigeteléssel ellátva. A szeglemezes födém,-tető
szerkezetben 30 centiméter vastag, fújt cellulóz szigetelés kerül, melyet Terrán
cserép tetőfedés fog zárni. A nyílászárók műanyagból készülnek, 5 kamrás,
háromrétegű hőszigetelt üvegezéssel.A fűtésrendszer 11 kilowattos hőszivattyúval
megoldott padlófűtést fog biztosítani. A villamos hálózat 3x25A kapacitású, és
lehetőség van H-tarifás óra igénylésére. A jövőre gondolva kialakításra kerül az
elektromos autó töltő előkészítése, továbbá a ház alkalmas napelem- és
napkollektor rendszer telepítésére is.KözművekA közműellátás a villany
rendelkezésre állásával biztosított. Az ivóvíz fúrt kút és időszakosan
feltöltendő víztároló segítségével megoldott, míg a szennyvízelvezetést egy 35
köbméteres derítő szolgálja.ÁrazásAz eladási ár magában foglalja a megadott
listából választható hideg-meleg burkolatokat, az alapszereléseket, valamint a
tereprendezést is. Az ingatlan a szerződéskötéstől számítva 6-9 hónapon belül
kulcsrakész állapotban birtokba vehető.Kulcsrakész eladási irányár: 75 M FtA
HIRDETÉSBEN SZEREPLŐ FÉNYKÉPEK EGY MÁR FELÉPÜLT HÁZRÓL KÉSZÜLTEK, REFERENCIAKÉNT
SZOLGÁLNAK. A FÉNYKÉPEKEN LÁTHATÓ KERÍTÉST-TÁMFALAT AZ ÁR NEM TARTALMAZZA. Ha
felkeltette érdeklődését, hívjon bizalommal, (hétvégén is) éljen ingyenes,
személyre szabott hitelügyintézés szolgáltatásunkkal. Segítünk továbbá
adásvételhez szükséges ügyvédi közreműködésben, energetikai tanúsítvány,
valamint értékbecslés elkészítésében.For English information please send a
message. ...TOVÁBBI, TÖBBEZRES INGATLAN KÍNÁLAT: www.gdn-ingatlan.hu - GDN
azonosító: 389928
Részletek...
Adatlap
| Ár: | 75.000.000 Ft |
| Település: | Csór |
| A hirdető: | Ingatlaniroda ajánlatából |
| Értékesítés típusa: | Eladó |
| Használtság: | Új építésű |
| Utca: | Iszkaszőlőhegy |
| Telek nagysága (m2) : | 1235 |
| Épület hasznos területe (m2) : | 93 |
| Szobák száma: | 3 |
| Anyaga: | Tégla |
| A hirdető kérése: | Ingatlanközvetítő vagyok - keresse fel Irodánkat! |
| Feladás dátuma: | 2025.12.24 |
| Eddig megtekintették 15 alkalommal | |
A hirdető adatai
Kapcsolat a hirdetővel...
Családi házak rovaton belül a(z) "Eladó családi ház Csór, Iszkaszőlőhegy" című hirdetést látja. (fent)




























