
Eladó 120 nm-es Felújítandó Családi ház Besnyő csendes
Fejér megye, Besnyő 120 nm-es önálló családi ház eladó. A tégla falazatú,
szigetelt ingatlan, csendes családi házas övezetben, egy 851 nm-es telken
helyezkedik el. A családi ház hasznos alapterülete 92 nm (fedett terasz, garázs,
pince, kazánház alapterületének a fele beleszámítva a meghirdetett területbe.)
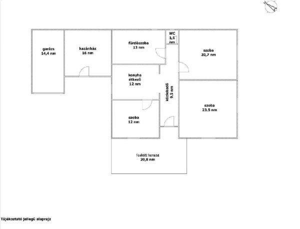
Az összközműves ingatlanban 3 tágas szoba, konyha és étkező, fürdőszoba, külön
WC található, valamint 20,8 nm-ess fedett terasz, 14,4 nm-es garázs, 16 nm-es
kazánház, 12 nm-es pince és egy ásott kút tartozik hozzá. Az elmúlt években új
tetőt, külső szigetelést és új műanyag nyílászárókat kapott az épület. Az
ingatlanban 3x16A és éjszakai áram is van. A fűtést vegyestüzelésű kazán
biztosítja, radiátoros hő leadással. A használati melegvizet villanybojler adja.
Teljes körű ügyintézésben segítjük ügyfeleinket díjtalanul: Falusi CSOK, CSOK
igénylése, kedvezményes hitel mobil bankári szolgáltatással, adásvétel teljes
lebonyolításával. Bővebb információkért, kérem keressen bizalommal.
szigetelt ingatlan, csendes családi házas övezetben, egy 851 nm-es telken
helyezkedik el. A családi ház hasznos alapterülete 92 nm (fedett terasz, garázs,
pince, kazánház alapterületének a fele beleszámítva a meghirdetett területbe.)
Az összközműves ingatlanban 3 tágas szoba, konyha és étkező, fürdőszoba, külön
WC található, valamint 20,8 nm-ess fedett terasz, 14,4 nm-es garázs, 16 nm-es
kazánház, 12 nm-es pince és egy ásott kút tartozik hozzá. Az elmúlt években új
tetőt, külső szigetelést és új műanyag nyílászárókat kapott az épület. Az
ingatlanban 3x16A és éjszakai áram is van. A fűtést vegyestüzelésű kazán
biztosítja, radiátoros hő leadással. A használati melegvizet villanybojler adja.
Teljes körű ügyintézésben segítjük ügyfeleinket díjtalanul: Falusi CSOK, CSOK
igénylése, kedvezményes hitel mobil bankári szolgáltatással, adásvétel teljes
lebonyolításával. Bővebb információkért, kérem keressen bizalommal.
Részletek...
Adatlap
| Ár: | 53.400.000 Ft |
| Település: | Besnyő |
| A hirdető: | Ingatlaniroda ajánlatából |
| Értékesítés típusa: | Eladó |
| Használtság: | Használt |
| Utca: | csendes |
| Telek nagysága (m2) : | 851 |
| Épület hasznos területe (m2) : | 120 |
| Szobák száma: | 3 |
| Ingatlan állapota: | Felújítandó |
| Feladás dátuma: | 2025.11.24 |
| Eddig megtekintették 0 alkalommal | |
A hirdető adatai
Kapcsolat a hirdetővel...
Családi házak rovaton belül a(z) "Eladó 120 nm-es Felújítandó Családi ház Besnyő csendes " című hirdetést látja. (fent)




























