Betöltés...

Pomázon a Meselia déli oldalában egy szintes, nappali + 4 há

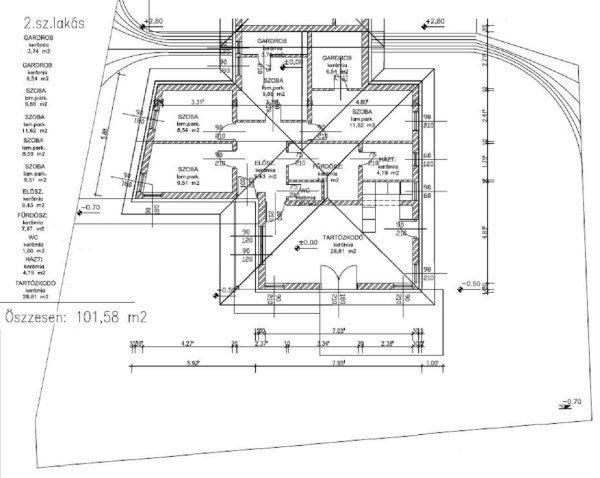
Pomázon a Meselia déli oldalában, csendes környezetben 340 nm-es saját,
kizárólagos használatú kerttel rendelkező, egy szintes, nappali + 4 hálószobás
ikerház-fél eladó.Az építéssel kapcsolatos paraméterek:- Tervezett átadás:
szerződés kötéstől számított egy éven belül- hőszivattyús fűtés, padlófűtéssel,
radiátorokkal- magas minőségű hőszigetelés, ZÖLD hitelnek megfelelő energetikai
besorolás- több rétegű, műanyag nyílászárók- választható belső burkolatok,
szaniterek- riasztó rendszer előkészítés- 30 nm-es, az amerikai konyhás
nappalihoz kapcsolódó terasz- durva tereprendezés- kulcsrakész
átadásFinanszírozási lehetőség:- Zöld hitel kompatibilitás- CSOK (10+15M) hitel,
illeték mentesség, Áfa visszatérítés igényelhető.- Az alaprajz igény szerint még
módosítható.A beruházó a környék elismert építési vállalkozója, rengeteg
referenciamunkával rendelkezik.

Részletek...
Adatlap
Ár: 122.900.000 Ft
Település: Pomáz
A hirdető: Ingatlaniroda ajánlatából
Értékesítés típusa: Eladó
Telek nagysága (m2) : 340
Épület hasznos területe (m2) : 115
Szobák száma: 5
Komfort: Összkomfortos
Ingatlan állapota: Normál állapotú
Anyaga: Tégla
A hirdető kérése: Ingatlanközvetítő vagyok - keresse fel Irodánkat!
 
Feladás dátuma: 2025.12.22
Eddig megtekintették 0 alkalommal
A hirdető adatai
Kapcsolat a hirdetővel...

Pomázon a Meselia déli oldalában egy szintes, nappali + 4 há Pomázon a Meselia déli oldalában egy szintes, nappali + 4 há Pomázon a Meselia déli oldalában egy szintes, nappali + 4 há Pomázon a Meselia déli oldalában egy szintes, nappali + 4 há Pomázon a Meselia déli oldalában egy szintes, nappali + 4 há
Lehetőségek
Megosztók

Családi házak rovaton belül a(z) "Pomázon a Meselia déli oldalában egy szintes, nappali + 4 há" című hirdetést látja. (fent)



Eladó házak

Eladó házak a családi ház rovaton belül. Olcsó használt vagy újépítésű, illetve újszerű házak között kereshet az ingatlankereső használatával.
Tipp: Családi ház vásárlása előtt érdemes tájékozódni a telek beépíthetőségéről is.