
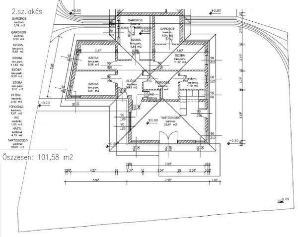
Pomázon a Meselia déli oldalában egy szintes, nappali + 4 há
Pomázon a Meselia déli oldalában, csendes környezetben 340 nm-es saját,
kizárólagos használatú kerttel rendelkező, egy szintes, nappali + 4 hálószobás
ikerház-fél eladó.Az építéssel kapcsolatos paraméterek:- Tervezett átadás:
szerződés kötéstől számított egy éven belül- hőszivattyús fűtés, padlófűtéssel,
radiátorokkal- magas minőségű hőszigetelés, ZÖLD hitelnek megfelelő energetikai
besorolás- több rétegű, műanyag nyílászárók- választható belső burkolatok,
szaniterek- riasztó rendszer előkészítés- 30 nm-es, az amerikai konyhás
nappalihoz kapcsolódó terasz- durva tereprendezés- kulcsrakész
átadásFinanszírozási lehetőség:- Zöld hitel kompatibilitás- CSOK (10+15M) hitel,
illeték mentesség, Áfa visszatérítés igényelhető.- Az alaprajz igény szerint még
módosítható.A beruházó a környék elismert építési vállalkozója, rengeteg
referenciamunkával rendelkezik.
kizárólagos használatú kerttel rendelkező, egy szintes, nappali + 4 hálószobás
ikerház-fél eladó.Az építéssel kapcsolatos paraméterek:- Tervezett átadás:
szerződés kötéstől számított egy éven belül- hőszivattyús fűtés, padlófűtéssel,
radiátorokkal- magas minőségű hőszigetelés, ZÖLD hitelnek megfelelő energetikai
besorolás- több rétegű, műanyag nyílászárók- választható belső burkolatok,
szaniterek- riasztó rendszer előkészítés- 30 nm-es, az amerikai konyhás
nappalihoz kapcsolódó terasz- durva tereprendezés- kulcsrakész
átadásFinanszírozási lehetőség:- Zöld hitel kompatibilitás- CSOK (10+15M) hitel,
illeték mentesség, Áfa visszatérítés igényelhető.- Az alaprajz igény szerint még
módosítható.A beruházó a környék elismert építési vállalkozója, rengeteg
referenciamunkával rendelkezik.
Részletek...
Adatlap
| Ár: | 122.900.000 Ft |
| Település: | Pomáz |
| A hirdető: | Ingatlaniroda ajánlatából |
| Értékesítés típusa: | Eladó |
| Telek nagysága (m2) : | 340 |
| Épület hasznos területe (m2) : | 115 |
| Szobák száma: | 5 |
| Komfort: | Összkomfortos |
| Ingatlan állapota: | Normál állapotú |
| Anyaga: | Tégla |
| A hirdető kérése: | Ingatlanközvetítő vagyok - keresse fel Irodánkat! |
| Feladás dátuma: | 2025.12.22 |
| Eddig megtekintették 0 alkalommal | |
A hirdető adatai
Kapcsolat a hirdetővel...
Családi házak rovaton belül a(z) "Pomázon a Meselia déli oldalában egy szintes, nappali + 4 há" című hirdetést látja. (fent)




























