
Eladó családi ház Csór, Iszkaszőlőhegy
Exkluzív, új építésű családi otthon lenyűgöző örökpanorámával Csór,
Iszkaszőlőhegyen!Vh-004667. Csór, Iszkaszőlőhegy egyik legszebb részén,
aszfaltozott úton könnyen megközelíthető, örökpanorámás telken ÚJÉPÍTÉSŰ, önálló
családi ház ELADÓ, mely kulcsrakész állapotban várja új tulajdonosát.A 2025-ben
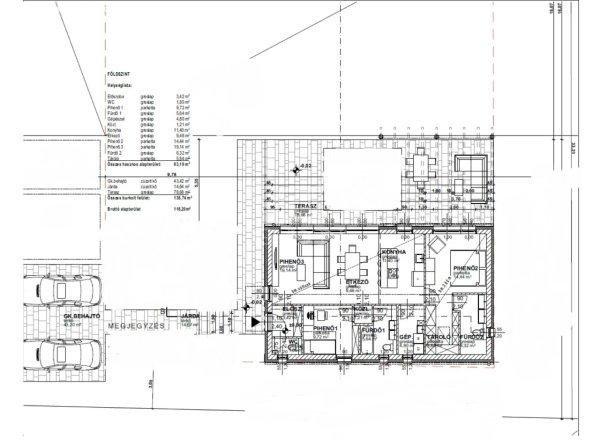
épült ingatlan 93 négyzetméter hasznos alapterülettel rendelkezik, mely ideális
elrendezést biztosít: egy körbe napozott amerikai konyha-nappali mellett két
tágas hálószoba, két különálló fürdőszoba, előszoba és háztartási helyiség
került kialakításra. A belső tér rugalmasan alakítható, így igény szerint akár
nappali + 3 szobás elrendezés is megvalósítható. Az életteret jelentősen
kiterjeszti a házhoz kapcsolódó 79 négyzetméteres terasz.Korszerű Műszaki
MegoldásokAz otthon energiahatékonyságát a modern műszaki tartalom garantálja. A
falazat Ytong téglából, a válaszfalak gipszkartonból készültek, 15 centiméter
vastag homlokzati hőszigeteléssel ellátva. A szeglemezes födém,-tető
szerkezetben 30 centiméter vastag, fújt cellulóz szigetelés került, melyet
Terrán cserép tetőfedés zár. A nyílászárók műanyagból készültek, 5 kamrás,
háromrétegű hőszigetelt üvegezéssel.A fűtésrendszer 11 kilowattos hőszivattyúval
megoldott padlófűtést biztosít. A villamos hálózat 3x25A kapacitású, és
lehetőség van H-tarifás óra igénylésére. A jövőre gondolva kialakításra került
az elektromos autó töltő előkészítése, továbbá a ház alkalmas napelem- és
napkollektor rendszer telepítésére is.Telek és KözművekA 1100 négyzetméteres
telek körbekerített, a bejutás kényelmét elektromos kapu garantálja. A
terepviszonyok kiegyenlítése céljából masszív vasbeton támfal épült.A
közműellátás a villany rendelkezésre állásával biztosított. Az ivóvíz fúrt kút
és időszakosan feltöltendő víztároló segítségével megoldott, míg a
szennyvízelvezetést egy 35 köbméteres derítő szolgálja.Az eladási ár magában
foglalja a megadott listából választható hideg-meleg burkolatokat, az
alapszereléseket, valamint a tereprendezést is. Az ingatlan a szerződéskötéstől
számítva 1-3 hónapon belül kulcsrakész állapotban birtokba vehető.Eladási
irányár: 79,9 M FtHa felkeltette érdeklődését, hívjon bizalommal, (hétvégén is)
éljen ingyenes, személyre szabott hitelügyintézés szolgáltatásunkkal. Segítünk
továbbá adásvételhez szükséges ügyvédi közreműködésben, energetikai tanúsítvány,
valamint értékbecslés elkészítésében.For English information please send a
message. ...TOVÁBBI, TÖBBEZRES INGATLAN KÍNÁLAT: www.gdn-ingatlan.hu - GDN
azonosító: 391827
Iszkaszőlőhegyen!Vh-004667. Csór, Iszkaszőlőhegy egyik legszebb részén,
aszfaltozott úton könnyen megközelíthető, örökpanorámás telken ÚJÉPÍTÉSŰ, önálló
családi ház ELADÓ, mely kulcsrakész állapotban várja új tulajdonosát.A 2025-ben
épült ingatlan 93 négyzetméter hasznos alapterülettel rendelkezik, mely ideális
elrendezést biztosít: egy körbe napozott amerikai konyha-nappali mellett két
tágas hálószoba, két különálló fürdőszoba, előszoba és háztartási helyiség
került kialakításra. A belső tér rugalmasan alakítható, így igény szerint akár
nappali + 3 szobás elrendezés is megvalósítható. Az életteret jelentősen
kiterjeszti a házhoz kapcsolódó 79 négyzetméteres terasz.Korszerű Műszaki
MegoldásokAz otthon energiahatékonyságát a modern műszaki tartalom garantálja. A
falazat Ytong téglából, a válaszfalak gipszkartonból készültek, 15 centiméter
vastag homlokzati hőszigeteléssel ellátva. A szeglemezes födém,-tető
szerkezetben 30 centiméter vastag, fújt cellulóz szigetelés került, melyet
Terrán cserép tetőfedés zár. A nyílászárók műanyagból készültek, 5 kamrás,
háromrétegű hőszigetelt üvegezéssel.A fűtésrendszer 11 kilowattos hőszivattyúval
megoldott padlófűtést biztosít. A villamos hálózat 3x25A kapacitású, és
lehetőség van H-tarifás óra igénylésére. A jövőre gondolva kialakításra került
az elektromos autó töltő előkészítése, továbbá a ház alkalmas napelem- és
napkollektor rendszer telepítésére is.Telek és KözművekA 1100 négyzetméteres
telek körbekerített, a bejutás kényelmét elektromos kapu garantálja. A
terepviszonyok kiegyenlítése céljából masszív vasbeton támfal épült.A
közműellátás a villany rendelkezésre állásával biztosított. Az ivóvíz fúrt kút
és időszakosan feltöltendő víztároló segítségével megoldott, míg a
szennyvízelvezetést egy 35 köbméteres derítő szolgálja.Az eladási ár magában
foglalja a megadott listából választható hideg-meleg burkolatokat, az
alapszereléseket, valamint a tereprendezést is. Az ingatlan a szerződéskötéstől
számítva 1-3 hónapon belül kulcsrakész állapotban birtokba vehető.Eladási
irányár: 79,9 M FtHa felkeltette érdeklődését, hívjon bizalommal, (hétvégén is)
éljen ingyenes, személyre szabott hitelügyintézés szolgáltatásunkkal. Segítünk
továbbá adásvételhez szükséges ügyvédi közreműködésben, energetikai tanúsítvány,
valamint értékbecslés elkészítésében.For English information please send a
message. ...TOVÁBBI, TÖBBEZRES INGATLAN KÍNÁLAT: www.gdn-ingatlan.hu - GDN
azonosító: 391827
Részletek...
Adatlap
| Ár: | 79.900.000 Ft |
| Település: | Csór |
| A hirdető: | Ingatlaniroda ajánlatából |
| Értékesítés típusa: | Eladó |
| Használtság: | Új építésű |
| Utca: | Iszkaszőlőhegy |
| Telek nagysága (m2) : | 1100 |
| Épület hasznos területe (m2) : | 93 |
| Szobák száma: | 3 |
| Anyaga: | Egyéb anyagból készült épület |
| A hirdető kérése: | Ingatlanközvetítő vagyok - keresse fel Irodánkat! |
| Feladás dátuma: | 2026.05.26 |
| Eddig megtekintették 38 alkalommal | |
A hirdető adatai
Kapcsolat a hirdetővel...
Családi házak rovaton belül a(z) "Eladó családi ház Csór, Iszkaszőlőhegy" című hirdetést látja. (fent)




























