
ÚJ ÉPÍTÉSŰ LAKÓHÁZ SIÓFOK-SÓSTÓN - Siófok
ÁRCSÖKKENÉS, 81,5 MFT HELYETT 79,9 MFT!A LIDO HOME ingatlan siófoki irodája
eladásra kínálja ezt az új építésű CSALÁDI HÁZAT SIÓFOK-SÓSTÓN.Siófok - Sóstó
frekventált részén, autópálya lehajtótól 2 percre eladó egy kiváló ár/érték
arányú, minőségi anyagokból újonnan épülő, egyedi megjelenésű, BALATON közeli,
szilárd burkolatú úton megközelíthető nappali + 2 szobás családbarát lakóház. A
ház egy 858 m2-es építési telken megvalósuló, egymástól jól elkülönülő, két
utcáról külön-külön megközelíthető kettő lakóegység önálló helyrajzi számmal
bíró ingatlana, használati megosztással leválasztásra kerülő kb. 430 m2
telekrésszel. Az egyes ingatlanrészek motoros kapun keresztül történő
behajtással egymás zavarása nélküli önálló megközelítéssel bírnak. Várható
átadás 2026. IV. negyedév. Állandó lakhatásra, nyaralásra, de jól frekventált
fekvésének köszönhetően kiadásra is kiválóan alkalmas lehet. Jellemzők:-
Balaton strand 700 m,- építés éve 2026,- hőszigeteléssel ellátott YTONG
falazatok, cseréptető,- 72 m2-es nettó alapterület + 14,0 és 5,5 m2-es terasz,-
padlófűtés levegő víz hőszivattyúval, melegvizet indirekt tároló biztosítja,-
nappaliban hűtő/fűtő klíma,- 3 rétegű üvegezéssel ellátott kültéri nyílászárók
fehér színben,- füvesített kert kialakítása,- rendezett jogi helyzet. Ezen
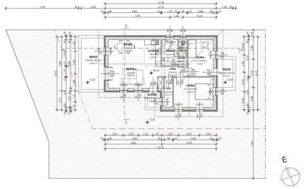
hirdetésben szereplő bruttó 82 m2 alapterületű lakóház elosztása:- nappali /
18,5 m /- kettő szoba / 14,5 és 11,5 m2 /,- konyha+étkező / 13,0 m2 /,-
fürdőszoba WC-vel +külön WC,- kettő terasz / 14,0 és 5,5 m2 /Az ingatlan előre
egyeztetetten megtekinthető.Az ingatlan vételára 79,9 MFtAz ingatlan autóval
Budapestről 1 óra alatt elérhető az M7 autópályáról.Amennyiben a LIDO HOME által
kínált SIÓFOKI családi ház, vagy bármely a kínálatunkban található egyéb
INGATLAN felkeltette az érdeklődését, hívjon a megadott telefonszámon.Vásárolna,
de nincs rá keret?Kollégám díjmentes, bank semleges hitel ügyintézéssel áll
rendelkezésére.LIDO HOME- Ingatlanok egy életen át!
eladásra kínálja ezt az új építésű CSALÁDI HÁZAT SIÓFOK-SÓSTÓN.Siófok - Sóstó
frekventált részén, autópálya lehajtótól 2 percre eladó egy kiváló ár/érték
arányú, minőségi anyagokból újonnan épülő, egyedi megjelenésű, BALATON közeli,
szilárd burkolatú úton megközelíthető nappali + 2 szobás családbarát lakóház. A
ház egy 858 m2-es építési telken megvalósuló, egymástól jól elkülönülő, két
utcáról külön-külön megközelíthető kettő lakóegység önálló helyrajzi számmal
bíró ingatlana, használati megosztással leválasztásra kerülő kb. 430 m2
telekrésszel. Az egyes ingatlanrészek motoros kapun keresztül történő
behajtással egymás zavarása nélküli önálló megközelítéssel bírnak. Várható
átadás 2026. IV. negyedév. Állandó lakhatásra, nyaralásra, de jól frekventált
fekvésének köszönhetően kiadásra is kiválóan alkalmas lehet. Jellemzők:-
Balaton strand 700 m,- építés éve 2026,- hőszigeteléssel ellátott YTONG
falazatok, cseréptető,- 72 m2-es nettó alapterület + 14,0 és 5,5 m2-es terasz,-
padlófűtés levegő víz hőszivattyúval, melegvizet indirekt tároló biztosítja,-
nappaliban hűtő/fűtő klíma,- 3 rétegű üvegezéssel ellátott kültéri nyílászárók
fehér színben,- füvesített kert kialakítása,- rendezett jogi helyzet. Ezen
hirdetésben szereplő bruttó 82 m2 alapterületű lakóház elosztása:- nappali /
18,5 m /- kettő szoba / 14,5 és 11,5 m2 /,- konyha+étkező / 13,0 m2 /,-
fürdőszoba WC-vel +külön WC,- kettő terasz / 14,0 és 5,5 m2 /Az ingatlan előre
egyeztetetten megtekinthető.Az ingatlan vételára 79,9 MFtAz ingatlan autóval
Budapestről 1 óra alatt elérhető az M7 autópályáról.Amennyiben a LIDO HOME által
kínált SIÓFOKI családi ház, vagy bármely a kínálatunkban található egyéb
INGATLAN felkeltette az érdeklődését, hívjon a megadott telefonszámon.Vásárolna,
de nincs rá keret?Kollégám díjmentes, bank semleges hitel ügyintézéssel áll
rendelkezésére.LIDO HOME- Ingatlanok egy életen át!
Részletek...
Adatlap
| Ár: | 79.900.000 Ft |
| Település: | Siófok |
| A hirdető: | Ingatlaniroda ajánlatából |
| Értékesítés típusa: | Eladó |
| Használtság: | Új építésű |
| Telek nagysága (m2) : | 429 |
| Épület hasznos területe (m2) : | 82.00 |
| Szobák száma: | 3 |
| Feladás dátuma: | 2026.05.10 |
| Eddig megtekintették 31 alkalommal | |
A hirdető adatai
Kapcsolat a hirdetővel...
Családi házak rovaton belül a(z) "ÚJ ÉPÍTÉSŰ LAKÓHÁZ SIÓFOK-SÓSTÓN - Siófok" című hirdetést látja. (fent)




























