
4672: Vácrátóton, ÚJ ÉPÍTÉSŰ, CSALÁDI HÁZAK eladók!!!
Kedves Otthonkereső! Vácrátóton, ÚJ ÉPÍTÉSŰ, CSALÁDI HÁZAK eladók!!! Az
aktuális állami támogatások valamint kedvezményes, kamattámogatott hitelek
felvehetőek ? akár a 3%-os OTTHON START hitel, CSOK PLUS, babaváró is
igényelhető, az ügyintézésben díjmentesen segítünk! Az építő munkájára jellemző
a megbízhatóság és igényesség, leinformálható, referencia házai
megtekinthetők. A lakások bruttó területe 81 nm, lakóterületük 70,37 nm + 20,24
nm terasz, amerikai-konyhás nappali + 3 szobával, 376,67 nm valamint 344,91
nm-es telekrésszel, zárt udvari beállóval. A közelben az építő referenciamunkája
megtekinthető, mely a fotón is látható.Rövid műszaki tartalom:A házak falai 30
cm-es téglából épülnek + 15 cm dryvit szigeteléssel.A tető beton cserépfedést
kap.Az ablakok 3 rétegű, műanyag szerkezetűek, thermo üveggel ellátva, fehér
színben kerülnek beépítésre.A fűtés HŐSZIVATTYÚ-val kerül kialakításra, a hő
leadás padlófűtéssel történik.A klíma kiállás és riasztó előkészítés a vételár
részét képezi.Az ingatlan kulcsrakész állapotban kerül átadásra, konyhabútor
nélkül.Az ingatlan építés alatt áll, így az új tulajdonosnak lehetősége van a
burkolatok, szaniterek és belső ajtók kiválasztására a műszaki tartalomban
feltüntetett keretösszegig a vételár részét képezve. Parkolás térkövezett
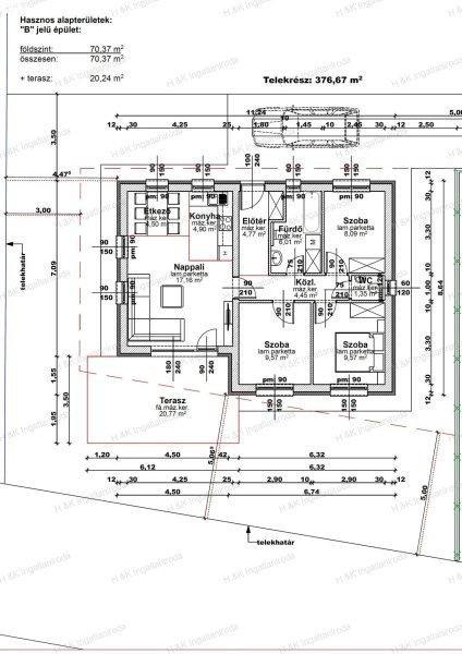
beállón lehetséges.HELYISÉGLISTA:Előszoba 4,77 nm, nappali 17,16 nm, konyha 4,9
nm, étkező 4,5 nm, 3 szoba 8,09 nm, 9,57 nm, 9,57 nm, fürdőszoba káddal 6,02 nm,
közlekedő 4,45 nm, külön WC 1,3 nm, terasz 20,77 nm. A képek látványtervek /
vizuálisan optimalizált illusztrációk, a hangulat bemutatása céljából. Ára:
74.900.000.- FtAzonosító: 4672
aktuális állami támogatások valamint kedvezményes, kamattámogatott hitelek
felvehetőek ? akár a 3%-os OTTHON START hitel, CSOK PLUS, babaváró is
igényelhető, az ügyintézésben díjmentesen segítünk! Az építő munkájára jellemző
a megbízhatóság és igényesség, leinformálható, referencia házai
megtekinthetők. A lakások bruttó területe 81 nm, lakóterületük 70,37 nm + 20,24
nm terasz, amerikai-konyhás nappali + 3 szobával, 376,67 nm valamint 344,91
nm-es telekrésszel, zárt udvari beállóval. A közelben az építő referenciamunkája
megtekinthető, mely a fotón is látható.Rövid műszaki tartalom:A házak falai 30
cm-es téglából épülnek + 15 cm dryvit szigeteléssel.A tető beton cserépfedést
kap.Az ablakok 3 rétegű, műanyag szerkezetűek, thermo üveggel ellátva, fehér
színben kerülnek beépítésre.A fűtés HŐSZIVATTYÚ-val kerül kialakításra, a hő
leadás padlófűtéssel történik.A klíma kiállás és riasztó előkészítés a vételár
részét képezi.Az ingatlan kulcsrakész állapotban kerül átadásra, konyhabútor
nélkül.Az ingatlan építés alatt áll, így az új tulajdonosnak lehetősége van a
burkolatok, szaniterek és belső ajtók kiválasztására a műszaki tartalomban
feltüntetett keretösszegig a vételár részét képezve. Parkolás térkövezett
beállón lehetséges.HELYISÉGLISTA:Előszoba 4,77 nm, nappali 17,16 nm, konyha 4,9
nm, étkező 4,5 nm, 3 szoba 8,09 nm, 9,57 nm, 9,57 nm, fürdőszoba káddal 6,02 nm,
közlekedő 4,45 nm, külön WC 1,3 nm, terasz 20,77 nm. A képek látványtervek /
vizuálisan optimalizált illusztrációk, a hangulat bemutatása céljából. Ára:
74.900.000.- FtAzonosító: 4672
Részletek...
Adatlap
| Ár: | 74.900.000 Ft |
| Település: | Vácrátót |
| A hirdető: | Ingatlaniroda ajánlatából |
| Értékesítés típusa: | Eladó |
| Telek nagysága (m2) : | 344 |
| Épület hasznos területe (m2) : | 81 |
| Szobák száma: | 4 |
| Komfort: | Összkomfortos |
| Ingatlan állapota: | Normál állapotú |
| Anyaga: | Tégla |
| A hirdető kérése: | Ingatlanközvetítő vagyok - keresse fel Irodánkat! |
| Feladás dátuma: | 2026.03.18 |
| Eddig megtekintették 13 alkalommal | |
A hirdető adatai
Kapcsolat a hirdetővel...
Családi házak rovaton belül a(z) "4672: Vácrátóton, ÚJ ÉPÍTÉSŰ, CSALÁDI HÁZAK eladók!!!" című hirdetést látja. (fent)




























