
Eladó ikerház Ercsi, Ercsi Duna-part közelében
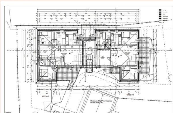
Lakóterek, ahol minden sarok beszélEz a 85 m˛-es lakás nem pusztán otthon, hanem
tudatosan megtervezett élettér. A nappali?étkező központú kialakítás köré három
külön nyíló hálószoba szerveződik, így a privát szféra és a közös terek
tökéletes egyensúlyban vannak. A délnyugati tájolás egész napos fényt biztosít,
a terasz pedig folytatása a belső térnek ? kültéri nappaliként, reggeli kávétól
az esti beszélgetésekig.Terasz-terápiaA 22 m˛-es terasz közvetlen kapcsolatban
áll a kerttel. Itt a természet nem háttér, hanem a mindennapok részévé
válik.Saját garázs, saját rendA saját garázs kényelmes parkolást és extra
tárolóhelyet ad, így minden a praktikumot és a kényelmet szolgálja.Energia, ami
mosolyra késztetA lakás korszerű hőszivattyús padlófűtéssel rendelkezik, az
energiatakarékos melegvíz-ellátás minimálisra csökkenti a fenntartási
költségeket, a precíz szigetelés és a 3 rétegű üvegezésű műanyag nyílászárók a
komfortot szolgálják, a 2,7 m belmagasság pedig tágas, levegős tereket
eredményez. Az önálló mérőórák teljesen leválasztott használatot
biztosítanak.Apró részletek, nagy különbségA nappali és a hálószobák jól
szeparáltak, a közlekedők praktikusak, a terasz a belső tér természetes
folytatása. Minden részlet a hétköznapok kényelmét szolgálja, miközben a terek
arányai és funkcionalitása rendkívül átgondolt.Mi teszi különlegessé ezt az
otthont?- Ikerház jelleg, mégis teljesen elkülönített életterek- Kizárólagos
kerthasználat, ahol a kültér valóban része az életnek- Modern, energiatakarékos
megoldások, amelyek hosszú távon is megtérülnek- Nyugodt, rendezett környezet,
ami pihenést és feltöltődést adVárható átadás: 2026.A projektet egy tapasztalt,
több sikeres munkával rendelkező kivitelező viszi végig, magas minőségben.Mivel
az ingatlan még épül, most van itt az ideje, hogy beleszólj a részletekbe, és
valóban a sajátodra formáld.Az átadás várható ideje a kivitelezés ütemétől függ
? aktuális információkért keress bizalommal.Ha család, barátok vagy csak a saját
nyugalmod a tét, itt minden szobában jut hely a nevetésnek.Ez az otthon nem csak
falakból áll, hanem lehetőségekből, ahol minden pillanatra jut egy kis
varázslat. ...TOVÁBBI, TÖBBEZRES INGATLAN KÍNÁLAT: www.gdn-ingatlan.hu - GDN
azonosító: 394312
tudatosan megtervezett élettér. A nappali?étkező központú kialakítás köré három
külön nyíló hálószoba szerveződik, így a privát szféra és a közös terek
tökéletes egyensúlyban vannak. A délnyugati tájolás egész napos fényt biztosít,
a terasz pedig folytatása a belső térnek ? kültéri nappaliként, reggeli kávétól
az esti beszélgetésekig.Terasz-terápiaA 22 m˛-es terasz közvetlen kapcsolatban
áll a kerttel. Itt a természet nem háttér, hanem a mindennapok részévé
válik.Saját garázs, saját rendA saját garázs kényelmes parkolást és extra
tárolóhelyet ad, így minden a praktikumot és a kényelmet szolgálja.Energia, ami
mosolyra késztetA lakás korszerű hőszivattyús padlófűtéssel rendelkezik, az
energiatakarékos melegvíz-ellátás minimálisra csökkenti a fenntartási
költségeket, a precíz szigetelés és a 3 rétegű üvegezésű műanyag nyílászárók a
komfortot szolgálják, a 2,7 m belmagasság pedig tágas, levegős tereket
eredményez. Az önálló mérőórák teljesen leválasztott használatot
biztosítanak.Apró részletek, nagy különbségA nappali és a hálószobák jól
szeparáltak, a közlekedők praktikusak, a terasz a belső tér természetes
folytatása. Minden részlet a hétköznapok kényelmét szolgálja, miközben a terek
arányai és funkcionalitása rendkívül átgondolt.Mi teszi különlegessé ezt az
otthont?- Ikerház jelleg, mégis teljesen elkülönített életterek- Kizárólagos
kerthasználat, ahol a kültér valóban része az életnek- Modern, energiatakarékos
megoldások, amelyek hosszú távon is megtérülnek- Nyugodt, rendezett környezet,
ami pihenést és feltöltődést adVárható átadás: 2026.A projektet egy tapasztalt,
több sikeres munkával rendelkező kivitelező viszi végig, magas minőségben.Mivel
az ingatlan még épül, most van itt az ideje, hogy beleszólj a részletekbe, és
valóban a sajátodra formáld.Az átadás várható ideje a kivitelezés ütemétől függ
? aktuális információkért keress bizalommal.Ha család, barátok vagy csak a saját
nyugalmod a tét, itt minden szobában jut hely a nevetésnek.Ez az otthon nem csak
falakból áll, hanem lehetőségekből, ahol minden pillanatra jut egy kis
varázslat. ...TOVÁBBI, TÖBBEZRES INGATLAN KÍNÁLAT: www.gdn-ingatlan.hu - GDN
azonosító: 394312
Részletek...
Adatlap
| Ár: | 65.000.000 Ft |
| Település: | Ercsi |
| A hirdető: | Ingatlaniroda ajánlatából |
| Értékesítés típusa: | Eladó |
| Használtság: | Új építésű |
| Utca: | Ercsi Duna-part közelében |
| Telek nagysága (m2) : | 860 |
| Épület hasznos területe (m2) : | 102 |
| Szobák száma: | 4 |
| Anyaga: | Tégla |
| A hirdető kérése: | Ingatlanközvetítő vagyok - keresse fel Irodánkat! |
| Feladás dátuma: | 2026.05.06 |
| Eddig megtekintették 19 alkalommal | |
A hirdető adatai
Kapcsolat a hirdetővel...
Családi házak rovaton belül a(z) "Eladó ikerház Ercsi, Ercsi Duna-part közelében" című hirdetést látja. (fent)




























