
Modern élet čs nyugalom Diósd panorámás részén!
Diósd egyik újonnan épülő utcájában, modern környezetben eladó panorámás
ikerházak!A házak új építésű beruházás része, melynek kivitelezése hamarosan,
még az idei évben kezdődik!Új építésű ingatlanok szomszédságában kínálunk
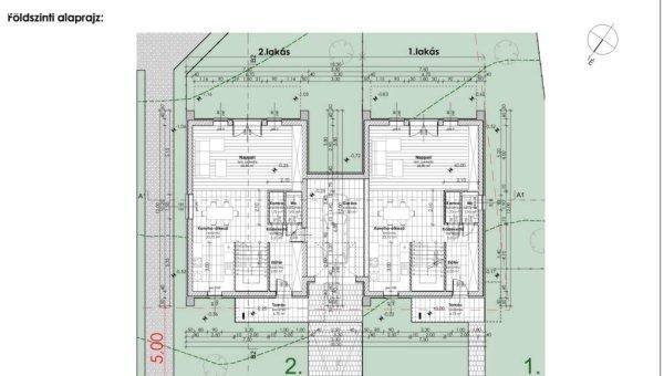
megvételre kiváló elosztású, nettó 132 m˛-es ikerházakat. Az ingatlanok nappali
+ 3 szobás kialakításúak, erkélykapcsolattal, így ideális választás családok
számára is.A házakhoz saját kert, udvari beálló vagy garázs tartozik, biztosítva
a kényelmes parkolást és a nyugodt mindennapokat.A panorámás kilátás és a
csendes, fejlődő környezet különleges életminőséget nyújt leendő
tulajdonosának.A projekt keretében összesen 8 lakóegység kerül kialakításra,
melyek elrendezésüknek köszönhetően szinte teljesen különálló ház érzetét
nyújtják. Az ikerházak csak minimális felületen érintkeznek egymással ?
kizárólag a gépkocsibeállónál vagy a garázsnál kapcsolódnak ?, így biztosítva a
nagyobb privát szférát és nyugodt életteret.Minden ingatlanhoz saját, 250?400 m˛
közötti kert tartozik, amely ideális kert, pihenőkert vagy akár családi
programok kialakítására is.- 132 m˛ lakótér- nappali + 3 szoba- 8 m˛ erkély-
saját kert- garázs - udvari beálló- új építésű, modern környezet- panorámás
kilátásIdeális választás azoknak, akik nyugodt, mégis jól megközelíthető helyen
keresnek új otthont.A házak irányára: 172-195 millió FtMűszaki adatok:Az
ingatlan minőségi műszaki tartalommal épül, stabil, időtálló szerkezetekkel. Az
alapozás 60 cm széles vasalt beton sávalappal, valamint vasalt aljzatbetonnal
készül. A teherhordó falak 30 cm vastag Porotherm vázkerámia téglából, a
válaszfalak szintén kerámia falazattal épülnek, melyeket 15 cm vastag homlokzati
hőszigetelés egészít ki.A hideg 9000Ft/m2 és melegburkolatok 5000Ft/m2forint
költségkerettel. Hideg illetve melegburkolás az alaprajzok szerint.
Hidegburkolás hálós lapkiosztással, a pozitiv sarkokban natúr alumínium
élvédökkel történik, 20x40-es lapmérettöl 60x60-as lapméretig, helyiségenként 3
féleburkolattal. Jelenleg van lehetöség az eltérésre (nagyobb lapméretek,
gérvágás pozitív éleken)egyedi árajánlat alapján. Feszültség mentesitö szönyeg
kerül a burkolatok allá.A födém és a vízszintes szerkezetek monolit vasbeton
kivitelűek, a lépcső gipszbeton szerkezetű. A tető impregnált fa szerkezetű,
tartós beton cserépfedéssel, valamint modern acél pergola előtető is
kialakításra kerül.A nyílászárók korszerű, 3 rétegű üvegezésű műanyag ablakok,
kívül antracit, belül fehér színben, redőny előkészítéssel, igény szerint
zsaluzia lehetőséggel.A fűtésről kondenzációs gázkazán gondoskodik, Padlófűtés a
földszinten és az emeleten is, nappaliban 3,5Kw-os klíma, az emeleten a 3
szobában lég cserélő rendszer ami hűt és fűt.A vásárlás készültségi foknak
megfelelően, ütemezetten történik. A szerződéskötést követően a vételár több
részletben, az építkezés aktuális fázisaihoz igazodva kerül megfizetésre (pl.
alapozás, szerkezetkész állapot, tető, műszaki készültség, átadás).További
információért és részletes műszaki tartalomért kérem hívjon bizalommal!
ikerházak!A házak új építésű beruházás része, melynek kivitelezése hamarosan,
még az idei évben kezdődik!Új építésű ingatlanok szomszédságában kínálunk
megvételre kiváló elosztású, nettó 132 m˛-es ikerházakat. Az ingatlanok nappali
+ 3 szobás kialakításúak, erkélykapcsolattal, így ideális választás családok
számára is.A házakhoz saját kert, udvari beálló vagy garázs tartozik, biztosítva
a kényelmes parkolást és a nyugodt mindennapokat.A panorámás kilátás és a
csendes, fejlődő környezet különleges életminőséget nyújt leendő
tulajdonosának.A projekt keretében összesen 8 lakóegység kerül kialakításra,
melyek elrendezésüknek köszönhetően szinte teljesen különálló ház érzetét
nyújtják. Az ikerházak csak minimális felületen érintkeznek egymással ?
kizárólag a gépkocsibeállónál vagy a garázsnál kapcsolódnak ?, így biztosítva a
nagyobb privát szférát és nyugodt életteret.Minden ingatlanhoz saját, 250?400 m˛
közötti kert tartozik, amely ideális kert, pihenőkert vagy akár családi
programok kialakítására is.- 132 m˛ lakótér- nappali + 3 szoba- 8 m˛ erkély-
saját kert- garázs - udvari beálló- új építésű, modern környezet- panorámás
kilátásIdeális választás azoknak, akik nyugodt, mégis jól megközelíthető helyen
keresnek új otthont.A házak irányára: 172-195 millió FtMűszaki adatok:Az
ingatlan minőségi műszaki tartalommal épül, stabil, időtálló szerkezetekkel. Az
alapozás 60 cm széles vasalt beton sávalappal, valamint vasalt aljzatbetonnal
készül. A teherhordó falak 30 cm vastag Porotherm vázkerámia téglából, a
válaszfalak szintén kerámia falazattal épülnek, melyeket 15 cm vastag homlokzati
hőszigetelés egészít ki.A hideg 9000Ft/m2 és melegburkolatok 5000Ft/m2forint
költségkerettel. Hideg illetve melegburkolás az alaprajzok szerint.
Hidegburkolás hálós lapkiosztással, a pozitiv sarkokban natúr alumínium
élvédökkel történik, 20x40-es lapmérettöl 60x60-as lapméretig, helyiségenként 3
féleburkolattal. Jelenleg van lehetöség az eltérésre (nagyobb lapméretek,
gérvágás pozitív éleken)egyedi árajánlat alapján. Feszültség mentesitö szönyeg
kerül a burkolatok allá.A födém és a vízszintes szerkezetek monolit vasbeton
kivitelűek, a lépcső gipszbeton szerkezetű. A tető impregnált fa szerkezetű,
tartós beton cserépfedéssel, valamint modern acél pergola előtető is
kialakításra kerül.A nyílászárók korszerű, 3 rétegű üvegezésű műanyag ablakok,
kívül antracit, belül fehér színben, redőny előkészítéssel, igény szerint
zsaluzia lehetőséggel.A fűtésről kondenzációs gázkazán gondoskodik, Padlófűtés a
földszinten és az emeleten is, nappaliban 3,5Kw-os klíma, az emeleten a 3
szobában lég cserélő rendszer ami hűt és fűt.A vásárlás készültségi foknak
megfelelően, ütemezetten történik. A szerződéskötést követően a vételár több
részletben, az építkezés aktuális fázisaihoz igazodva kerül megfizetésre (pl.
alapozás, szerkezetkész állapot, tető, műszaki készültség, átadás).További
információért és részletes műszaki tartalomért kérem hívjon bizalommal!
Részletek...
Adatlap
| Ár: | 172.000.000 Ft |
| Település: | Diósd |
| A hirdető: | Ingatlaniroda ajánlatából |
| Értékesítés típusa: | Eladó |
| Használtság: | Új építésű |
| Telek nagysága (m2) : | 270 |
| Épület hasznos területe (m2) : | 132.00 |
| Szobák száma: | 4 |
| Feladás dátuma: | 2026.04.06 |
| Eddig megtekintették 0 alkalommal | |
A hirdető adatai
Kapcsolat a hirdetővel...
Családi házak rovaton belül a(z) "Modern élet čs nyugalom Diósd panorámás részén!" című hirdetést látja. (fent)




























