
Eladó ikerház Budapest, III. kerület, Pálvölgyi út
BEFEKTETÉSRE IS KIVÁLÓ ! PÁLVÖLGYI INGATLAN. RENDKÍVÜLI ÁRCSÖKKENÉS. Különleges
lehetőség Budán: két önálló lakás egy telken a Pálvölgyi-barlang
szomszédságában, karnyújtásnyira az erdőtől!Budán, a II. és III. kerület
határán, a festői szépségű Pálvölgyi-barlang szomszédságában kínáljuk megvételre
ezt a ritka adottságokkal rendelkező ingatlant, egy csendes, zöldövezeti
utcában.Az 500 m˛-es telekrészen egy ikerház egyik fele található, amely
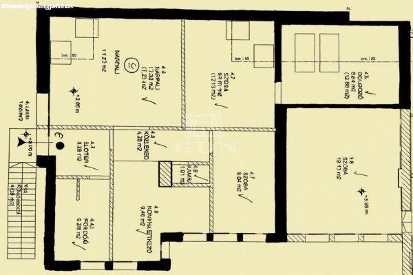
jelenleg két különálló, teljes értékű lakást foglal magában ? a földszinten lévő
lakás 84 m2, a tetőtéri lakás nettó 75 m2, egymás felett elhelyezkedve, saját
bejárattal. Az alsó és felső lakás különállóságának köszönhetően ideális
többgenerációs családoknak, összeköltözőknek vagy akár befektetőknek is.A felső
szint a 2000-es évek elején került kialakításra, amikor a korábbi tetőteret
betongerendás födémmel megerősítették és megemelt tetővel egy önálló lakássá
alakították. A felső szint külön, külső lépcsőn keresztül közelíthető meg.Főbb
jellemzők:Két teljesen önálló lakás (összesen a két lakás nettó 159 m˛)500 m˛-es
saját telekrész, zöld növényzettel kerített.Minden közmű adott az ingatlanon
belül: víz, gáz, villany, csatorna, internet.Stabil szerkezet, betongerenda
födém.Nyugodt, barátságos, zöldövezeti környék, kiváló szomszédokkal.Építési
lehetőség: az ingatlan az utcafront felé bővíthetőFejlesztési lehetőségek:Az új
tulajdonos dönthet úgy is, hogy a két lakást egybenyitja, így egy impozáns, 160+
m˛-es családi otthont alakíthat ki, vagy megtartja a jelenlegi kialakítást és
akár kiadásra is hasznosíthatja az egyik szintet.Lokáció:A ház elhelyezkedése
rendkívül előnyös: a természet közelsége, a barlang és a zöldövezet békéje
egyesül a városi infrastruktúra kényelmével. A belváros autóval és
tömegközlekedéssel is könnyen elérhető, mégis egy nyugodt, eldugott utcában
található.Az ingatlan kizárólag egyben eladó, a lakások külön nem elérhetők.Ez
az ingatlan egy igazi kuriózum a budai oldalon, a II. kerület és III. kerület
határán, ahol a nyugalom, a természetközeliség és a fejlesztési lehetőségek
egyaránt adottak. Ne hagyja ki ? ilyen lehetőség ritkán kerül a piacra!Ha
kérdése van, vagy szeretné megtekinteni az ingatlant, keressen
bizalommal!Investors notice! Price reduction! Unique Opportunity in Buda: Two
Independent Apartments on One Plot Near the Pálvölgyi Cave ? Just Steps from the
Forest!Located on the border of Budapest?s District II and III, right next to
the picturesque Pálvölgyi Cave, we are offering for sale this rare property in a
quiet, green residential street.Set on a 500 m˛ private plot, this semi-detached
house includes two fully separate apartments situated one above the other.The
ground floor apartment is 84 m˛,The attic-level apartment is 75 m˛ net,both with
separate entrances.This layout is ideal for multi-generational living,
co-housing solutions, or investment purposes.The upper floor was added in the
early 2000s, when the original attic was reinforced with concrete beam flooring
and converted into a fully functional apartment with a raised roof. The upper
unit is accessible via a private external staircase. Key Features:2 fully
self-contained apartments (total net area: 159 m˛)500 m˛ private garden,
enclosed by greenery and fencingAll utilities available on-site: water, gas,
electricity, sewer, high-speed internetSolid structure, reinforced with concrete
beam ceilingPeaceful, green neighborhood with friendly long-term
neighborsExpansion potential: the property can be extended toward the street
frontage based on current building regulations Development Options:The new owner
can choose to combine the two levels to create a spacious 160+ m˛ single-family
home, or retain the separate units and use one for rental income, guest
accommodation, or family. Location Highlights:The home offers the best of both
worlds ? peaceful, nature-surrounded living next to a national treasure, yet
within easy reach of the city center by car or public transport.Tucked away on a
quiet, hidden street, this is a true urban retreat. Please note: the property is
for sale as a whole ? the apartments are not available separately.This is a rare
gem on the Buda side, at the crossroads of District II and III ? where
tranquility, nature, and future potential all come together. Don?t miss out ?
opportunities like this are few and far between! Feel free to contact us with
any questions or to schedule a viewing. ...TOVÁBBI, TÖBBEZRES INGATLAN KÍNÁLAT:
www.gdn-ingatlan.hu - GDN azonosító: 387926
lehetőség Budán: két önálló lakás egy telken a Pálvölgyi-barlang
szomszédságában, karnyújtásnyira az erdőtől!Budán, a II. és III. kerület
határán, a festői szépségű Pálvölgyi-barlang szomszédságában kínáljuk megvételre
ezt a ritka adottságokkal rendelkező ingatlant, egy csendes, zöldövezeti
utcában.Az 500 m˛-es telekrészen egy ikerház egyik fele található, amely
jelenleg két különálló, teljes értékű lakást foglal magában ? a földszinten lévő
lakás 84 m2, a tetőtéri lakás nettó 75 m2, egymás felett elhelyezkedve, saját
bejárattal. Az alsó és felső lakás különállóságának köszönhetően ideális
többgenerációs családoknak, összeköltözőknek vagy akár befektetőknek is.A felső
szint a 2000-es évek elején került kialakításra, amikor a korábbi tetőteret
betongerendás födémmel megerősítették és megemelt tetővel egy önálló lakássá
alakították. A felső szint külön, külső lépcsőn keresztül közelíthető meg.Főbb
jellemzők:Két teljesen önálló lakás (összesen a két lakás nettó 159 m˛)500 m˛-es
saját telekrész, zöld növényzettel kerített.Minden közmű adott az ingatlanon
belül: víz, gáz, villany, csatorna, internet.Stabil szerkezet, betongerenda
födém.Nyugodt, barátságos, zöldövezeti környék, kiváló szomszédokkal.Építési
lehetőség: az ingatlan az utcafront felé bővíthetőFejlesztési lehetőségek:Az új
tulajdonos dönthet úgy is, hogy a két lakást egybenyitja, így egy impozáns, 160+
m˛-es családi otthont alakíthat ki, vagy megtartja a jelenlegi kialakítást és
akár kiadásra is hasznosíthatja az egyik szintet.Lokáció:A ház elhelyezkedése
rendkívül előnyös: a természet közelsége, a barlang és a zöldövezet békéje
egyesül a városi infrastruktúra kényelmével. A belváros autóval és
tömegközlekedéssel is könnyen elérhető, mégis egy nyugodt, eldugott utcában
található.Az ingatlan kizárólag egyben eladó, a lakások külön nem elérhetők.Ez
az ingatlan egy igazi kuriózum a budai oldalon, a II. kerület és III. kerület
határán, ahol a nyugalom, a természetközeliség és a fejlesztési lehetőségek
egyaránt adottak. Ne hagyja ki ? ilyen lehetőség ritkán kerül a piacra!Ha
kérdése van, vagy szeretné megtekinteni az ingatlant, keressen
bizalommal!Investors notice! Price reduction! Unique Opportunity in Buda: Two
Independent Apartments on One Plot Near the Pálvölgyi Cave ? Just Steps from the
Forest!Located on the border of Budapest?s District II and III, right next to
the picturesque Pálvölgyi Cave, we are offering for sale this rare property in a
quiet, green residential street.Set on a 500 m˛ private plot, this semi-detached
house includes two fully separate apartments situated one above the other.The
ground floor apartment is 84 m˛,The attic-level apartment is 75 m˛ net,both with
separate entrances.This layout is ideal for multi-generational living,
co-housing solutions, or investment purposes.The upper floor was added in the
early 2000s, when the original attic was reinforced with concrete beam flooring
and converted into a fully functional apartment with a raised roof. The upper
unit is accessible via a private external staircase. Key Features:2 fully
self-contained apartments (total net area: 159 m˛)500 m˛ private garden,
enclosed by greenery and fencingAll utilities available on-site: water, gas,
electricity, sewer, high-speed internetSolid structure, reinforced with concrete
beam ceilingPeaceful, green neighborhood with friendly long-term
neighborsExpansion potential: the property can be extended toward the street
frontage based on current building regulations Development Options:The new owner
can choose to combine the two levels to create a spacious 160+ m˛ single-family
home, or retain the separate units and use one for rental income, guest
accommodation, or family. Location Highlights:The home offers the best of both
worlds ? peaceful, nature-surrounded living next to a national treasure, yet
within easy reach of the city center by car or public transport.Tucked away on a
quiet, hidden street, this is a true urban retreat. Please note: the property is
for sale as a whole ? the apartments are not available separately.This is a rare
gem on the Buda side, at the crossroads of District II and III ? where
tranquility, nature, and future potential all come together. Don?t miss out ?
opportunities like this are few and far between! Feel free to contact us with
any questions or to schedule a viewing. ...TOVÁBBI, TÖBBEZRES INGATLAN KÍNÁLAT:
www.gdn-ingatlan.hu - GDN azonosító: 387926
Részletek...
Adatlap
| Ár: | 215.000.000 Ft |
| Település: | III. kerület |
| A hirdető: | Ingatlaniroda ajánlatából |
| Értékesítés típusa: | Eladó |
| Használtság: | Használt |
| Utca: | Pálvölgyi út |
| Telek nagysága (m2) : | 500 |
| Épület hasznos területe (m2) : | 159 |
| Szobák száma: | 7 |
| Fűtés: | Cirkó fűtéses |
| Ingatlan állapota: | Felújítandó |
| Anyaga: | Tégla |
| A hirdető kérése: | Ingatlanközvetítő vagyok - keresse fel Irodánkat! |
| Feladás dátuma: | 2026.04.04 |
| Eddig megtekintették 44 alkalommal | |
A hirdető adatai
Kapcsolat a hirdetővel...
Családi házak rovaton belül a(z) "Eladó ikerház Budapest, III. kerület, Pálvölgyi út" című hirdetést látja. (fent)




























