
Eladó ikerház Pécel, Százszorszép utca
Pécelen a Százszorszép utca 61. szám alatt 1009m2-es telkeken, újonnan épülő
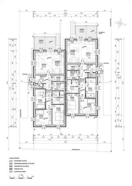
nettó 99,66 m2 hasznos lakótérrel rendelkező, kulcsrakész ikerházfelek eladóak!A
bal oldali ikerfél elkelt!Az ingatlanok 30-as Nútféderes tégla falazóelemből
épülnek, fa födémmel. A tető héjazata antracit síkcserép lesz, a homlokzatok
15cm EPS, a padló 10cm lépésálló, a födém 25cm ásványgyapot szigeteléssel lesz
ellátva.A külső nyílászárók 6 légkamrás háromrétegű üveggel szerelt műanyag
thermók lesznek.A fűtést monoblockos hőszivattyús rendszer fogja ellátni,
padlófűtéssel.A teraszok alatt tároló kerül kialakításra.Klíma előkészítés is
készül.Műszaki tartalom:-Csempe, járólap 5000 ft/m˛-Meleg burkolat 5000
Ft/m˛-Fürdőkád vagy Zuhanyzó: 60.000.- Ft-Beltéri ajtók br. 50.000.- Ft.
/db-Csaptelepek: 15.000.- Ft. /dbMagasabb árú választás is lehetséges a
különbség finanszírozásával.Elektromos kiépítés:-60db szerelvény /konnektor,
kapcsoló, tv, internet/-Kábeltévé: Előkészítés-Kapumozgató elektronika:
előkészítés-Riasztó: előkészítésAz utcafronti kerítés színezett zsalukővel, fa
lécezéssel készül.Tervezett átadás 2026 második negyedév.Érdeklődő ügyfeleinknek
a tervdokumetációt és a műszaki tartalmat készséggel rendelkezésre bocsájtjuk.A
kivitelező korábban számos ingatlant épített Isaszegen, Sülysápon, Dányban.
Komoly érdeklődés esetén szívesen mutatunk referenciát!INGYENES hitel
tanácsadás, CSOK Plusz és Otthon Start ügyintézés!BANKFÜGGETLEN hitelcentrumunk
az összes elérhető bank és hitelintézet ajánlatát versenyezteti az Ön kedvéért,
ráadásul DÍJMENTESEN.- Egyedi, bankfiókban nem elérhető kamat- és
díjkedvezmények- Hitelképesség vizsgálat- Idő, energia és pénz megtakarítás-
Teljes hivatali ügyintézésAmennyiben hirdetésem felkeltette az érdeklődését vagy
egyéb információra van szüksége hívjon bizalommal! ...TOVÁBBI, TÖBBEZRES
INGATLAN KÍNÁLAT: www.gdn-ingatlan.hu - GDN azonosító: 388119
nettó 99,66 m2 hasznos lakótérrel rendelkező, kulcsrakész ikerházfelek eladóak!A
bal oldali ikerfél elkelt!Az ingatlanok 30-as Nútféderes tégla falazóelemből
épülnek, fa födémmel. A tető héjazata antracit síkcserép lesz, a homlokzatok
15cm EPS, a padló 10cm lépésálló, a födém 25cm ásványgyapot szigeteléssel lesz
ellátva.A külső nyílászárók 6 légkamrás háromrétegű üveggel szerelt műanyag
thermók lesznek.A fűtést monoblockos hőszivattyús rendszer fogja ellátni,
padlófűtéssel.A teraszok alatt tároló kerül kialakításra.Klíma előkészítés is
készül.Műszaki tartalom:-Csempe, járólap 5000 ft/m˛-Meleg burkolat 5000
Ft/m˛-Fürdőkád vagy Zuhanyzó: 60.000.- Ft-Beltéri ajtók br. 50.000.- Ft.
/db-Csaptelepek: 15.000.- Ft. /dbMagasabb árú választás is lehetséges a
különbség finanszírozásával.Elektromos kiépítés:-60db szerelvény /konnektor,
kapcsoló, tv, internet/-Kábeltévé: Előkészítés-Kapumozgató elektronika:
előkészítés-Riasztó: előkészítésAz utcafronti kerítés színezett zsalukővel, fa
lécezéssel készül.Tervezett átadás 2026 második negyedév.Érdeklődő ügyfeleinknek
a tervdokumetációt és a műszaki tartalmat készséggel rendelkezésre bocsájtjuk.A
kivitelező korábban számos ingatlant épített Isaszegen, Sülysápon, Dányban.
Komoly érdeklődés esetén szívesen mutatunk referenciát!INGYENES hitel
tanácsadás, CSOK Plusz és Otthon Start ügyintézés!BANKFÜGGETLEN hitelcentrumunk
az összes elérhető bank és hitelintézet ajánlatát versenyezteti az Ön kedvéért,
ráadásul DÍJMENTESEN.- Egyedi, bankfiókban nem elérhető kamat- és
díjkedvezmények- Hitelképesség vizsgálat- Idő, energia és pénz megtakarítás-
Teljes hivatali ügyintézésAmennyiben hirdetésem felkeltette az érdeklődését vagy
egyéb információra van szüksége hívjon bizalommal! ...TOVÁBBI, TÖBBEZRES
INGATLAN KÍNÁLAT: www.gdn-ingatlan.hu - GDN azonosító: 388119
Részletek...
Adatlap
| Ár: | 105.000.000 Ft |
| Település: | Pécel |
| A hirdető: | Ingatlaniroda ajánlatából |
| Értékesítés típusa: | Eladó |
| Használtság: | Új építésű |
| Utca: | Százszorszép utca |
| Telek nagysága (m2) : | 504 |
| Épület hasznos területe (m2) : | 100 |
| Szobák száma: | 4 |
| Anyaga: | Tégla |
| A hirdető kérése: | Ingatlanközvetítő vagyok - keresse fel Irodánkat! |
| Feladás dátuma: | 2026.02.03 |
| Eddig megtekintették 38 alkalommal | |
A hirdető adatai
Kapcsolat a hirdetővel...
Családi házak rovaton belül a(z) "Eladó ikerház Pécel, Százszorszép utca" című hirdetést látja. (fent)




























