
Eladó családi ház Budapest, XVI. kerület, Szilaj utca
Eladó elegáns családi ház a XVI. kerület nyugodt, csendes egyik legkedveltebb
utcájában Szilaj utcájában!A ház 1990-ben épült, 2000-ben teljeskörű felújításon
esett át.A óriási ablakoknak köszönhetően a ház rendkívül világos, gyönyörű
természetes fényekkel rendelkezik.Tágas előszoba, külön cipőgardróbbal
kifejezetten a hölgyek kényelmét szolgálva.A ház stílusában hagyományőrző,
polgári elegancia jelenik meg, pasztell színekkel és klasszikus
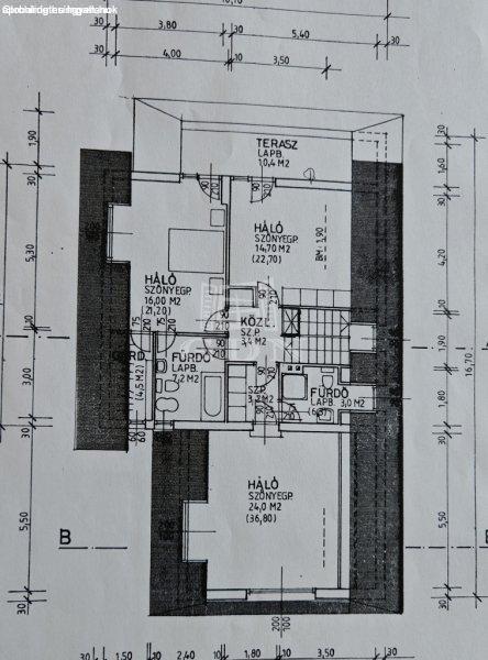
formákkal.Műszaki adatok A ház kétszintes:- az alsó szinten padlófűtés,- az
emeleten radiátoros hőleadók működnek,-a fűtést és a melegvizet Vaillant kazán
biztosítja.-30-as téglából épült, 10 cm dryvit szigeteléssel, így kiváló
hőszigetelést biztosít.-A műanyag nyílászárók szúnyoghálóval és elektromos
redőnyökkel felszereltek.-A villanyvezetékek korszerűek, 3×32 A áll
rendelkezésre.Fő paraméterek:Lakótér: 225 nmNappali ? étkező ? konyha egy
légtérben, innen kijárat a80 nm-es óriási teraszra.Dupla fűtött garázs
bejárattal a házba.Emelet:- 3 hálószoba- gardrób- 10 nm erkélyDupla
komfortos,nagy kádas fürdőszoba és zuhanyzós fürdőszoba is rendelkezésre áll.Így
a mindennapok kényelmesek akár nagy család számára is.Kert ? 882 nmA kertben
gyönyörűen beállt növények, benne egy csodaszép fenyő fa,rendezett,intim,
kíváncsi szemek nem látnak be így békés pihenést nyújt.Itt kapott helyet az 5×8
méteres fűthető medence nagy terasz,valamint kerti tároló is.A kényelmet tovább
növeli az elektromos úszókapu és garázskapu.A teljes ház riasztórendszerrel
ellátott, a hálószobákban klímák találhatók.Elhelyezkedés:Családi házas környék,
kedves szomszédokkal és kiváló közlekedéssel rendelkezik. Iskolák, óvoda,
bevásárlási lehetőségek és buszmegállók pár percen belül elérhetők.Ez az
ingatlan tökéletes választás azok számára, akik csendes, zöldövezeti
környezetben, mégis kényelmes, elegáns és praktikus otthont keresnek.Jöjjön el
nézze meg és tegyen ajánlatot.I.V. ...TOVÁBBI, TÖBBEZRES INGATLAN KÍNÁLAT:
www.gdn-ingatlan.hu - GDN azonosító: 389055
utcájában Szilaj utcájában!A ház 1990-ben épült, 2000-ben teljeskörű felújításon
esett át.A óriási ablakoknak köszönhetően a ház rendkívül világos, gyönyörű
természetes fényekkel rendelkezik.Tágas előszoba, külön cipőgardróbbal
kifejezetten a hölgyek kényelmét szolgálva.A ház stílusában hagyományőrző,
polgári elegancia jelenik meg, pasztell színekkel és klasszikus
formákkal.Műszaki adatok A ház kétszintes:- az alsó szinten padlófűtés,- az
emeleten radiátoros hőleadók működnek,-a fűtést és a melegvizet Vaillant kazán
biztosítja.-30-as téglából épült, 10 cm dryvit szigeteléssel, így kiváló
hőszigetelést biztosít.-A műanyag nyílászárók szúnyoghálóval és elektromos
redőnyökkel felszereltek.-A villanyvezetékek korszerűek, 3×32 A áll
rendelkezésre.Fő paraméterek:Lakótér: 225 nmNappali ? étkező ? konyha egy
légtérben, innen kijárat a80 nm-es óriási teraszra.Dupla fűtött garázs
bejárattal a házba.Emelet:- 3 hálószoba- gardrób- 10 nm erkélyDupla
komfortos,nagy kádas fürdőszoba és zuhanyzós fürdőszoba is rendelkezésre áll.Így
a mindennapok kényelmesek akár nagy család számára is.Kert ? 882 nmA kertben
gyönyörűen beállt növények, benne egy csodaszép fenyő fa,rendezett,intim,
kíváncsi szemek nem látnak be így békés pihenést nyújt.Itt kapott helyet az 5×8
méteres fűthető medence nagy terasz,valamint kerti tároló is.A kényelmet tovább
növeli az elektromos úszókapu és garázskapu.A teljes ház riasztórendszerrel
ellátott, a hálószobákban klímák találhatók.Elhelyezkedés:Családi házas környék,
kedves szomszédokkal és kiváló közlekedéssel rendelkezik. Iskolák, óvoda,
bevásárlási lehetőségek és buszmegállók pár percen belül elérhetők.Ez az
ingatlan tökéletes választás azok számára, akik csendes, zöldövezeti
környezetben, mégis kényelmes, elegáns és praktikus otthont keresnek.Jöjjön el
nézze meg és tegyen ajánlatot.I.V. ...TOVÁBBI, TÖBBEZRES INGATLAN KÍNÁLAT:
www.gdn-ingatlan.hu - GDN azonosító: 389055
Részletek...
Adatlap
| Ár: | 269.900.000 Ft |
| Település: | XVI. kerület |
| A hirdető: | Ingatlaniroda ajánlatából |
| Értékesítés típusa: | Eladó |
| Használtság: | Használt |
| Utca: | Szilaj utca |
| Telek nagysága (m2) : | 882 |
| Épület hasznos területe (m2) : | 225 |
| Szobák száma: | 4 |
| Fűtés: | Cirkó fűtéses |
| Ingatlan állapota: | Normál állapotú |
| Anyaga: | Tégla |
| A hirdető kérése: | Ingatlanközvetítő vagyok - keresse fel Irodánkat! |
| Feladás dátuma: | 2026.05.02 |
| Eddig megtekintették 72 alkalommal | |
A hirdető adatai
Kapcsolat a hirdetővel...
Családi házak rovaton belül a(z) "Eladó családi ház Budapest, XVI. kerület, Szilaj utca" című hirdetést látja. (fent)




























