
Eladó ikerház Százhalombatta, ÚJ ÉPÍTÉSŰ IKERHÁZ!
Százhalombatta családi házas övezetében, az Óvárosban kínálunk megvételre két
lakóegységből álló ikerházat. A kivitelező cég számos százhalombattai
referenciamunkával rendelkezik, aki több éve megbízhatóan, pontos határidőkkel
végzi a kivitelezést ügyfelei legnagyobb megelégedésére.Az építkezés
folyamatosan halad, várható befejezés 2026 ősz.Az ikerházi lakások társasházi
alapító okirattal, külön helyrajzi számmal (albetétesítve) és külön mérőórákkal,
saját kertrésszel, megosztással kerülnek átadásra a leendő tulajdonosok
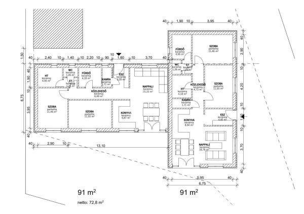
részére.1.lakás: bruttó 91 nm, nettó 72,8 nm + 6 nm terasztelekterület: 400
nmszobaszám: 1+2KÜLÖNÁLLÓ, SAJÁT GARÁZS a telekrészen belül!2.lakás: ELKELT!
bruttó 91 nm, nettó 72,8 nm + 6 nm terasztelekterület: 400 nmszobaszám: 1+2Az ár
a befejezett, KULCSRAKÉSZ állapotra vonatkozik!Főbb műszaki paraméterek:- alap:
vasalt, szigetelt beton sávalap- tartófalazat: 30-as Porotherm XTherm okostégla-
válaszfalak: 10-es Ytong- szigetelés: homlokzat 15 cm dryvit, lábazat 10-cm xps-
födém: a szerkezetű, 25 cm fújt cellulóz szigeteléssel- fűtés: Panasonic
hőszivattyú (5kW), padlófűtés hőleadással- melegvíz: hőszivattyúra kötött 200
literes HMV tartály- nyílászárók: fehér, három rétegű hő-és hangszigetelt,
beépített redőnytokkalA belső ajtók 50.000 Ft/db, a hideg-és meleg burkolatok
4.000 Ft/nm áron a vevő által szabadon választhatóak.Az érdeklődők részére
teljes műszaki és fotódokumentáció rendelkezésre áll, valamint már elkészült
referencia házak is megtekinthetőek.OtthonSart, CSOK Plusz és piaci hitel
igénybe vehető, melyben ingatlanirodánk BANKFÜGGETLEN hitelcentruma, DÍJMENTESEN
áll érdeklődőink rendelkezésére.- Egyedi, bankfiókban nem elérhető kamat- és
díjkedvezmények- Hitelképesség vizsgálat- Idő, energia és pénz megtakarítás-
Teljes hivatali ügyintézésNe maradjon le róla!További információkért és
megtekintéssel kapcsolatban várom jelentkezését a hét minden napján.A
hirdetésben szereplő adatok tájékoztató jellegűek, nem minősülnek
ajánlattételnek. ...TOVÁBBI, TÖBBEZRES INGATLAN KÍNÁLAT: www.gdn-ingatlan.hu -
GDN azonosító: 389873
lakóegységből álló ikerházat. A kivitelező cég számos százhalombattai
referenciamunkával rendelkezik, aki több éve megbízhatóan, pontos határidőkkel
végzi a kivitelezést ügyfelei legnagyobb megelégedésére.Az építkezés
folyamatosan halad, várható befejezés 2026 ősz.Az ikerházi lakások társasházi
alapító okirattal, külön helyrajzi számmal (albetétesítve) és külön mérőórákkal,
saját kertrésszel, megosztással kerülnek átadásra a leendő tulajdonosok
részére.1.lakás: bruttó 91 nm, nettó 72,8 nm + 6 nm terasztelekterület: 400
nmszobaszám: 1+2KÜLÖNÁLLÓ, SAJÁT GARÁZS a telekrészen belül!2.lakás: ELKELT!
bruttó 91 nm, nettó 72,8 nm + 6 nm terasztelekterület: 400 nmszobaszám: 1+2Az ár
a befejezett, KULCSRAKÉSZ állapotra vonatkozik!Főbb műszaki paraméterek:- alap:
vasalt, szigetelt beton sávalap- tartófalazat: 30-as Porotherm XTherm okostégla-
válaszfalak: 10-es Ytong- szigetelés: homlokzat 15 cm dryvit, lábazat 10-cm xps-
födém: a szerkezetű, 25 cm fújt cellulóz szigeteléssel- fűtés: Panasonic
hőszivattyú (5kW), padlófűtés hőleadással- melegvíz: hőszivattyúra kötött 200
literes HMV tartály- nyílászárók: fehér, három rétegű hő-és hangszigetelt,
beépített redőnytokkalA belső ajtók 50.000 Ft/db, a hideg-és meleg burkolatok
4.000 Ft/nm áron a vevő által szabadon választhatóak.Az érdeklődők részére
teljes műszaki és fotódokumentáció rendelkezésre áll, valamint már elkészült
referencia házak is megtekinthetőek.OtthonSart, CSOK Plusz és piaci hitel
igénybe vehető, melyben ingatlanirodánk BANKFÜGGETLEN hitelcentruma, DÍJMENTESEN
áll érdeklődőink rendelkezésére.- Egyedi, bankfiókban nem elérhető kamat- és
díjkedvezmények- Hitelképesség vizsgálat- Idő, energia és pénz megtakarítás-
Teljes hivatali ügyintézésNe maradjon le róla!További információkért és
megtekintéssel kapcsolatban várom jelentkezését a hét minden napján.A
hirdetésben szereplő adatok tájékoztató jellegűek, nem minősülnek
ajánlattételnek. ...TOVÁBBI, TÖBBEZRES INGATLAN KÍNÁLAT: www.gdn-ingatlan.hu -
GDN azonosító: 389873
Részletek...
Adatlap
| Ár: | 80.000.000 Ft |
| Település: | Százhalombatta |
| A hirdető: | Ingatlaniroda ajánlatából |
| Értékesítés típusa: | Eladó |
| Használtság: | Új építésű |
| Utca: | ÚJ ÉPÍTÉSŰ IKERHÁZ! |
| Telek nagysága (m2) : | 400 |
| Épület hasznos területe (m2) : | 91 |
| Szobák száma: | 1 |
| Félszobák száma: | 2 |
| Anyaga: | Tégla |
| A hirdető kérése: | Ingatlanközvetítő vagyok - keresse fel Irodánkat! |
| Feladás dátuma: | 2025.12.24 |
| Eddig megtekintették 14 alkalommal | |
A hirdető adatai
Kapcsolat a hirdetővel...
Családi házak rovaton belül a(z) "Eladó ikerház Százhalombatta, ÚJ ÉPÍTÉSŰ IKERHÁZ!" című hirdetést látja. (fent)




























