
Eladó ikerház Budapest, XXII. kerület, GARÁZZSAL ÉRINTKEZŐ
XXII. kerület Óhegy csendes kertvárosias környezetében, összesen 1000 m2-es
telken épülő 2 db(,"A" és "B" jelű)130 m2-es 5 szobás, fürdőszobás nagy
teraszos ,garázzsal érintkező házak közül CSAK A "B" JELŰ HÁZAT KÍNÁLJUK
MEGVÉTELRE !FONTOS ! Az "A" és "B" jelű házak garázsai beépítésre
kerültek,fürdőszoba, gardrób kerül kialakításra.A garázs alapterülete 14,74 m2AZ
"A" jelű HÁZ ELADÁSRA KERÜLT !Mindkét ház ALAPRAJZA, TELEK MÉRETE,
KIVITELEZÉSE AZONOS !A megvételre kínált: "B" jelű ingatlan KULCSRAKÉSZ ÁRA:
168 millió FtAz ingatlanok saját 500 m2-es szeparált telek résszel, egyállásos
garázzsal, térkövezett kocsibeállóval, külön mérőórákkal rendelkeznek.A két
lakás két épület tömbben helyezkedik el.Az épületeket két garázs köti
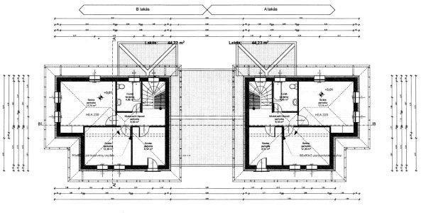
össze.Helyiségei:FÖLDSZINTEN: előszoba (5,7 m2), WC kézmosóval, nappali (31,25
m2), konyha-étkező (8,40 m2), vendégszoba (8 m2).EMELETEN közlekedő(9,3 m2),
fürdőszoba(5 m2), 3 hálószoba (17,7 m2, 12,2 m2 és 8,5 m2 méretűek.)A
MÉRETEKET, ELRENDEZÉST LÁSD AZ ALAPRAJZOKON !MŰSZAKI TARTALOM:-Porotherm 30-as
falazat,15 cm külső homlokzati szigetelés-25 cm tetőszigetelés,12 cm lábazat xps
szigetelés-két szint között E gerendás vasbeton födém-Leier beton
cserép,csatorna rendszerrel-3 rétegű üvegezéssel ellátott, műanyag
nyílászárók-elektromos alumínium redőnyök, szúnyoghálóval-minden helyiségben
padló fűtés, helyiségenként szabályozható osztógyűrűvel-Hőszivattyú 10
KWh-Vízmelegítő hibrid 100 L-Villamos energia :1x32 A, 1x25 A H tarifás
villanyóra-Hideg és meleg burkolatok 8000 Ft /m2, beltéri ajtók 80.000 Ft /db,
kád 100.000 Ft/db, szaniterek 30.000 Ft / db árig választhatók amit tartalmaz
az ingatlan vételára.Átadás előtt, tereprendezésre kerül sor, építési törmelék
elszállítása,talaj kiegyenlítés.TERVEZETT ÁTADÁS IDŐPONTJA : 2026. II. negyedév
A "B" jelű ingatlan eladási ára : 168 millió FtA HÁZAK ÖNÁLLÓ MÉRŐÓRÁKKAL,
HASZNÁLATBAVÉTELI ENGEDÉLLYEL, TÁRSASHÁZ ALAPÍTÓ OKIRATTAL és H-TARIFÁS
VILLANYÓRÁVAL kerülnek átadásra.A környék lokációja jó, közelben iskola, óvoda,
orvosi rendelő, bevásárlási lehetőség található.Az ingatlan megtekintése előre
egyeztetett időpontban lehetséges.VÁROM HÍVÁSÁT, TOVÁBBI KÉRDÉSEIVEL
kapcsolatosan JELENTKEZÉSÉT!(G.I.) ...TOVÁBBI, TÖBBEZRES INGATLAN KÍNÁLAT:
www.gdn-ingatlan.hu - GDN azonosító: 390874
telken épülő 2 db(,"A" és "B" jelű)130 m2-es 5 szobás, fürdőszobás nagy
teraszos ,garázzsal érintkező házak közül CSAK A "B" JELŰ HÁZAT KÍNÁLJUK
MEGVÉTELRE !FONTOS ! Az "A" és "B" jelű házak garázsai beépítésre
kerültek,fürdőszoba, gardrób kerül kialakításra.A garázs alapterülete 14,74 m2AZ
"A" jelű HÁZ ELADÁSRA KERÜLT !Mindkét ház ALAPRAJZA, TELEK MÉRETE,
KIVITELEZÉSE AZONOS !A megvételre kínált: "B" jelű ingatlan KULCSRAKÉSZ ÁRA:
168 millió FtAz ingatlanok saját 500 m2-es szeparált telek résszel, egyállásos
garázzsal, térkövezett kocsibeállóval, külön mérőórákkal rendelkeznek.A két
lakás két épület tömbben helyezkedik el.Az épületeket két garázs köti
össze.Helyiségei:FÖLDSZINTEN: előszoba (5,7 m2), WC kézmosóval, nappali (31,25
m2), konyha-étkező (8,40 m2), vendégszoba (8 m2).EMELETEN közlekedő(9,3 m2),
fürdőszoba(5 m2), 3 hálószoba (17,7 m2, 12,2 m2 és 8,5 m2 méretűek.)A
MÉRETEKET, ELRENDEZÉST LÁSD AZ ALAPRAJZOKON !MŰSZAKI TARTALOM:-Porotherm 30-as
falazat,15 cm külső homlokzati szigetelés-25 cm tetőszigetelés,12 cm lábazat xps
szigetelés-két szint között E gerendás vasbeton födém-Leier beton
cserép,csatorna rendszerrel-3 rétegű üvegezéssel ellátott, műanyag
nyílászárók-elektromos alumínium redőnyök, szúnyoghálóval-minden helyiségben
padló fűtés, helyiségenként szabályozható osztógyűrűvel-Hőszivattyú 10
KWh-Vízmelegítő hibrid 100 L-Villamos energia :1x32 A, 1x25 A H tarifás
villanyóra-Hideg és meleg burkolatok 8000 Ft /m2, beltéri ajtók 80.000 Ft /db,
kád 100.000 Ft/db, szaniterek 30.000 Ft / db árig választhatók amit tartalmaz
az ingatlan vételára.Átadás előtt, tereprendezésre kerül sor, építési törmelék
elszállítása,talaj kiegyenlítés.TERVEZETT ÁTADÁS IDŐPONTJA : 2026. II. negyedév
A "B" jelű ingatlan eladási ára : 168 millió FtA HÁZAK ÖNÁLLÓ MÉRŐÓRÁKKAL,
HASZNÁLATBAVÉTELI ENGEDÉLLYEL, TÁRSASHÁZ ALAPÍTÓ OKIRATTAL és H-TARIFÁS
VILLANYÓRÁVAL kerülnek átadásra.A környék lokációja jó, közelben iskola, óvoda,
orvosi rendelő, bevásárlási lehetőség található.Az ingatlan megtekintése előre
egyeztetett időpontban lehetséges.VÁROM HÍVÁSÁT, TOVÁBBI KÉRDÉSEIVEL
kapcsolatosan JELENTKEZÉSÉT!(G.I.) ...TOVÁBBI, TÖBBEZRES INGATLAN KÍNÁLAT:
www.gdn-ingatlan.hu - GDN azonosító: 390874
Részletek...
Adatlap
| Ár: | 168.000.000 Ft |
| Település: | XXII. kerület |
| A hirdető: | Ingatlaniroda ajánlatából |
| Értékesítés típusa: | Eladó |
| Használtság: | Új építésű |
| Utca: | GARÁZZSAL ÉRINTKEZŐ ÚJ IKERHÁZ |
| Telek nagysága (m2) : | 500 |
| Épület hasznos területe (m2) : | 130 |
| Szobák száma: | 5 |
| Anyaga: | Tégla |
| A hirdető kérése: | Ingatlanközvetítő vagyok - keresse fel Irodánkat! |
| Feladás dátuma: | 2026.04.21 |
| Eddig megtekintették 60 alkalommal | |
A hirdető adatai
Kapcsolat a hirdetővel...
Családi házak rovaton belül a(z) "Eladó ikerház Budapest, XXII. kerület, GARÁZZSAL ÉRINTKEZŐ " című hirdetést látja. (fent)




























