
Eladó ház, Kecskemét
* ÚJ ÉPÍTÉSŰ NAPPALI + 3 SZOBÁS CSALÁDI HÁZ A VACSIKÖZBEN * Eladásra kínálunk
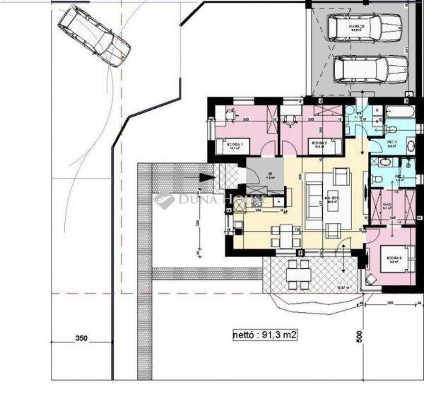
egy nettó 90 nm lakóterű, amerikai konyhás nappali + 3 szobás, PRÉMIUM műszaki
tartalommal, extra alacsony rezsivel megépülő családi ház projektet, fedett
autóbeállóval, 450 nm-es, közműves telken a Vacsiközben.AZ ÁR TARTALMAZZA A
TELEKÁRAT IS!!!Telek:- 450 nm (használati megosztással megosztott 910 nm-es
telek utcafronti része)- közművesített- új építésű, most kialakuló környezet-
csendes, nyugodt rész, belváros gyorsan elérhetőMűszaki tartalom: ( PRÉMIUM )-
Wienerberger - Porotherm X-therm Profi síkra-csiszolt ragasztott klímatégla- 15
cm EPS homlokzati hőszigetelés- Bramac vagy Terran betoncserép rendszer többféle
választható színben- 3 rétegű, 6 légkamrás argon gáz töltetű nyílászárók- RIGIPS
válaszfalrendszer Isover Akuplatt hangszigetelő betétpanellel- 25 cm befújt
cellulóz födém szigetelés- Levegő - víz hőszivattyú, padlófűtéssel- Jaf-Holz
dekor osztrák, beltéri ajtók, választható színben- Hideg/meleg burkolatok
választható: 8,500 Ft / m˛- Szaniterek választhatóak (kád, zuhanykabin,
csaptelep stb.) 1.000.000 Ft-ig- Redőnyrendszer 500.000 Ft-ig az árban-
Személyre szabott fizetési ütemezés- Előfinanszírozás a kivitelezésre-
Díjmentes, bankfüggetlen teljes körű CSOK és hitelügyintézésTulajdonságok:-
Nappali + amerikai konyha- Háztartási helyiség- 3 hálószoba- 2 fürdő-
Hálószobából nyíló gardrób- Fedett beálló (garázs kérhető, egyedi árazást
igényel)- Terasz, kerítés, térkövezés, kertépítés...stb igény esetén lehetséges
(egyedi árazást igényel)Az ár kulcsrakész átadással értendő, konyhabútor és
lámpatestek nélkül, a TELEK ÁRÁT TARTALMAZZA!Bővebb felvilágosításért, egyéb új
építésű lehetőségekkel kapcsolatban keressen bizalommal!
egy nettó 90 nm lakóterű, amerikai konyhás nappali + 3 szobás, PRÉMIUM műszaki
tartalommal, extra alacsony rezsivel megépülő családi ház projektet, fedett
autóbeállóval, 450 nm-es, közműves telken a Vacsiközben.AZ ÁR TARTALMAZZA A
TELEKÁRAT IS!!!Telek:- 450 nm (használati megosztással megosztott 910 nm-es
telek utcafronti része)- közművesített- új építésű, most kialakuló környezet-
csendes, nyugodt rész, belváros gyorsan elérhetőMűszaki tartalom: ( PRÉMIUM )-
Wienerberger - Porotherm X-therm Profi síkra-csiszolt ragasztott klímatégla- 15
cm EPS homlokzati hőszigetelés- Bramac vagy Terran betoncserép rendszer többféle
választható színben- 3 rétegű, 6 légkamrás argon gáz töltetű nyílászárók- RIGIPS
válaszfalrendszer Isover Akuplatt hangszigetelő betétpanellel- 25 cm befújt
cellulóz födém szigetelés- Levegő - víz hőszivattyú, padlófűtéssel- Jaf-Holz
dekor osztrák, beltéri ajtók, választható színben- Hideg/meleg burkolatok
választható: 8,500 Ft / m˛- Szaniterek választhatóak (kád, zuhanykabin,
csaptelep stb.) 1.000.000 Ft-ig- Redőnyrendszer 500.000 Ft-ig az árban-
Személyre szabott fizetési ütemezés- Előfinanszírozás a kivitelezésre-
Díjmentes, bankfüggetlen teljes körű CSOK és hitelügyintézésTulajdonságok:-
Nappali + amerikai konyha- Háztartási helyiség- 3 hálószoba- 2 fürdő-
Hálószobából nyíló gardrób- Fedett beálló (garázs kérhető, egyedi árazást
igényel)- Terasz, kerítés, térkövezés, kertépítés...stb igény esetén lehetséges
(egyedi árazást igényel)Az ár kulcsrakész átadással értendő, konyhabútor és
lámpatestek nélkül, a TELEK ÁRÁT TARTALMAZZA!Bővebb felvilágosításért, egyéb új
építésű lehetőségekkel kapcsolatban keressen bizalommal!
Részletek...
Adatlap
| Ár: | 94.300.000 Ft |
| Település: | Kecskemét |
| A hirdető: | Ingatlaniroda ajánlatából |
| Értékesítés típusa: | Eladó |
| Használtság: | Új építésű |
| Telek nagysága (m2) : | 450 |
| Épület hasznos területe (m2) : | 90.00 |
| Szobák száma: | 4 |
| Komfort: | Összkomfortos |
| Feladás dátuma: | 2026.05.06 |
| Eddig megtekintették 16 alkalommal | |
A hirdető adatai
Kapcsolat a hirdetővel...
Családi házak rovaton belül a(z) "Eladó ház, Kecskemét" című hirdetést látja. (fent)




























