
Eladó családi ház Siófok, Tóth Lajos u.
Siófokon eladásra kínálunk egy csendes kertvárosias részen lévő 87 m2 hasznos
alapterületű családi házat, 905 m2-es telekkel, a GDN Ingatlanhálózat
kínálatából.Tulajdonságok:- A Balatontól kb. 3 kilométerre helyezkedik el a
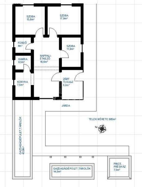
szépen karbantartott családi ház, + melléképületekkel.- Az üveges teraszról a
szép tágas előtérbe jutunk, innen nyílik a konyha étkezővel, a 3 szoba és a
fürdőszoba WC-vel. A konyhából még egy tágas kamra is található, a padlás
feljáróval. .- Továbbá a ház folytatásában melléképületek láthatóak és a
mellékletben található alaprajz szépen megmutatja azt, hogy például a pince hol
található a telken. - Víz, villany, gáz, csatorna a házba bekötésre került. A
kertben található még ásott kút és kerti csap is. - A tető hélyazata hódfarkú
cserép, a nyílászárók pedig műanyag és fa szerkezetűek, az ablakokat redőnnyel
látták el.- A ház fűtése gázkonvektorral megoldott, emellett még megtalálható
hűtő-fűtő klíma is. - A parkolás a telken belül több autónak is helyet ad, az út
aszfaltos. - A közelben található buszmegálló és különféle bevásárló üzletek. -
Ajánlom azoknak, akik Siófokon szeretnének letelepedni, valamint
ingatlanbefektetőknek!- Az ingatlan tehermentes!Ne hagyja ki ezt a remek
lehetőséget!Amennyiben a veszprémi GDN Ingatlaniroda által kínált családi ház,
vagy bármely, a kínálatunkban található ingatlan felkeltette érdeklődését,
forduljon hozzám bizalommal!Ingatlanirodánk díjmentes, banksemleges
hitelügyintézéssel, illetve ügyvédi tanácsadással is áll Ügyfeleink
rendelkezésére! ...TOVÁBBI, TÖBBEZRES INGATLAN KÍNÁLAT: www.gdn-ingatlan.hu -
GDN azonosító: 388485
alapterületű családi házat, 905 m2-es telekkel, a GDN Ingatlanhálózat
kínálatából.Tulajdonságok:- A Balatontól kb. 3 kilométerre helyezkedik el a
szépen karbantartott családi ház, + melléképületekkel.- Az üveges teraszról a
szép tágas előtérbe jutunk, innen nyílik a konyha étkezővel, a 3 szoba és a
fürdőszoba WC-vel. A konyhából még egy tágas kamra is található, a padlás
feljáróval. .- Továbbá a ház folytatásában melléképületek láthatóak és a
mellékletben található alaprajz szépen megmutatja azt, hogy például a pince hol
található a telken. - Víz, villany, gáz, csatorna a házba bekötésre került. A
kertben található még ásott kút és kerti csap is. - A tető hélyazata hódfarkú
cserép, a nyílászárók pedig műanyag és fa szerkezetűek, az ablakokat redőnnyel
látták el.- A ház fűtése gázkonvektorral megoldott, emellett még megtalálható
hűtő-fűtő klíma is. - A parkolás a telken belül több autónak is helyet ad, az út
aszfaltos. - A közelben található buszmegálló és különféle bevásárló üzletek. -
Ajánlom azoknak, akik Siófokon szeretnének letelepedni, valamint
ingatlanbefektetőknek!- Az ingatlan tehermentes!Ne hagyja ki ezt a remek
lehetőséget!Amennyiben a veszprémi GDN Ingatlaniroda által kínált családi ház,
vagy bármely, a kínálatunkban található ingatlan felkeltette érdeklődését,
forduljon hozzám bizalommal!Ingatlanirodánk díjmentes, banksemleges
hitelügyintézéssel, illetve ügyvédi tanácsadással is áll Ügyfeleink
rendelkezésére! ...TOVÁBBI, TÖBBEZRES INGATLAN KÍNÁLAT: www.gdn-ingatlan.hu -
GDN azonosító: 388485
Részletek...
Adatlap
| Ár: | 55.000.000 Ft |
| Település: | Siófok |
| A hirdető: | Ingatlaniroda ajánlatából |
| Értékesítés típusa: | Eladó |
| Használtság: | Használt |
| Utca: | Tóth Lajos u. |
| Telek nagysága (m2) : | 905 |
| Épület hasznos területe (m2) : | 87 |
| Szobák száma: | 3 |
| Fűtés: | Gázfűtéses |
| Ingatlan állapota: | Normál állapotú |
| Anyaga: | Tégla |
| A hirdető kérése: | Ingatlanközvetítő vagyok - keresse fel Irodánkat! |
| Feladás dátuma: | 2026.01.18 |
| Eddig megtekintették 36 alkalommal | |
A hirdető adatai
Kapcsolat a hirdetővel...
Családi házak rovaton belül a(z) "Eladó családi ház Siófok, Tóth Lajos u." című hirdetést látja. (fent)




























