
Felújítható családi ház nagy telekkel, csendes utcában! - Mo
Ha olyan otthont keresel, amit saját ízlésedre formálhatsz, ahol a nagy telek
miatt szabadon tervezhetsz kertet, teraszt, garázst vagy akár bővítést, akkor ez
a ház remek lehetőség.A 72 m˛-es családi ház egy 1000 m˛-es, gondozható, széles
utcafrontú telken helyezkedik el, a város egyik csendes, jól lakható részén. A
ház 1964-ben épült, stabil alapokkal és szép arányú helyiségekkel ? a felújítás
pedig teret ad annak, hogy pontosan olyan otthont alakíts ki, amilyenre
vágysz.Amit már nem kell kicserélned: Műanyag, hőszigetelt nyílászárók Kiépített
gázkonvektoros fűtés Több helyiségben cserépkályha is használható 10 m˛-es
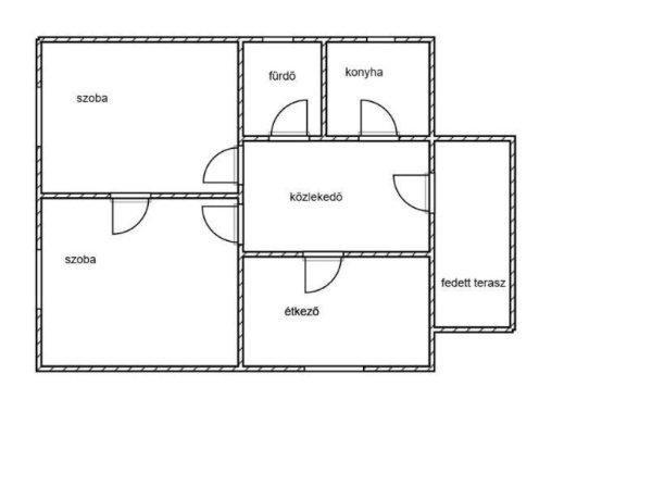
fedett terasz, ami akár egész éves pihenőrésszé tehetőA jelenlegi elosztás
(alaprajz alapján):2 szobaétkezőközlekedőkonyhafürdőfedett teraszA helyiségek
jól rendezhetők, akár egy könnyű átalakítással modern, amerikai konyhás nappali
is kialakítható. A nagy telek pedig tovább növeli az értéket: építkezés,
melléképület, garázs, kerti tó, veteményes, kutyafuttató ? bármi elfér
rajta.Miért jó választás ez az ingatlan a leendő tulajdonosnak?Felújításnál
nincs kompromisszum: teljes mértékben a saját ízlésed szerint alakíthatod.Nagy
és sík telek: ritka ekkora, jól használható telekméret
Mosonmagyaróváron.Energiabarát lehetőségek: szigetelés, új fűtésrendszer,
hőszivattyú ? mind megvalósítható.Csendes, nyugodt lakókörnyezet: mégis pár
percre a bevásárlási lehetőségektől és a városközponttól.Kiváló választás
befektetésnek is: felújítva magas bérleti értékkel rendelkezik.Kinek
ajánlom?akik szeretnének egy jó alapállapotú házat saját elképzelés szerint
megújítani,akik fontosnak tartják a nagy telek adta lehetőségeket,vagy akik
befektetési célra keresnek felújítható ingatlant.
miatt szabadon tervezhetsz kertet, teraszt, garázst vagy akár bővítést, akkor ez
a ház remek lehetőség.A 72 m˛-es családi ház egy 1000 m˛-es, gondozható, széles
utcafrontú telken helyezkedik el, a város egyik csendes, jól lakható részén. A
ház 1964-ben épült, stabil alapokkal és szép arányú helyiségekkel ? a felújítás
pedig teret ad annak, hogy pontosan olyan otthont alakíts ki, amilyenre
vágysz.Amit már nem kell kicserélned: Műanyag, hőszigetelt nyílászárók Kiépített
gázkonvektoros fűtés Több helyiségben cserépkályha is használható 10 m˛-es
fedett terasz, ami akár egész éves pihenőrésszé tehetőA jelenlegi elosztás
(alaprajz alapján):2 szobaétkezőközlekedőkonyhafürdőfedett teraszA helyiségek
jól rendezhetők, akár egy könnyű átalakítással modern, amerikai konyhás nappali
is kialakítható. A nagy telek pedig tovább növeli az értéket: építkezés,
melléképület, garázs, kerti tó, veteményes, kutyafuttató ? bármi elfér
rajta.Miért jó választás ez az ingatlan a leendő tulajdonosnak?Felújításnál
nincs kompromisszum: teljes mértékben a saját ízlésed szerint alakíthatod.Nagy
és sík telek: ritka ekkora, jól használható telekméret
Mosonmagyaróváron.Energiabarát lehetőségek: szigetelés, új fűtésrendszer,
hőszivattyú ? mind megvalósítható.Csendes, nyugodt lakókörnyezet: mégis pár
percre a bevásárlási lehetőségektől és a városközponttól.Kiváló választás
befektetésnek is: felújítva magas bérleti értékkel rendelkezik.Kinek
ajánlom?akik szeretnének egy jó alapállapotú házat saját elképzelés szerint
megújítani,akik fontosnak tartják a nagy telek adta lehetőségeket,vagy akik
befektetési célra keresnek felújítható ingatlant.
Részletek...
Adatlap
| Ár: | 51.900.000 Ft |
| Település: | Mosonmagyaróvár |
| A hirdető: | Ingatlaniroda ajánlatából |
| Értékesítés típusa: | Eladó |
| Használtság: | Használt |
| Telek nagysága (m2) : | 1000 |
| Épület hasznos területe (m2) : | 72.00 |
| Szobák száma: | 2 |
| Komfort: | Komfortos |
| Ingatlan állapota: | Normál állapotú |
| Feladás dátuma: | 2026.02.13 |
| Eddig megtekintették 28 alkalommal | |
A hirdető adatai
Kapcsolat a hirdetővel...
Családi házak rovaton belül a(z) "Felújítható családi ház nagy telekkel, csendes utcában! - Mo" című hirdetést látja. (fent)




























