
Eladó házrész Budapest, III. kerület, Templom utca
BEFEKTETŐKNEK ? RITKA LEHETŐSÉG BÉKÁSMEGYER ÓFALUBAN!Teljesen felújítandó 2
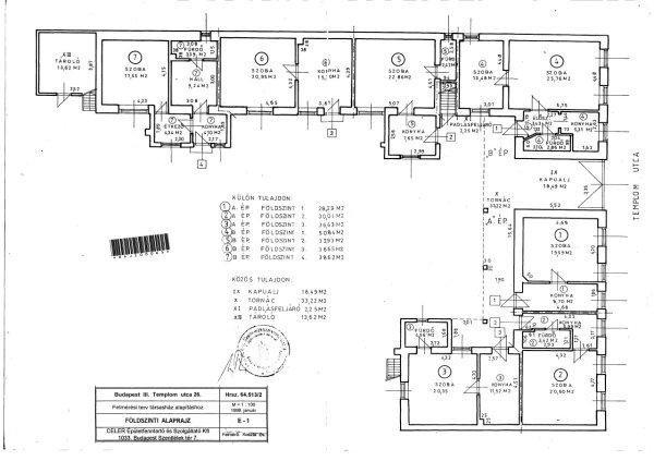
szobás lakás eladó, udvarral rendelkező házban, Ófaluban, ahol a szomszédok az
önkormányzat, így biztos a nyugodt környezet. A ház udvarában összesen 7 lakás
található. Az alaprajzon a 7-es számmal jelölt lakás, ami ennek a lakásnak az
alaprajza.A ház csak önkormányzati engedéllyel bontható, de felújításával
értékes, kis költségű projekt válhat belőle.? Kis alapterület ? alacsony
felújítási költség? Összközműves ingatlan? Viszonylag jó állapotú tető és
elfogadható nyílászárók? Parkolás az udvarbanBónusz befektetőknek:A házhoz
ingyenesen használható +71 m˛ nem lakás célú ingatlan, több tárolóval és egyéb
melléképülettel!Ráadásként van pályázó a telekre, aki tartós bérletet vállalna ?
ez akár a hitelköltség felét is kitermelheti.Az ingatlan 3%-os fix Otthon Start
hitelre alkalmas lehet.Ha jó befektetést keresel, amit minimális ráfordítással
értéknövelni lehet, ez az egyik legjobb lehetőség Ófaluban!Több információ
miatt, telefonon érdeklődj. ...TOVÁBBI, TÖBBEZRES INGATLAN KÍNÁLAT:
www.gdn-ingatlan.hu - GDN azonosító: 390546
szobás lakás eladó, udvarral rendelkező házban, Ófaluban, ahol a szomszédok az
önkormányzat, így biztos a nyugodt környezet. A ház udvarában összesen 7 lakás
található. Az alaprajzon a 7-es számmal jelölt lakás, ami ennek a lakásnak az
alaprajza.A ház csak önkormányzati engedéllyel bontható, de felújításával
értékes, kis költségű projekt válhat belőle.? Kis alapterület ? alacsony
felújítási költség? Összközműves ingatlan? Viszonylag jó állapotú tető és
elfogadható nyílászárók? Parkolás az udvarbanBónusz befektetőknek:A házhoz
ingyenesen használható +71 m˛ nem lakás célú ingatlan, több tárolóval és egyéb
melléképülettel!Ráadásként van pályázó a telekre, aki tartós bérletet vállalna ?
ez akár a hitelköltség felét is kitermelheti.Az ingatlan 3%-os fix Otthon Start
hitelre alkalmas lehet.Ha jó befektetést keresel, amit minimális ráfordítással
értéknövelni lehet, ez az egyik legjobb lehetőség Ófaluban!Több információ
miatt, telefonon érdeklődj. ...TOVÁBBI, TÖBBEZRES INGATLAN KÍNÁLAT:
www.gdn-ingatlan.hu - GDN azonosító: 390546
Részletek...
Adatlap
| Ár: | 58.500.000 Ft |
| Település: | III. kerület |
| A hirdető: | Ingatlaniroda ajánlatából |
| Értékesítés típusa: | Eladó |
| Használtság: | Használt |
| Utca: | Templom utca |
| Telek nagysága (m2) : | 350 |
| Épület hasznos területe (m2) : | 39 |
| Szobák száma: | 2 |
| Félszobák száma: | 1 |
| Fűtés: | Gázfűtéses |
| Ingatlan állapota: | Felújítandó |
| Anyaga: | Vályog |
| A hirdető kérése: | Ingatlanközvetítő vagyok - keresse fel Irodánkat! |
| Feladás dátuma: | 2025.12.15 |
| Eddig megtekintették 15 alkalommal | |
A hirdető adatai
Kapcsolat a hirdetővel...
Családi házak rovaton belül a(z) "Eladó házrész Budapest, III. kerület, Templom utca" című hirdetést látja. (fent)




























